Votre courriel a été envoyé.
Certaines informations ont été traduites automatiquement.
Faits saillants
- 60 000 m2 Immeuble de 1 étage, pied
- Grandes sections libres de colonnes
- ignifuge
- Hauteur du plafond de 15 pi 5 à 30 pi partout
- Énergie électrique
- Chauffage au gaz
Caractéristiques
Tous les espaces disponibles(4)
Afficher les taux de location en
- Espace
- Taille
- Terme
- Taux de location
- Utilisation de l’espace
- État
- Disponible
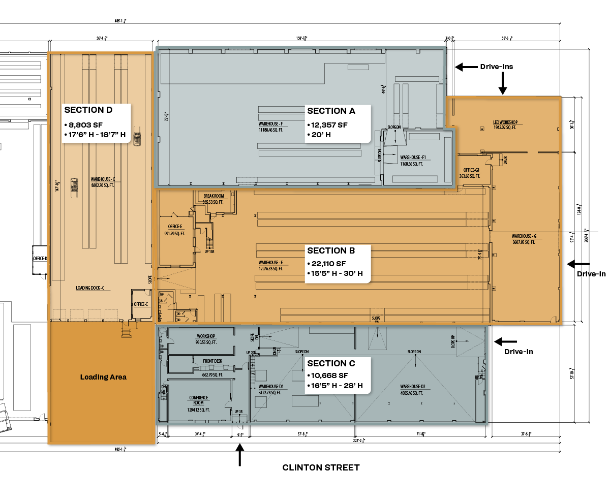
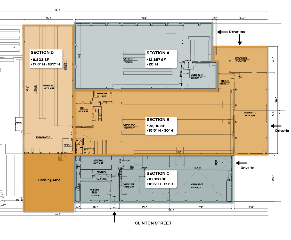
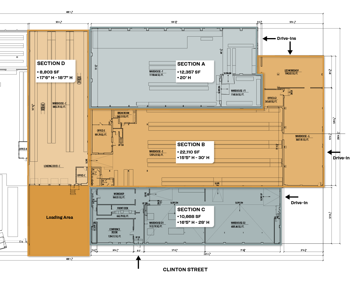
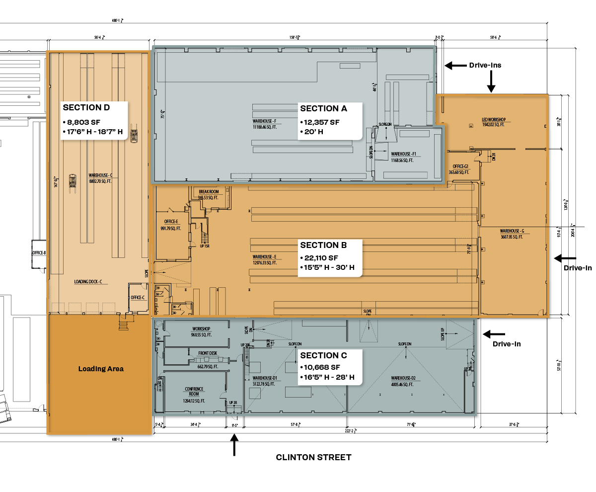
• 12,357 Sq. Ft.
- 1 accès plain-pied
- Large Column Free Section.
- Lumière naturelle
- 20’ Clear Height.
• 22,110 Sq. Ft. Total • 20,247 Sq. Ft. Ground Floor
- 1 accès plain-pied
- Large Column Free Section.
- Existing Break Room.
- 1 291 Sq. Pt. Bureau Mezz au deuxième étage
- Salle de bains privée
- 15’5” - 30’ Max Ceiling Height.
- 992 Sq. Ft. Bureau au premier étage
- 572 Sq. Ft. Bureau Mezz au troisième étage
• 10,668 Sq. Ft. Total • 10,046 Sq. Ft. Ground Floor
- 1 accès plain-pied
- 16’5’’ - 28’ Max Ceiling Height.
- Salle de conférence ultramoderne
- Lumière naturelle
- Existing Reception Area.
- 622 Sq. Bureau Mezz, 2e étage, ft.
• 8,803 Sq. Ft. Warehouse
- Lumière naturelle
- Column Free.
- 4 quais de chargement extérieurs
- 17’6’’ - 18’7’’ Max Ceiling Height.
- Bureau existant
| Espace | Taille | Terme | Taux de location | Utilisation de l’espace | État | Disponible |
| 1er étage - Section A | 12 357 pi² | Négociable | Sur demande Sur demande Sur demande Sur demande | Industriel | construction partielle | Maintenant |
| 1er étage - Section B | 22 110 pi² | Négociable | Sur demande Sur demande Sur demande Sur demande | Industriel | construction complète | 120 jours |
| 1er étage - Section C | 10 668 pi² | Négociable | Sur demande Sur demande Sur demande Sur demande | Industriel | construction partielle | Maintenant |
| 1er étage - Section D | 8 803 pi² | Négociable | Sur demande Sur demande Sur demande Sur demande | Industriel | construction partielle | Maintenant |
1er étage - Section A
| Taille |
| 12 357 pi² |
| Terme |
| Négociable |
| Taux de location |
| Sur demande Sur demande Sur demande Sur demande |
| Utilisation de l’espace |
| Industriel |
| État |
| construction partielle |
| Disponible |
| Maintenant |
1er étage - Section B
| Taille |
| 22 110 pi² |
| Terme |
| Négociable |
| Taux de location |
| Sur demande Sur demande Sur demande Sur demande |
| Utilisation de l’espace |
| Industriel |
| État |
| construction complète |
| Disponible |
| 120 jours |
1er étage - Section C
| Taille |
| 10 668 pi² |
| Terme |
| Négociable |
| Taux de location |
| Sur demande Sur demande Sur demande Sur demande |
| Utilisation de l’espace |
| Industriel |
| État |
| construction partielle |
| Disponible |
| Maintenant |
1er étage - Section D
| Taille |
| 8 803 pi² |
| Terme |
| Négociable |
| Taux de location |
| Sur demande Sur demande Sur demande Sur demande |
| Utilisation de l’espace |
| Industriel |
| État |
| construction partielle |
| Disponible |
| Maintenant |
1er étage - Section A
| Taille | 12 357 pi² |
| Terme | Négociable |
| Taux de location | Sur demande |
| Utilisation de l’espace | Industriel |
| État | construction partielle |
| Disponible | Maintenant |
• 12,357 Sq. Ft.
- 1 accès plain-pied
- Lumière naturelle
- Large Column Free Section.
- 20’ Clear Height.
1er étage - Section B
| Taille | 22 110 pi² |
| Terme | Négociable |
| Taux de location | Sur demande |
| Utilisation de l’espace | Industriel |
| État | construction complète |
| Disponible | 120 jours |
• 22,110 Sq. Ft. Total • 20,247 Sq. Ft. Ground Floor
- 1 accès plain-pied
- Salle de bains privée
- Large Column Free Section.
- 15’5” - 30’ Max Ceiling Height.
- Existing Break Room.
- 992 Sq. Ft. Bureau au premier étage
- 1 291 Sq. Pt. Bureau Mezz au deuxième étage
- 572 Sq. Ft. Bureau Mezz au troisième étage
1er étage - Section C
| Taille | 10 668 pi² |
| Terme | Négociable |
| Taux de location | Sur demande |
| Utilisation de l’espace | Industriel |
| État | construction partielle |
| Disponible | Maintenant |
• 10,668 Sq. Ft. Total • 10,046 Sq. Ft. Ground Floor
- 1 accès plain-pied
- Lumière naturelle
- 16’5’’ - 28’ Max Ceiling Height.
- Existing Reception Area.
- Salle de conférence ultramoderne
- 622 Sq. Bureau Mezz, 2e étage, ft.
1er étage - Section D
| Taille | 8 803 pi² |
| Terme | Négociable |
| Taux de location | Sur demande |
| Utilisation de l’espace | Industriel |
| État | construction partielle |
| Disponible | Maintenant |
• 8,803 Sq. Ft. Warehouse
- Lumière naturelle
- 17’6’’ - 18’7’’ Max Ceiling Height.
- Column Free.
- Bureau existant
- 4 quais de chargement extérieurs
Aperçu de la propriété
60 000 m2 Ft. Immeuble à un étage avec plusieurs divisions Idéal pour les utilisations créatives, sportives, de divertissement, industrielles et commerciales
Faits sur l’installation entrepôt
Présenté par
744 Clinton St
Hmm, il semble y avoir eu une erreur lors de l’envoi de votre message. Veuillez réessayer.
Merci! Votre message a été envoyé.











