Se Connecter/S’inscrire
Votre courriel a été envoyé.
Mary Lake 748 N Knowles Ave 103 Unité Immeuble d’appartements 2 054 565 $ CAD (19 947 $ CAD/Unité) New Richmond, WI 54017



Certaines informations ont été traduites automatiquement.
Faits saillants de l'investissement
- To be Built Market Rate Apartment Building
- Permit Ready with all Construction Documentation
- Lake Front (Mary Lake Park)
Résumé de l'annonce
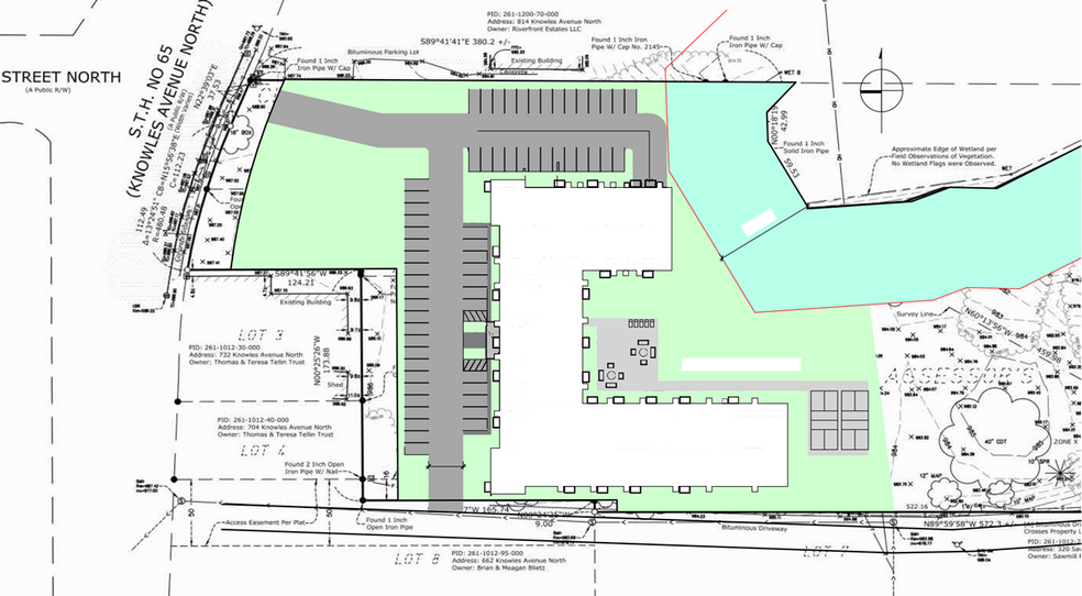
This is an approved permit ready site for a 96,000 Sq ft 103 Unit apartment building with 28,000 Sq Ft of at grade parking. It sits on a great lot with direct access to Lake Sarah.
Sale will include all design and construction documents.
Sale will include all design and construction documents.
Faits sur la propriété
| Prix | 2 054 565 $ CAD | Classe d’immeuble | B |
| Prix par unité | 19 947 $ CAD | Taille du lot | 5,50 AC |
| Type de vente | Investissement | État de la construction | Proposé |
| Nombre d’unités | 103 | Taille du bâtiment | 122 000 pi² |
| Type de propriété | Immeuble residentiel | Nombre d’étages | 4 |
| Sous-type de propriété | Appartement | Année de construction | 2027 |
| Style d’appartement | De hauteur moyenne | ||
| Zonage | Multi-Family - Multifamilial | ||
| Prix | 2 054 565 $ CAD |
| Prix par unité | 19 947 $ CAD |
| Type de vente | Investissement |
| Nombre d’unités | 103 |
| Type de propriété | Immeuble residentiel |
| Sous-type de propriété | Appartement |
| Style d’appartement | De hauteur moyenne |
| Classe d’immeuble | B |
| Taille du lot | 5,50 AC |
| État de la construction | Proposé |
| Taille du bâtiment | 122 000 pi² |
| Nombre d’étages | 4 |
| Année de construction | 2027 |
| Zonage | Multi-Family - Multifamilial |
Commodités
Commodités des unités
- Climatisation
- Balcon
- Prêt pour le câble
- Lave-vaisselle
- Traitement des déchets
- Laveuse/Sécheuse
- Connexions pour laveuse/Sécheuse
- Chauffage
- Planchers de tuiles
- Cuisine
- Comptoirs de granit
- Accès Internet à haute vitesse
- Système de gicleur
- Électroménagers en acier inoxydable
- Bain/Douche
- Walk-in
- Tapis
- Wi-Fi
- Salle de séjour
- Grandes chambres
- Comptoirs en quartz
Commodités du site
- Salle de bain privée
1 1
Plutôt praticable à pied
30/100
Exceptionnellement facile d’accès en voiture
100/100
Assez praticable en vélo
30/100
1 de 4
Vidéos
Visite extérieure 3D Matterport
Visite 3D Matterport
Photos
Vue depuis la rue
Rue
Carte
1 de 1
Présenté par
Grant Johnson Group - Real Broker
Mary Lake | 748 N Knowles Ave
Vous êtes déjà membre? Connectez-vous
Hmm, il semble y avoir eu une erreur lors de l’envoi de votre message. Veuillez réessayer.
Merci! Votre message a été envoyé.
