Votre courriel a été envoyé.
75 N Main St Espace de cotravail disponible • Mount Clemens, MI 48043



Certaines informations ont été traduites automatiquement.
Faits saillants
- Beaucoup de lumière naturelle
- Options de location flexibles
- Vues de la ville
- Plan d'étage ouvert
- Stationnement à proximité
Tous les espaces disponibles(5)
Afficher les taux de location en
- Espace
- Nb. de personnes
- Taille
- Taux de location
- Utilisation de l’espace
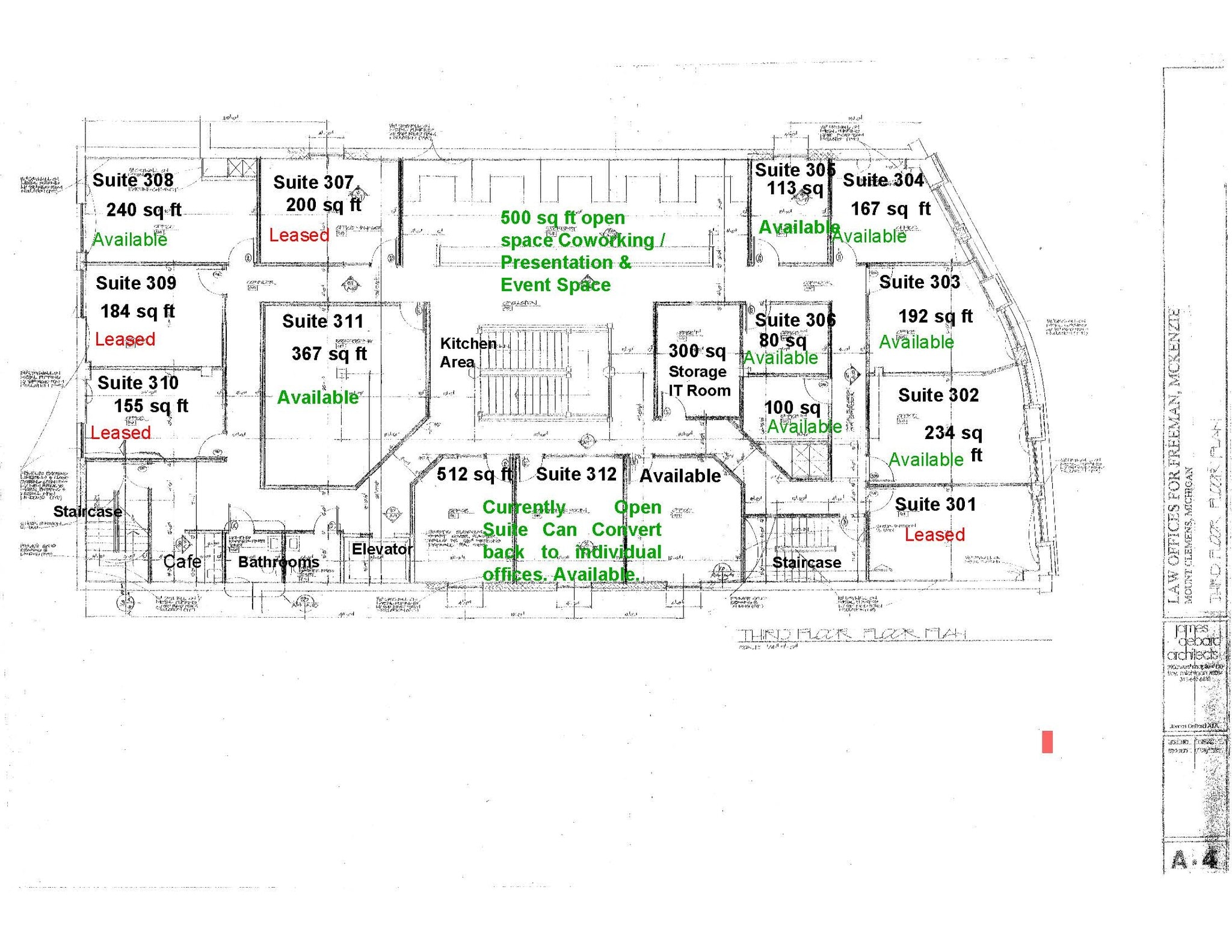
220SF office space with window available for lease. Includes access to conference room, wi-fi, community printer, coffee, water, private restrooms, and additional amenities a part of Neway Creative Community Space.
-
Terme
-
- Espace disponible auprès du fournisseur d’espace de travail partagé
- Salles de conférence
- Climatisation centrale
- Aire de réception
- Cuisine
- Flexible Floor Plan options available for lease.
234 SF coworking office space with access to shared amenities. Includes access to conference room, wi-fi, community printer, coffee, water, private restrooms, and additional amenities a part of Neway Creative Community Space.
-
Terme
-
- Espace disponible auprès du fournisseur d’espace de travail partagé
- 1 salle de conférence
- Connectivité Wi-Fi
- Salle de bains privée
- Complètement tapissé
- Hauts plafonds
- Lumière naturelle
- Détecteur de fumée
- Flexible Coworking solutions available.
Corner private window office for Executive Office or multiple desks for team collaboration. Includes access to conference room, wi-fi, community printer, coffee, water, private restrooms, and additional amenities a part of Neway Creative Community Space.
-
Terme
-
- Espace disponible auprès du fournisseur d’espace de travail partagé
- 1 salle de conférence
- Clé en main
- Air central et chauffage
- Cuisine
- Connectivité Wi-Fi
- Accès aux ascenseurs
- Salle d’impression/Photocopie
- Salle de bains privée
- Complètement tapissé
- Système de sécurité
- Espace en coin
- Hauts plafonds
- Entreposage sécurisé
- Entreposage de vélo
- Toilettes communes
- Flexible coworking space options available.
Executive Office Suite available for Executive or small team of 3.
-
Terme
-
- Espace disponible auprès du fournisseur d’espace de travail partagé
- Bureaux partitionnés
- 1 salle de conférence
- Clé en main
- Air central et chauffage
- Cuisine
- Connectivité Wi-Fi
- Accès aux ascenseurs
- Salle d’impression/Photocopie
- Salle de bains privée
- Complètement tapissé
- Système de sécurité
- Espace en coin
- Hauts plafonds
- Plafond exposé
- Éclairage encastré
- Lumière naturelle
- Plan ouvert
- Détecteur de fumée
- Downtown Mount Clemens, City Views, Windows
367 SF office space without window. Includes access to conference room, wi-fi, community printer, coffee, water, private restrooms, and additional amenities a part of Neway Creative Community Space. Available in 30 Days-aamidon
-
Terme
-
- Espace disponible auprès du fournisseur d’espace de travail partagé
- Salles de conférence
- Climatisation centrale
- Éclairage accentué
- Flexible Coworking space options.
| Espace | Nb. de personnes | Taille | Taux de location | Utilisation de l’espace |
| 3e étage, ste 301 | 1 - 2 | 220 pi² | Sur demande Sur demande Sur demande Sur demande | Bureau |
| 3e étage, ste 302 | 3 - 4 | 234 pi² | Sur demande Sur demande Sur demande Sur demande | Bureau |
| 3e étage, ste 306 | 1 - 2 | 80 pi² | Sur demande Sur demande Sur demande Sur demande | Bureau |
| 3e étage, ste 307 | 1 - 3 | 200 pi² | Sur demande Sur demande Sur demande Sur demande | Bureau |
| 3e étage, ste 311 | 1 - 3 | 367 pi² | Sur demande Sur demande Sur demande Sur demande | Bureau |
3e étage, ste 301
| Nb. de personnes |
| 1 - 2 |
| Taille |
| 220 pi² |
| Terme |
| - |
| Taux de location |
| Sur demande Sur demande Sur demande Sur demande |
| Utilisation de l’espace |
| Bureau |
3e étage, ste 302
| Nb. de personnes |
| 3 - 4 |
| Taille |
| 234 pi² |
| Terme |
| - |
| Taux de location |
| Sur demande Sur demande Sur demande Sur demande |
| Utilisation de l’espace |
| Bureau |
3e étage, ste 306
| Nb. de personnes |
| 1 - 2 |
| Taille |
| 80 pi² |
| Terme |
| - |
| Taux de location |
| Sur demande Sur demande Sur demande Sur demande |
| Utilisation de l’espace |
| Bureau |
3e étage, ste 307
| Nb. de personnes |
| 1 - 3 |
| Taille |
| 200 pi² |
| Terme |
| - |
| Taux de location |
| Sur demande Sur demande Sur demande Sur demande |
| Utilisation de l’espace |
| Bureau |
3e étage, ste 311
| Nb. de personnes |
| 1 - 3 |
| Taille |
| 367 pi² |
| Terme |
| - |
| Taux de location |
| Sur demande Sur demande Sur demande Sur demande |
| Utilisation de l’espace |
| Bureau |
3e étage, ste 301
| Nb. de personnes | 1 - 2 |
| Taille | 220 pi² |
| Terme | - |
| Taux de location | Sur demande |
| Utilisation de l’espace | Bureau |
220SF office space with window available for lease. Includes access to conference room, wi-fi, community printer, coffee, water, private restrooms, and additional amenities a part of Neway Creative Community Space.
- Espace disponible auprès du fournisseur d’espace de travail partagé
- Salles de conférence
- Climatisation centrale
- Aire de réception
- Cuisine
- Flexible Floor Plan options available for lease.
3e étage, ste 302
| Nb. de personnes | 3 - 4 |
| Taille | 234 pi² |
| Terme | - |
| Taux de location | Sur demande |
| Utilisation de l’espace | Bureau |
234 SF coworking office space with access to shared amenities. Includes access to conference room, wi-fi, community printer, coffee, water, private restrooms, and additional amenities a part of Neway Creative Community Space.
- Espace disponible auprès du fournisseur d’espace de travail partagé
- 1 salle de conférence
- Connectivité Wi-Fi
- Salle de bains privée
- Complètement tapissé
- Hauts plafonds
- Lumière naturelle
- Détecteur de fumée
- Flexible Coworking solutions available.
3e étage, ste 306
| Nb. de personnes | 1 - 2 |
| Taille | 80 pi² |
| Terme | - |
| Taux de location | Sur demande |
| Utilisation de l’espace | Bureau |
Corner private window office for Executive Office or multiple desks for team collaboration. Includes access to conference room, wi-fi, community printer, coffee, water, private restrooms, and additional amenities a part of Neway Creative Community Space.
- Espace disponible auprès du fournisseur d’espace de travail partagé
- 1 salle de conférence
- Clé en main
- Air central et chauffage
- Cuisine
- Connectivité Wi-Fi
- Accès aux ascenseurs
- Salle d’impression/Photocopie
- Salle de bains privée
- Complètement tapissé
- Système de sécurité
- Espace en coin
- Hauts plafonds
- Entreposage sécurisé
- Entreposage de vélo
- Toilettes communes
- Flexible coworking space options available.
3e étage, ste 307
| Nb. de personnes | 1 - 3 |
| Taille | 200 pi² |
| Terme | - |
| Taux de location | Sur demande |
| Utilisation de l’espace | Bureau |
Executive Office Suite available for Executive or small team of 3.
- Espace disponible auprès du fournisseur d’espace de travail partagé
- Bureaux partitionnés
- 1 salle de conférence
- Clé en main
- Air central et chauffage
- Cuisine
- Connectivité Wi-Fi
- Accès aux ascenseurs
- Salle d’impression/Photocopie
- Salle de bains privée
- Complètement tapissé
- Système de sécurité
- Espace en coin
- Hauts plafonds
- Plafond exposé
- Éclairage encastré
- Lumière naturelle
- Plan ouvert
- Détecteur de fumée
- Downtown Mount Clemens, City Views, Windows
3e étage, ste 311
| Nb. de personnes | 1 - 3 |
| Taille | 367 pi² |
| Terme | - |
| Taux de location | Sur demande |
| Utilisation de l’espace | Bureau |
367 SF office space without window. Includes access to conference room, wi-fi, community printer, coffee, water, private restrooms, and additional amenities a part of Neway Creative Community Space. Available in 30 Days-aamidon
- Espace disponible auprès du fournisseur d’espace de travail partagé
- Salles de conférence
- Climatisation centrale
- Éclairage accentué
- Flexible Coworking space options.
À propos de la propriété
Neway Creative, situé au 3e étage du 75, rue N. Main, au centre-ville de Mount Clemens, n'est pas seulement un espace de coworking, c'est une incarnation de la résilience, de la communauté et de l'innovation. Engagée à favoriser la créativité et la collaboration, Neway Creative offre un environnement de travail dynamique, des ressources précieuses et des occasions stratégiques pour les entreprises et les innovateurs de prospérer. Pour de plus amples renseignements, visitez www.newaycreative.com.
Caractéristiques et commodités
- Accès 24 heures
- Accès contrôlé
- Installations de conférences
- Service d'alimentation
- Affichage
- Accessible aux fauteuils roulants
- Espace d'entreposage
- Climatisation
- Détecteur de fumée
Présenté par
75 N Main St
Hmm, il semble y avoir eu une erreur lors de l’envoi de votre message. Veuillez réessayer.
Merci! Votre message a été envoyé.








