Votre courriel a été envoyé.
Certaines informations ont été traduites automatiquement.
FAITS SAILLANTS
- Emplacement privilégié au centre-ville près des condos, à un pâté de maisons de l'hôtel Crowne Plaza et à un pâté de maisons du centre commercial Westchester.
- Les suites du rez-de-chaussée bénéficient de la circulation piétonnière des entreprises environnantes, offrant une excellente exposition à la marque.
- Situé près des développements futurs approuvés qui ajouteront plus de 1 000 appartements et destinations dynamiques à usage mixte.
- Les usagers des cabinets médicaux profitent des hôpitaux avoisinants, dont plus de cinq hôpitaux se trouvent à 20 minutes de route de l'édifice.
- Cette zone très propice à la marche se trouve également à proximité de l'autoroute I-287 et de la ligne Harlem à la gare White Plains de banlieue.
Afficher les taux de location en
- ESPACE
- TAILLE
- TERME
- TAUX DE LOCATION
- UTILISATION DE L’ESPACE
- ÉTAT
- DISPONIBLE
Retailers and office users alike will appreciate the foot traffic and brand exposure from the ground-level suites due to the concentration of commercial businesses in this established area.
- Entièrement construit comme Bureau standard
- 1 bureau privé
- Peut être associé à un ou plusieurs espaces supplémentaires pour obtenir jusqu’à 5 040 pi² d’espace adjacent.
- Disposition du plan d’étage ouverte en général
- 1 salle de conférence
- Cuisinette dans l'espace.
- Disposition du plan d’étage ouverte en général
Retailers and office users alike will appreciate the foot traffic and brand exposure from the ground-level suites due to the concentration of commercial businesses in this established area.
- Disposition du plan d’étage ouverte
- Peut être associé à un ou plusieurs espaces supplémentaires pour obtenir jusqu’à 5 040 pi² d’espace adjacent.
| Espace | Taille | Terme | Taux de location | Utilisation de l’espace | État | Disponible |
| 1er étage, ste 102A | 3 740 pi² | Négociable | 48,28 $ CAD/pi²/an 4,02 $ CAD/pi²/mois 180 563 $ CAD/an 15 047 $ CAD/mois | Bureau/Commerce de détail | construction complète | Maintenant |
| 1er étage, ste 102B | 2 398 pi² | Négociable | 48,28 $ CAD/pi²/an 4,02 $ CAD/pi²/mois 115 773 $ CAD/an 9 648 $ CAD/mois | Bureau/Commerce de détail | construction complète | Maintenant |
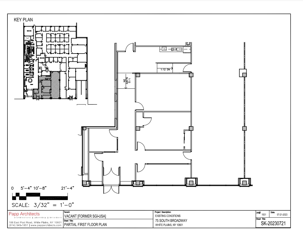
| 1er étage, ste Retail | 1 300 pi² | Négociable | 75,87 $ CAD/pi²/an 6,32 $ CAD/pi²/mois 98 627 $ CAD/an 8 219 $ CAD/mois | Bureau/Commerce de détail | espace cloisonné | Maintenant |
1er étage, ste 102A
| Taille |
| 3 740 pi² |
| Terme |
| Négociable |
| Taux de location |
| 48,28 $ CAD/pi²/an 4,02 $ CAD/pi²/mois 180 563 $ CAD/an 15 047 $ CAD/mois |
| Utilisation de l’espace |
| Bureau/Commerce de détail |
| État |
| construction complète |
| Disponible |
| Maintenant |
1er étage, ste 102B
| Taille |
| 2 398 pi² |
| Terme |
| Négociable |
| Taux de location |
| 48,28 $ CAD/pi²/an 4,02 $ CAD/pi²/mois 115 773 $ CAD/an 9 648 $ CAD/mois |
| Utilisation de l’espace |
| Bureau/Commerce de détail |
| État |
| construction complète |
| Disponible |
| Maintenant |
1er étage, ste Retail
| Taille |
| 1 300 pi² |
| Terme |
| Négociable |
| Taux de location |
| 75,87 $ CAD/pi²/an 6,32 $ CAD/pi²/mois 98 627 $ CAD/an 8 219 $ CAD/mois |
| Utilisation de l’espace |
| Bureau/Commerce de détail |
| État |
| espace cloisonné |
| Disponible |
| Maintenant |
- ESPACE
- TAILLE
- TERME
- TAUX DE LOCATION
- UTILISATION DE L’ESPACE
- ÉTAT
- DISPONIBLE
Retailers and office users alike will appreciate the foot traffic and brand exposure from the ground-level suites due to the concentration of commercial businesses in this established area.
- Entièrement construit comme Bureau standard
- 1 bureau privé
- Peut être associé à un ou plusieurs espaces supplémentaires pour obtenir jusqu’à 5 040 pi² d’espace adjacent.
- Disposition du plan d’étage ouverte en général
- 1 salle de conférence
- Cuisinette dans l'espace.
- Disposition du plan d’étage ouverte en général
Retailers and office users alike will appreciate the foot traffic and brand exposure from the ground-level suites due to the concentration of commercial businesses in this established area.
- Disposition du plan d’étage ouverte
- Peut être associé à un ou plusieurs espaces supplémentaires pour obtenir jusqu’à 5 040 pi² d’espace adjacent.
- Entièrement construit comme Bureau standard
Retailers and office users alike will appreciate the foot traffic and brand exposure from the ground-level suites due to the concentration of commercial businesses in this established area.
- Entièrement construit comme Bureau standard
- 1 salle de conférence
- Salles de conférence disponibles.
- Disposition du plan d’étage ouverte en général
- Aire de réception
- L'espace est doté d'un espace de réception.
| Espace | Taille | Terme | Taux de location | Utilisation de l’espace | État | Disponible |
| 1er étage, ste 102A | 3 740 pi² | Négociable | 48,28 $ CAD/pi²/an 4,02 $ CAD/pi²/mois 180 563 $ CAD/an 15 047 $ CAD/mois | Bureau/Commerce de détail | construction complète | Maintenant |
| 1er étage, ste 102B | 2 398 pi² | Négociable | 48,28 $ CAD/pi²/an 4,02 $ CAD/pi²/mois 115 773 $ CAD/an 9 648 $ CAD/mois | Bureau/Commerce de détail | construction complète | Maintenant |
| 1er étage, ste Retail | 1 300 pi² | Négociable | 75,87 $ CAD/pi²/an 6,32 $ CAD/pi²/mois 98 627 $ CAD/an 8 219 $ CAD/mois | Bureau/Commerce de détail | espace cloisonné | Maintenant |
| 2e étage | 17 432 pi² | Négociable | 48,28 $ CAD/pi²/an 4,02 $ CAD/pi²/mois 841 600 $ CAD/an 70 133 $ CAD/mois | Bureau | construction complète | Maintenant |
| 3e étage | 6 668 pi² | Négociable | 48,28 $ CAD/pi²/an 4,02 $ CAD/pi²/mois 321 924 $ CAD/an 26 827 $ CAD/mois | Bureau/Médical | construction complète | Maintenant |
1er étage, ste 102A
| Taille |
| 3 740 pi² |
| Terme |
| Négociable |
| Taux de location |
| 48,28 $ CAD/pi²/an 4,02 $ CAD/pi²/mois 180 563 $ CAD/an 15 047 $ CAD/mois |
| Utilisation de l’espace |
| Bureau/Commerce de détail |
| État |
| construction complète |
| Disponible |
| Maintenant |
1er étage, ste 102B
| Taille |
| 2 398 pi² |
| Terme |
| Négociable |
| Taux de location |
| 48,28 $ CAD/pi²/an 4,02 $ CAD/pi²/mois 115 773 $ CAD/an 9 648 $ CAD/mois |
| Utilisation de l’espace |
| Bureau/Commerce de détail |
| État |
| construction complète |
| Disponible |
| Maintenant |
1er étage, ste Retail
| Taille |
| 1 300 pi² |
| Terme |
| Négociable |
| Taux de location |
| 75,87 $ CAD/pi²/an 6,32 $ CAD/pi²/mois 98 627 $ CAD/an 8 219 $ CAD/mois |
| Utilisation de l’espace |
| Bureau/Commerce de détail |
| État |
| espace cloisonné |
| Disponible |
| Maintenant |
2e étage
| Taille |
| 17 432 pi² |
| Terme |
| Négociable |
| Taux de location |
| 48,28 $ CAD/pi²/an 4,02 $ CAD/pi²/mois 841 600 $ CAD/an 70 133 $ CAD/mois |
| Utilisation de l’espace |
| Bureau |
| État |
| construction complète |
| Disponible |
| Maintenant |
3e étage
| Taille |
| 6 668 pi² |
| Terme |
| Négociable |
| Taux de location |
| 48,28 $ CAD/pi²/an 4,02 $ CAD/pi²/mois 321 924 $ CAD/an 26 827 $ CAD/mois |
| Utilisation de l’espace |
| Bureau/Médical |
| État |
| construction complète |
| Disponible |
| Maintenant |
1er étage, ste 102A
| Taille | 3 740 pi² |
| Terme | Négociable |
| Taux de location | 48,28 $ CAD/pi²/an |
| Utilisation de l’espace | Bureau/Commerce de détail |
| État | construction complète |
| Disponible | Maintenant |
Retailers and office users alike will appreciate the foot traffic and brand exposure from the ground-level suites due to the concentration of commercial businesses in this established area.
- Entièrement construit comme Bureau standard
- Disposition du plan d’étage ouverte en général
- 1 bureau privé
- 1 salle de conférence
- Peut être associé à un ou plusieurs espaces supplémentaires pour obtenir jusqu’à 5 040 pi² d’espace adjacent.
- Cuisinette dans l'espace.
1er étage, ste 102B
| Taille | 2 398 pi² |
| Terme | Négociable |
| Taux de location | 48,28 $ CAD/pi²/an |
| Utilisation de l’espace | Bureau/Commerce de détail |
| État | construction complète |
| Disponible | Maintenant |
- Disposition du plan d’étage ouverte en général
1er étage, ste Retail
| Taille | 1 300 pi² |
| Terme | Négociable |
| Taux de location | 75,87 $ CAD/pi²/an |
| Utilisation de l’espace | Bureau/Commerce de détail |
| État | espace cloisonné |
| Disponible | Maintenant |
Retailers and office users alike will appreciate the foot traffic and brand exposure from the ground-level suites due to the concentration of commercial businesses in this established area.
- Disposition du plan d’étage ouverte
- Peut être associé à un ou plusieurs espaces supplémentaires pour obtenir jusqu’à 5 040 pi² d’espace adjacent.
2e étage
| Taille | 17 432 pi² |
| Terme | Négociable |
| Taux de location | 48,28 $ CAD/pi²/an |
| Utilisation de l’espace | Bureau |
| État | construction complète |
| Disponible | Maintenant |
- Entièrement construit comme Bureau standard
3e étage
| Taille | 6 668 pi² |
| Terme | Négociable |
| Taux de location | 48,28 $ CAD/pi²/an |
| Utilisation de l’espace | Bureau/Médical |
| État | construction complète |
| Disponible | Maintenant |
Retailers and office users alike will appreciate the foot traffic and brand exposure from the ground-level suites due to the concentration of commercial businesses in this established area.
- Entièrement construit comme Bureau standard
- Disposition du plan d’étage ouverte en général
- 1 salle de conférence
- Aire de réception
- Salles de conférence disponibles.
- L'espace est doté d'un espace de réception.
APERÇU DE LA PROPRIÉTÉ
Entouré par l'excédent de commodités que le centre d'affaires du centre-ville de White Plains a à offrir, le 75 S Broadway offre des espaces de choix pour de nombreux types d'entreprises. L'édifice arbore un hall d'entrée spectaculaire en marbre à double hauteur rempli de finitions modernes et d'un concierge, un système de sécurité avec accès par carte à clé, une gestion sur place et un accès T-1. Les utilisateurs des cabinets médicaux apprécieront la proximité des systèmes de soins de santé locaux, car le Westchester Medical Center et le Blythedale Children's Hospital se trouvent à moins de 10 minutes en voiture. Situé à seulement deux minutes de l'autoroute I-287, les employés bénéficient d'un stationnement sur la terrasse adjacente. Ceux qui utilisent le transport en commun peuvent se rendre à la ligne Harlem en empruntant le train de banlieue White Plains Station à environ un mille de marche. Ce secteur passionnant a également été approuvé pour le développement futur, amenant plus de 1 000 appartements et centres à usages mixtes pour aider à renforcer cette zone commerciale déjà établie. 75 S Broadway se trouve à quelques pas des options haut de gamme pour recevoir les clients et les invités. Pour les voyages d'affaires, l'aéroport du comté de Westchester se trouve à 13 minutes de route.
- Accès contrôlé
- Installations de conférences
- Gestionnaire d'immeuble sur place
- Système de sécurité
FAITS SUR LA PROPRIÉTÉ
SÉLECTIONNER DES LOCATAIRES
- ÉTAGE
- NOM DU LOCATAIRE
- SECTEUR
- 3ᵉ
- Community Housing Innovations
- Services
- 3ᵉ
- Division of Housing and Community Renewal
- Administration publique
- 2ᵉ
- Social Security Office
- Administration publique
- 1ᵉʳ
- Workman's Compensation Board
- Administration publique
Présenté par
Entreprise non fournie
75 S Broadway
Hmm, il semble y avoir eu une erreur lors de l’envoi de votre message. Veuillez réessayer.
Merci! Votre message a été envoyé.











