Votre courriel a été envoyé.
Perimeter Ridge Atlanta, GA 30328 1 600 pi² d'espace disponible • Bureau



Certaines informations ont été traduites automatiquement.
Faits saillants du parc
- Stationnement en surface inclus.
- Services de nettoyage quotidiens - du lundi au vendredi.
- Services publics d'eau et d'électricité inclus.
Faits sur le parc
| Superficie totale disponible | 1 600 pi² | Caractéristiques | Accès 24 heures |
| Type de parc | Parc de bureaux |
| Superficie totale disponible | 1 600 pi² |
| Type de parc | Parc de bureaux |
| Caractéristiques | Accès 24 heures |
Tous les espaces disponibles(1)
Afficher les taux de location en
- Espace
- Taille
- Terme
- Taux de location
- Utilisation de l’espace
- État
- Disponible
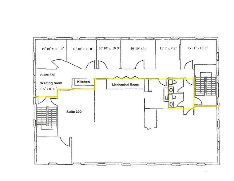
This 1,600-square-foot suite offers a professional and convenient workspace for your business. Suite 350 features a welcoming reception area, six private offices, and a kitchen. This space enjoys an efficient floorplan, a quiet location in the office park, windows in each office, and bright natural light. This space is ideal for professional services such as law firms, small businesses, a satellite office, and/or financial services. Enjoy the benefits of ample on-site free parking and a diverse professional environment, with neighboring offices in medical, legal, and financial fields.
- Le taux comprend les services publics, les services de bâtiment et les dépenses immobilières.
- Disposition du plan d’étage ouverte en général
- 6 bureaux privés
- Aire de réception
- Le bureau privé peut être utilisé comme salle de conférence.
- Entièrement construit comme Bureau de services professionnels
- Convient pour 4 à 13 personnes
- Espace en excellent état
- Cuisine
| Espace | Taille | Terme | Taux de location | Utilisation de l’espace | État | Disponible |
| 3e étage, ste 350 | 1 600 pi² | 1-5 ans | 25,98 $ CAD/pi²/an 2,17 $ CAD/pi²/mois 41 573 $ CAD/an 3 464 $ CAD/mois | Bureau | construction complète | Maintenant |
750 Hammond Dr NE - 3e étage - ste 350
750 Hammond Dr NE - 3e étage - ste 350
| Taille | 1 600 pi² |
| Terme | 1-5 ans |
| Taux de location | 25,98 $ CAD/pi²/an |
| Utilisation de l’espace | Bureau |
| État | construction complète |
| Disponible | Maintenant |
This 1,600-square-foot suite offers a professional and convenient workspace for your business. Suite 350 features a welcoming reception area, six private offices, and a kitchen. This space enjoys an efficient floorplan, a quiet location in the office park, windows in each office, and bright natural light. This space is ideal for professional services such as law firms, small businesses, a satellite office, and/or financial services. Enjoy the benefits of ample on-site free parking and a diverse professional environment, with neighboring offices in medical, legal, and financial fields.
- Le taux comprend les services publics, les services de bâtiment et les dépenses immobilières.
- Entièrement construit comme Bureau de services professionnels
- Disposition du plan d’étage ouverte en général
- Convient pour 4 à 13 personnes
- 6 bureaux privés
- Espace en excellent état
- Aire de réception
- Cuisine
- Le bureau privé peut être utilisé comme salle de conférence.
Aperçu du parc
Situé dans le parc de bureaux de Perimeter Ridge, ce bureau de classe B situé dans le quartier très fréquenté du Centre Périmètre bénéficie de la proximité des grandes entreprises, des installations médicales, des centres commerciaux, des restaurants et des lieux de divertissement. Son emplacement, près de Pill Hill et du centre commercial Perimeter Mall, offre une excellente visibilité et un accès facile aux principales autoroutes telles que l'I-285 et le GA-400, ce qui en fait un endroit hautement souhaitable pour les entreprises qui cherchent à établir une forte présence dans l'un des principaux centres commerciaux d'Atlanta. De plus, l'établissement est accessible par les transports en commun, avec les gares MARTA et les lignes de bus à proximité.
- Accès 24 heures
Présenté par
Willis Real Estate Firm
Perimeter Ridge | Atlanta, GA 30328
Hmm, il semble y avoir eu une erreur lors de l’envoi de votre message. Veuillez réessayer.
Merci! Votre message a été envoyé.




