Votre courriel a été envoyé.
Maryland Trade Center III 7501 Greenway Center Dr 1 661–76 763 pi² d'espace disponible • 4 étoiles • Greenbelt, MD 20770



Certaines informations ont été traduites automatiquement.
Faits saillants
- Emplacement pratique avec accès immédiat aux I-95 et I-495 Baltimore/Washington Parkway.
- Grande ligne de fenêtres offrant un ratio élevé de bureaux vitrés.
- Nouveau centre de conditionnement physique intérieur réservé aux locataires avec douches et vestiaires.
- Café sur place avec coin salon et accès à plusieurs points de restauration rapide, y compris Starbucks et Subway.
Tous les espaces disponibles(15)
Afficher les taux de location en
- Espace
- Taille
- Terme
- Taux de location
- Utilisation de l’espace
- Aménagement
- Disponible
MAXIMUM REFERRAL SYNERGIES LOCATION OVERVIEW • AbsoluteCare of Maryland • Anne Arundel Dermatology • Retina Group • Asthma & Allergy Center • Foot & Ankle Specialists • Labcorp • Greenway Endocrinology • Community Imaging Partners • Luminis Health
- Entièrement construit comme Bureau standard
- 1 salle de conférence
- 8 bureaux privés
MAXIMUM REFERRAL SYNERGIES LOCATION OVERVIEW • AbsoluteCare of Maryland • Anne Arundel Dermatology • Retina Group • Asthma & Allergy Center • Foot & Ankle Specialists • Labcorp • Greenway Endocrinology • Community Imaging Partners • Luminis Health
- Entièrement construit comme Bureau standard
- Disposition intensive du bureau
MAXIMUM REFERRAL SYNERGIES LOCATION OVERVIEW • AbsoluteCare of Maryland • Anne Arundel Dermatology • Retina Group • Asthma & Allergy Center • Foot & Ankle Specialists • Labcorp • Greenway Endocrinology • Community Imaging Partners • Luminis Health
- Entièrement construit comme Bureau de services professionnels
- 1 salle de conférence
- 4 bureaux privés
MAXIMUM REFERRAL SYNERGIES LOCATION OVERVIEW • AbsoluteCare of Maryland • Anne Arundel Dermatology • Retina Group • Asthma & Allergy Center • Foot & Ankle Specialists • Labcorp • Greenway Endocrinology • Community Imaging Partners • Luminis Health
- Entièrement construit comme Bureau standard
- 1 salle de conférence
- 5 bureaux privés
2nd Generation Medical Suite MAXIMUM REFERRAL SYNERGIES LOCATION OVERVIEW • AbsoluteCare of Maryland • Anne Arundel Dermatology • Retina Group • Asthma & Allergy Center • Foot & Ankle Specialists • Labcorp • Greenway Endocrinology • Community Imaging Partners • Luminis Health
- Entièrement construit comme Espace médical standard
- 1 salle de conférence
- 4 bureaux privés
MAXIMUM REFERRAL SYNERGIES LOCATION OVERVIEW • AbsoluteCare of Maryland • Anne Arundel Dermatology • Retina Group • Asthma & Allergy Center • Foot & Ankle Specialists • Labcorp • Greenway Endocrinology • Community Imaging Partners • Luminis Health
- Entièrement construit comme Bureau standard
- 1 salle de conférence
- 4 bureaux privés
Space in shell condition. Corner Suite. MAXIMUM REFERRAL SYNERGIES LOCATION OVERVIEW • AbsoluteCare of Maryland • Anne Arundel Dermatology • Retina Group • Asthma & Allergy Center • Foot & Ankle Specialists • Labcorp • Greenway Endocrinology • Community Imaging Partners • Luminis Health
- Disposition du plan d’étage ouverte
MAXIMUM REFERRAL SYNERGIES LOCATION OVERVIEW • AbsoluteCare of Maryland • Anne Arundel Dermatology • Retina Group • Asthma & Allergy Center • Foot & Ankle Specialists • Labcorp • Greenway Endocrinology • Community Imaging Partners • Luminis Health
- Entièrement construit comme Bureau standard
- 1 salle de conférence
- 4 bureaux privés
MAXIMUM REFERRAL SYNERGIES LOCATION OVERVIEW • AbsoluteCare of Maryland • Anne Arundel Dermatology • Retina Group • Asthma & Allergy Center • Foot & Ankle Specialists • Labcorp • Greenway Endocrinology • Community Imaging Partners • Luminis Health
- Entièrement construit comme Bureau standard
- 2 salles de conférence
- 4 bureaux privés
MAXIMUM REFERRAL SYNERGIES LOCATION OVERVIEW • AbsoluteCare of Maryland • Anne Arundel Dermatology • Retina Group • Asthma & Allergy Center • Foot & Ankle Specialists • Labcorp • Greenway Endocrinology • Community Imaging Partners • Luminis Health
- Entièrement construit comme Bureau de services professionnels
- 6 bureaux privés
- Disposition du plan d’étage ouverte en général
- 2 salles de conférence
MAXIMUM REFERRAL SYNERGIES LOCATION OVERVIEW • AbsoluteCare of Maryland • Anne Arundel Dermatology • Retina Group • Asthma & Allergy Center • Foot & Ankle Specialists • Labcorp • Greenway Endocrinology • Community Imaging Partners • Luminis Health
- Disposition du plan d’étage ouverte
MAXIMUM REFERRAL SYNERGIES LOCATION OVERVIEW • AbsoluteCare of Maryland • Anne Arundel Dermatology • Retina Group • Asthma & Allergy Center • Foot & Ankle Specialists • Labcorp • Greenway Endocrinology • Community Imaging Partners • Luminis Health
- Entièrement construit comme Bureau de services professionnels
- 6 bureaux privés
- Disposition du plan d’étage ouverte en général
- 1 salle de conférence
MAXIMUM REFERRAL SYNERGIES LOCATION OVERVIEW • AbsoluteCare of Maryland • Anne Arundel Dermatology • Retina Group • Asthma & Allergy Center • Foot & Ankle Specialists • Labcorp • Greenway Endocrinology • Community Imaging Partners • Luminis Health
- Entièrement construit comme Bureau de services professionnels
- 3 bureaux privés
- Disposition du plan d’étage ouverte en général
MAXIMUM REFERRAL SYNERGIES LOCATION OVERVIEW • AbsoluteCare of Maryland • Anne Arundel Dermatology • Retina Group • Asthma & Allergy Center • Foot & Ankle Specialists • Labcorp • Greenway Endocrinology • Community Imaging Partners • Luminis Health
- Entièrement construit comme Bureau standard
- 1 salle de conférence
- 24 bureaux privés
- Peut être associé à un ou plusieurs espaces supplémentaires pour obtenir jusqu’à 17 185 pi² d’espace adjacent.
MAXIMUM REFERRAL SYNERGIES LOCATION OVERVIEW • AbsoluteCare of Maryland • Anne Arundel Dermatology • Retina Group • Asthma & Allergy Center • Foot & Ankle Specialists • Labcorp • Greenway Endocrinology • Community Imaging Partners • Luminis Health
- Entièrement construit comme Bureau standard
- 3 salles de conférence
- 18 bureaux privés
- Peut être associé à un ou plusieurs espaces supplémentaires pour obtenir jusqu’à 17 185 pi² d’espace adjacent.
| Espace | Taille | Terme | Taux de location | Utilisation de l’espace | Aménagement | Disponible |
| 1er étage, ste 140 | 3 803 pi² | 3-12 ans | Sur demande Sur demande Sur demande Sur demande | Bureau/Médical | construction complète | Maintenant |
| 3e étage, ste 300 | 12 503 pi² | Négociable | Sur demande Sur demande Sur demande Sur demande | Bureau/Médical | construction complète | Maintenant |
| 4e étage, ste 400 | 4 301 pi² | 3-12 ans | Sur demande Sur demande Sur demande Sur demande | Bureau | construction complète | Maintenant |
| 4e étage, ste 405 | 1 661 pi² | Négociable | Sur demande Sur demande Sur demande Sur demande | Bureau/Médical | construction complète | Maintenant |
| 4e étage, ste 450 | 2 078 pi² | Négociable | Sur demande Sur demande Sur demande Sur demande | Bureau/Médical | construction complète | Maintenant |
| 4e étage, ste 460 | 2 151 pi² | Négociable | Sur demande Sur demande Sur demande Sur demande | Bureau/Médical | construction complète | Maintenant |
| 5e étage, ste 520 | 2 727 pi² | 3-12 ans | Sur demande Sur demande Sur demande Sur demande | Bureau/Médical | espace cloisonné | Maintenant |
| 5e étage, ste 530 | 2 319 pi² | 3-12 ans | Sur demande Sur demande Sur demande Sur demande | Bureau/Médical | construction complète | Maintenant |
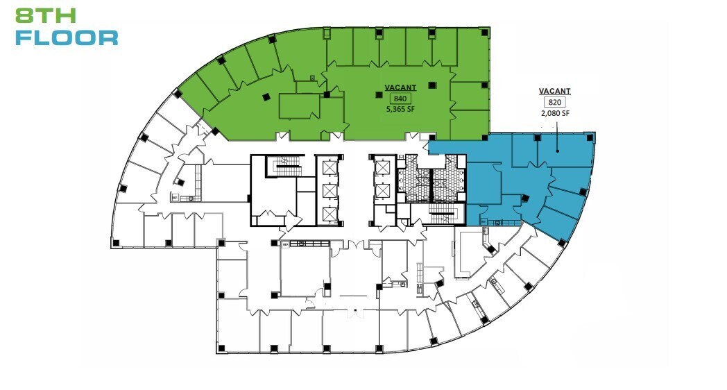
| 8e étage, ste 820 | 2 234 pi² | 3-12 ans | Sur demande Sur demande Sur demande Sur demande | Bureau/Médical | construction complète | Maintenant |
| 8e étage, ste 840 | 3 972 pi² | 3-12 ans | Sur demande Sur demande Sur demande Sur demande | Bureau/Médical | construction complète | Maintenant |
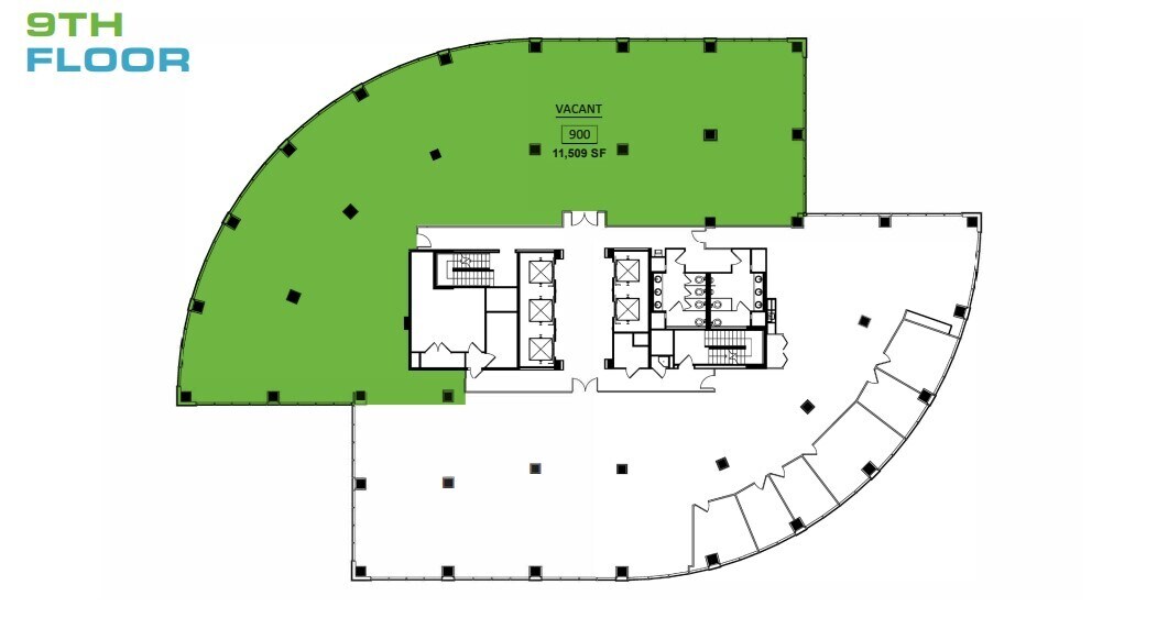
| 9e étage, ste 900 | 12 187 pi² | 3-12 ans | Sur demande Sur demande Sur demande Sur demande | Bureau/Médical | espace cloisonné | Maintenant |
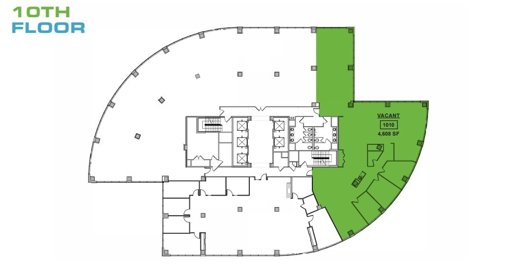
| 10e étage, ste 1001 | 4 599 pi² | 3-12 ans | Sur demande Sur demande Sur demande Sur demande | Bureau/Médical | construction complète | Maintenant |
| 10e étage, ste 1010 | 5 043 pi² | 3-12 ans | Sur demande Sur demande Sur demande Sur demande | Bureau/Médical | construction complète | Maintenant |
| 11e étage, ste 1100A | 8 795 pi² | 3-12 ans | Sur demande Sur demande Sur demande Sur demande | Bureau/Médical | construction complète | Maintenant |
| 11e étage, ste 1100B | 8 390 pi² | 3-12 ans | Sur demande Sur demande Sur demande Sur demande | Bureau | construction complète | Maintenant |
1er étage, ste 140
| Taille |
| 3 803 pi² |
| Terme |
| 3-12 ans |
| Taux de location |
| Sur demande Sur demande Sur demande Sur demande |
| Utilisation de l’espace |
| Bureau/Médical |
| Aménagement |
| construction complète |
| Disponible |
| Maintenant |
3e étage, ste 300
| Taille |
| 12 503 pi² |
| Terme |
| Négociable |
| Taux de location |
| Sur demande Sur demande Sur demande Sur demande |
| Utilisation de l’espace |
| Bureau/Médical |
| Aménagement |
| construction complète |
| Disponible |
| Maintenant |
4e étage, ste 400
| Taille |
| 4 301 pi² |
| Terme |
| 3-12 ans |
| Taux de location |
| Sur demande Sur demande Sur demande Sur demande |
| Utilisation de l’espace |
| Bureau |
| Aménagement |
| construction complète |
| Disponible |
| Maintenant |
4e étage, ste 405
| Taille |
| 1 661 pi² |
| Terme |
| Négociable |
| Taux de location |
| Sur demande Sur demande Sur demande Sur demande |
| Utilisation de l’espace |
| Bureau/Médical |
| Aménagement |
| construction complète |
| Disponible |
| Maintenant |
4e étage, ste 450
| Taille |
| 2 078 pi² |
| Terme |
| Négociable |
| Taux de location |
| Sur demande Sur demande Sur demande Sur demande |
| Utilisation de l’espace |
| Bureau/Médical |
| Aménagement |
| construction complète |
| Disponible |
| Maintenant |
4e étage, ste 460
| Taille |
| 2 151 pi² |
| Terme |
| Négociable |
| Taux de location |
| Sur demande Sur demande Sur demande Sur demande |
| Utilisation de l’espace |
| Bureau/Médical |
| Aménagement |
| construction complète |
| Disponible |
| Maintenant |
5e étage, ste 520
| Taille |
| 2 727 pi² |
| Terme |
| 3-12 ans |
| Taux de location |
| Sur demande Sur demande Sur demande Sur demande |
| Utilisation de l’espace |
| Bureau/Médical |
| Aménagement |
| espace cloisonné |
| Disponible |
| Maintenant |
5e étage, ste 530
| Taille |
| 2 319 pi² |
| Terme |
| 3-12 ans |
| Taux de location |
| Sur demande Sur demande Sur demande Sur demande |
| Utilisation de l’espace |
| Bureau/Médical |
| Aménagement |
| construction complète |
| Disponible |
| Maintenant |
8e étage, ste 820
| Taille |
| 2 234 pi² |
| Terme |
| 3-12 ans |
| Taux de location |
| Sur demande Sur demande Sur demande Sur demande |
| Utilisation de l’espace |
| Bureau/Médical |
| Aménagement |
| construction complète |
| Disponible |
| Maintenant |
8e étage, ste 840
| Taille |
| 3 972 pi² |
| Terme |
| 3-12 ans |
| Taux de location |
| Sur demande Sur demande Sur demande Sur demande |
| Utilisation de l’espace |
| Bureau/Médical |
| Aménagement |
| construction complète |
| Disponible |
| Maintenant |
9e étage, ste 900
| Taille |
| 12 187 pi² |
| Terme |
| 3-12 ans |
| Taux de location |
| Sur demande Sur demande Sur demande Sur demande |
| Utilisation de l’espace |
| Bureau/Médical |
| Aménagement |
| espace cloisonné |
| Disponible |
| Maintenant |
10e étage, ste 1001
| Taille |
| 4 599 pi² |
| Terme |
| 3-12 ans |
| Taux de location |
| Sur demande Sur demande Sur demande Sur demande |
| Utilisation de l’espace |
| Bureau/Médical |
| Aménagement |
| construction complète |
| Disponible |
| Maintenant |
10e étage, ste 1010
| Taille |
| 5 043 pi² |
| Terme |
| 3-12 ans |
| Taux de location |
| Sur demande Sur demande Sur demande Sur demande |
| Utilisation de l’espace |
| Bureau/Médical |
| Aménagement |
| construction complète |
| Disponible |
| Maintenant |
11e étage, ste 1100A
| Taille |
| 8 795 pi² |
| Terme |
| 3-12 ans |
| Taux de location |
| Sur demande Sur demande Sur demande Sur demande |
| Utilisation de l’espace |
| Bureau/Médical |
| Aménagement |
| construction complète |
| Disponible |
| Maintenant |
11e étage, ste 1100B
| Taille |
| 8 390 pi² |
| Terme |
| 3-12 ans |
| Taux de location |
| Sur demande Sur demande Sur demande Sur demande |
| Utilisation de l’espace |
| Bureau |
| Aménagement |
| construction complète |
| Disponible |
| Maintenant |
1er étage, ste 140
| Taille | 3 803 pi² |
| Terme | 3-12 ans |
| Taux de location | Sur demande |
| Utilisation de l’espace | Bureau/Médical |
| Aménagement | construction complète |
| Disponible | Maintenant |
MAXIMUM REFERRAL SYNERGIES LOCATION OVERVIEW • AbsoluteCare of Maryland • Anne Arundel Dermatology • Retina Group • Asthma & Allergy Center • Foot & Ankle Specialists • Labcorp • Greenway Endocrinology • Community Imaging Partners • Luminis Health
- Entièrement construit comme Bureau standard
- 8 bureaux privés
- 1 salle de conférence
3e étage, ste 300
| Taille | 12 503 pi² |
| Terme | Négociable |
| Taux de location | Sur demande |
| Utilisation de l’espace | Bureau/Médical |
| Aménagement | construction complète |
| Disponible | Maintenant |
MAXIMUM REFERRAL SYNERGIES LOCATION OVERVIEW • AbsoluteCare of Maryland • Anne Arundel Dermatology • Retina Group • Asthma & Allergy Center • Foot & Ankle Specialists • Labcorp • Greenway Endocrinology • Community Imaging Partners • Luminis Health
- Entièrement construit comme Bureau standard
- Disposition intensive du bureau
4e étage, ste 400
| Taille | 4 301 pi² |
| Terme | 3-12 ans |
| Taux de location | Sur demande |
| Utilisation de l’espace | Bureau |
| Aménagement | construction complète |
| Disponible | Maintenant |
MAXIMUM REFERRAL SYNERGIES LOCATION OVERVIEW • AbsoluteCare of Maryland • Anne Arundel Dermatology • Retina Group • Asthma & Allergy Center • Foot & Ankle Specialists • Labcorp • Greenway Endocrinology • Community Imaging Partners • Luminis Health
- Entièrement construit comme Bureau de services professionnels
- 4 bureaux privés
- 1 salle de conférence
4e étage, ste 405
| Taille | 1 661 pi² |
| Terme | Négociable |
| Taux de location | Sur demande |
| Utilisation de l’espace | Bureau/Médical |
| Aménagement | construction complète |
| Disponible | Maintenant |
MAXIMUM REFERRAL SYNERGIES LOCATION OVERVIEW • AbsoluteCare of Maryland • Anne Arundel Dermatology • Retina Group • Asthma & Allergy Center • Foot & Ankle Specialists • Labcorp • Greenway Endocrinology • Community Imaging Partners • Luminis Health
- Entièrement construit comme Bureau standard
- 5 bureaux privés
- 1 salle de conférence
4e étage, ste 450
| Taille | 2 078 pi² |
| Terme | Négociable |
| Taux de location | Sur demande |
| Utilisation de l’espace | Bureau/Médical |
| Aménagement | construction complète |
| Disponible | Maintenant |
2nd Generation Medical Suite MAXIMUM REFERRAL SYNERGIES LOCATION OVERVIEW • AbsoluteCare of Maryland • Anne Arundel Dermatology • Retina Group • Asthma & Allergy Center • Foot & Ankle Specialists • Labcorp • Greenway Endocrinology • Community Imaging Partners • Luminis Health
- Entièrement construit comme Espace médical standard
- 4 bureaux privés
- 1 salle de conférence
4e étage, ste 460
| Taille | 2 151 pi² |
| Terme | Négociable |
| Taux de location | Sur demande |
| Utilisation de l’espace | Bureau/Médical |
| Aménagement | construction complète |
| Disponible | Maintenant |
MAXIMUM REFERRAL SYNERGIES LOCATION OVERVIEW • AbsoluteCare of Maryland • Anne Arundel Dermatology • Retina Group • Asthma & Allergy Center • Foot & Ankle Specialists • Labcorp • Greenway Endocrinology • Community Imaging Partners • Luminis Health
- Entièrement construit comme Bureau standard
- 4 bureaux privés
- 1 salle de conférence
5e étage, ste 520
| Taille | 2 727 pi² |
| Terme | 3-12 ans |
| Taux de location | Sur demande |
| Utilisation de l’espace | Bureau/Médical |
| Aménagement | espace cloisonné |
| Disponible | Maintenant |
Space in shell condition. Corner Suite. MAXIMUM REFERRAL SYNERGIES LOCATION OVERVIEW • AbsoluteCare of Maryland • Anne Arundel Dermatology • Retina Group • Asthma & Allergy Center • Foot & Ankle Specialists • Labcorp • Greenway Endocrinology • Community Imaging Partners • Luminis Health
- Disposition du plan d’étage ouverte
5e étage, ste 530
| Taille | 2 319 pi² |
| Terme | 3-12 ans |
| Taux de location | Sur demande |
| Utilisation de l’espace | Bureau/Médical |
| Aménagement | construction complète |
| Disponible | Maintenant |
MAXIMUM REFERRAL SYNERGIES LOCATION OVERVIEW • AbsoluteCare of Maryland • Anne Arundel Dermatology • Retina Group • Asthma & Allergy Center • Foot & Ankle Specialists • Labcorp • Greenway Endocrinology • Community Imaging Partners • Luminis Health
- Entièrement construit comme Bureau standard
- 4 bureaux privés
- 1 salle de conférence
8e étage, ste 820
| Taille | 2 234 pi² |
| Terme | 3-12 ans |
| Taux de location | Sur demande |
| Utilisation de l’espace | Bureau/Médical |
| Aménagement | construction complète |
| Disponible | Maintenant |
MAXIMUM REFERRAL SYNERGIES LOCATION OVERVIEW • AbsoluteCare of Maryland • Anne Arundel Dermatology • Retina Group • Asthma & Allergy Center • Foot & Ankle Specialists • Labcorp • Greenway Endocrinology • Community Imaging Partners • Luminis Health
- Entièrement construit comme Bureau standard
- 4 bureaux privés
- 2 salles de conférence
8e étage, ste 840
| Taille | 3 972 pi² |
| Terme | 3-12 ans |
| Taux de location | Sur demande |
| Utilisation de l’espace | Bureau/Médical |
| Aménagement | construction complète |
| Disponible | Maintenant |
MAXIMUM REFERRAL SYNERGIES LOCATION OVERVIEW • AbsoluteCare of Maryland • Anne Arundel Dermatology • Retina Group • Asthma & Allergy Center • Foot & Ankle Specialists • Labcorp • Greenway Endocrinology • Community Imaging Partners • Luminis Health
- Entièrement construit comme Bureau de services professionnels
- Disposition du plan d’étage ouverte en général
- 6 bureaux privés
- 2 salles de conférence
9e étage, ste 900
| Taille | 12 187 pi² |
| Terme | 3-12 ans |
| Taux de location | Sur demande |
| Utilisation de l’espace | Bureau/Médical |
| Aménagement | espace cloisonné |
| Disponible | Maintenant |
MAXIMUM REFERRAL SYNERGIES LOCATION OVERVIEW • AbsoluteCare of Maryland • Anne Arundel Dermatology • Retina Group • Asthma & Allergy Center • Foot & Ankle Specialists • Labcorp • Greenway Endocrinology • Community Imaging Partners • Luminis Health
- Disposition du plan d’étage ouverte
10e étage, ste 1001
| Taille | 4 599 pi² |
| Terme | 3-12 ans |
| Taux de location | Sur demande |
| Utilisation de l’espace | Bureau/Médical |
| Aménagement | construction complète |
| Disponible | Maintenant |
MAXIMUM REFERRAL SYNERGIES LOCATION OVERVIEW • AbsoluteCare of Maryland • Anne Arundel Dermatology • Retina Group • Asthma & Allergy Center • Foot & Ankle Specialists • Labcorp • Greenway Endocrinology • Community Imaging Partners • Luminis Health
- Entièrement construit comme Bureau de services professionnels
- Disposition du plan d’étage ouverte en général
- 6 bureaux privés
- 1 salle de conférence
10e étage, ste 1010
| Taille | 5 043 pi² |
| Terme | 3-12 ans |
| Taux de location | Sur demande |
| Utilisation de l’espace | Bureau/Médical |
| Aménagement | construction complète |
| Disponible | Maintenant |
MAXIMUM REFERRAL SYNERGIES LOCATION OVERVIEW • AbsoluteCare of Maryland • Anne Arundel Dermatology • Retina Group • Asthma & Allergy Center • Foot & Ankle Specialists • Labcorp • Greenway Endocrinology • Community Imaging Partners • Luminis Health
- Entièrement construit comme Bureau de services professionnels
- Disposition du plan d’étage ouverte en général
- 3 bureaux privés
11e étage, ste 1100A
| Taille | 8 795 pi² |
| Terme | 3-12 ans |
| Taux de location | Sur demande |
| Utilisation de l’espace | Bureau/Médical |
| Aménagement | construction complète |
| Disponible | Maintenant |
MAXIMUM REFERRAL SYNERGIES LOCATION OVERVIEW • AbsoluteCare of Maryland • Anne Arundel Dermatology • Retina Group • Asthma & Allergy Center • Foot & Ankle Specialists • Labcorp • Greenway Endocrinology • Community Imaging Partners • Luminis Health
- Entièrement construit comme Bureau standard
- 24 bureaux privés
- 1 salle de conférence
- Peut être associé à un ou plusieurs espaces supplémentaires pour obtenir jusqu’à 17 185 pi² d’espace adjacent.
11e étage, ste 1100B
| Taille | 8 390 pi² |
| Terme | 3-12 ans |
| Taux de location | Sur demande |
| Utilisation de l’espace | Bureau |
| Aménagement | construction complète |
| Disponible | Maintenant |
MAXIMUM REFERRAL SYNERGIES LOCATION OVERVIEW • AbsoluteCare of Maryland • Anne Arundel Dermatology • Retina Group • Asthma & Allergy Center • Foot & Ankle Specialists • Labcorp • Greenway Endocrinology • Community Imaging Partners • Luminis Health
- Entièrement construit comme Bureau standard
- 18 bureaux privés
- 3 salles de conférence
- Peut être associé à un ou plusieurs espaces supplémentaires pour obtenir jusqu’à 17 185 pi² d’espace adjacent.
Aperçu de la propriété
Le 7501 Greenway center Dr fait partie du parc Maryland Trade Center situé sur la Capital Beltway. L'immeuble de bureaux multilocataires de 192 000 pieds carrés offre des commodités sur place, dont un centre de conditionnement physique entièrement équipé et un café assis. La propriété est adjacente au centre commercial Greenway et a un accès direct aux i-495 et i-295. Un grand nombre de places de stationnement en surface sont à la disposition des locataires à raison de 3,3 par 1 000 pieds carrés. Le hall d'entrée a été récemment rénové et les étages supérieurs offrent une vue spectaculaire sur les environs.
- Atrium
- Centre de conditionnement physique
- Service d'alimentation
- Chauffage central
- Climatisation
Faits sur la propriété
Sélectionner des locataires
- Étage
- Nom du locataire
- Secteur
- 6ᵉ
- AbsoluteCARE, Inc.
- Soins de santé et assistance sociale
- 6ᵉ
- Advance Pain Medicine
- Soins de santé et assistance sociale
- 4ᵉ
- Allergy & Asthma Center
- Soins de santé et assistance sociale
- Multiple
- Community Radiology Associates
- Soins de santé et assistance sociale
- 2ᵉ
- Craig McPhearson Plastic Surgery
- Soins de santé et assistance sociale
- 2ᵉ
- Dr. Claudia A. Maitland, DDS LLC
- Soins de santé et assistance sociale
- 7ᵉ
- The Retina Group of Washington
- Soins de santé et assistance sociale
- 12ᵉ
- T-Rex Corporation
- Services professionnels, scientifiques et techniques
- 8ᵉ
- Trinity Technology Partners
- Services professionnels, scientifiques et techniques
- Inconnu
- World Financial Group
- Finance et assurances
Présenté par
Maryland Trade Center III | 7501 Greenway Center Dr
Hmm, il semble y avoir eu une erreur lors de l’envoi de votre message. Veuillez réessayer.
Merci! Votre message a été envoyé.


















