Se Connecter/S’inscrire
Votre courriel a été envoyé.
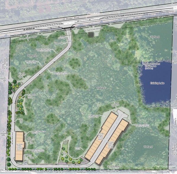
The Auto Ranch 7550 SE Bridge Rd 80 000 pi² Industriel Immeuble Hobe Sound, FL 33455 À vendre



Certaines informations ont été traduites automatiquement.
Faits saillants de l'investissement
- Exclusive Release | Private Gated Car Storage Enclave – Jupiter/Hobe Sound Now Available at Pre-construction Prices
- Extra-wide garage doors for large vehicles and motorhomes
- Tilt-wall concrete construction for durability and security
- 30-foot clear ceiling heights throughout
- Three low-profile, architecturally cohesive buildings
- Spacious drive aisles for easy maneuverability
Résumé de l'annonce
Auto Ranch is a private, gated luxury storage enclave designed for discerning automotive enthusiasts, collectors, and lifestyle owners seeking secure, high-end space for their vehicles, toys, coaches, and motorhomes. The 36-unit development emphasizes privacy, discretion, and exclusivity, with buildings thoughtfully positioned well off the roadway and no on-site commercial activity. Positioned within ±32 acres of native Florida landscape and preserved wetlands, providing natural buffers and privacy. Designed for individuals who value discretion and quality, the project fosters a refined community of collectors and enthusiasts, offering a secure and sophisticated environment to store, showcase, and enjoy high-performance vehicles and lifestyle assets. Unit sizes ranging from ±1,875 SF to ±4,500 SF (exclusive of mezzanines). Auto Ranch is more than storage—it is a private automotive sanctuary. No commercial uses or mechanical shops permitted.
Faits sur la propriété
| Type de vente | Propriétaire utilisateur | État de la construction | Proposé |
| Type de propriété | Industriel | Aire du bâtiment louable | 80 000 pi² |
| Taille du lot | 32,00 AC | Nombre d’étages | 1 |
| Zonage | C-2 - Commercial business | ||
| Type de vente | Propriétaire utilisateur |
| Type de propriété | Industriel |
| Taille du lot | 32,00 AC |
| État de la construction | Proposé |
| Aire du bâtiment louable | 80 000 pi² |
| Nombre d’étages | 1 |
| Zonage | C-2 - Commercial business |
1 1
Plutôt praticable à pied
20/100
Exceptionnellement facile d’accès en voiture
90/100
Plutôt praticable en vélo
40/100
Impôts fonciers
| Numéro de lot | 34-38-42-000-185-00010-8 | Évaluation des bâtiments | 0 $ CAD |
| Évaluation du terrain | 0 $ CAD | Évaluation totale | 1 155 350 $ CAD |
Impôts fonciers
Numéro de lot
34-38-42-000-185-00010-8
Évaluation du terrain
0 $ CAD
Évaluation des bâtiments
0 $ CAD
Évaluation totale
1 155 350 $ CAD
1 de 5
Vidéos
Visite extérieure 3D Matterport
Visite 3D Matterport
Photos
Vue depuis la rue
Rue
Carte
1 de 1
Présenté par
The Auto Ranch | 7550 SE Bridge Rd
Vous êtes déjà membre? Connectez-vous
Hmm, il semble y avoir eu une erreur lors de l’envoi de votre message. Veuillez réessayer.
Merci! Votre message a été envoyé.
