Votre courriel a été envoyé.
7580-7600 Gibson St 9 200 pi² d'espace disponible • Commerce de détail • Liberty Township, OH 45069



Certaines informations ont été traduites automatiquement.
Faits saillants de la sous-location
- Surrounded by major healthcare and education employers.
- Limited retail competition in immediate vicinity.
- High-income trade area with strong population growth.
- Prime location in Liberty Center with direct I-75 access.
Disponibilité de l’espace (1)
Afficher les taux de location en
- Espace
- Taille
- Terme
- Taux de location
- Type de loyer
| Espace | Taille | Terme | Taux de location | Type de loyer | ||
| 1er étage | 9 200 pi² | Négociable | Sur demande Sur demande Sur demande Sur demande | À déterminer |
1er étage
Position your business in one of Southwest Ohio’s most dynamic retail destinations at Liberty Center, strategically located off I-75 between Cincinnati and Dayton. This former pOpshelf space offers prime visibility and convenient access within a thriving trade area known for its strong demographics and limited retail competition. Liberty Township boasts median household incomes exceeding $147,000—more than double the Ohio state average—creating a high-purchasing-power customer base for retailers and service providers.
- Espace de sous-location disponible auprès du locataire actuel
- Partiellement construit comme Espace de commerce de détail standard
- Climatisation centrale
Types de loyers
Le type et le montant du loyer que le locataire (preneur) est tenu de payer au propriétaire (bailleur) sur la durée du bail sont négociés avant la signature du bail par les deux parties. Le type de loyer varie selon les services fournis. Par exemple, le prix d’un loyer hypernet est habituellement inférieur à celui d’un bail à service complet puisque le locataire est tenu d’assumer des dépenses additionnelles par rapport au loyer de base. Contactez le courtier inscripteur pour tout connaître sur les frais connexes et additionnels associés à chaque type de loyer.
1. Service complet: Un taux de location qui comprend des services standards liés à l’immeuble fournis par le propriétaire dans le cadre d’une location annuelle de base.
2. Loyer supernet: Le locataire paie seulement deux des frais de l’immeuble. Le propriétaire et le locataire déterminent ces frais spécifiques avant la signature du bail.
3. Loyer hypernet: Un bail en vertu duquel le locataire est responsable de tous les frais liés à sa part proportionnelle d’occupation de l’immeuble.
4. Brut modifié: Le loyer brut modifié désigne un type général de taux de location dans lequel le locataire est habituellement responsable de sa part proportionnelle d’un ou de plusieurs frais. C’est le propriétaire qui paie les frais restants. Considérez les structures tarifaires courantes suivantes applicables aux loyers bruts modifiés: 4. Plus les services: Un type de bail brut modifié suivant lequel le locataire est responsable de sa part proportionnelle des coûts des services publics, en plus du loyer. 4. Plus le nettoyage: Un type de bail brut modifié suivant lequel le locataire est responsable de sa part proportionnelle des coûts de nettoyage, en plus du loyer. 4. Plus l'électricité: Un type de bail brut modifié suivant lequel le locataire est responsable de sa part proportionnelle des coûts d’électricité, en plus du loyer. 4. Plus l’électricité et le nettoyage: Un type de bail brut modifié dans lequel le locataire est responsable de sa part proportionnelle des coûts d’électricité et de nettoyage, en plus du loyer. 4. Plus les services publics et le nettoyage: Un type de bail brut modifié dans lequel le locataire est responsable de sa part proportionnelle des coûts des services publics et de nettoyage, en plus du loyer. 4. Bail industriel brut: Un type de bail brut modifié dans lequel le locataire paie un ou plusieurs des frais, en plus du loyer. Le propriétaire et le locataire déterminent ces frais spécifiques avant la signature du bail.
5. L’électricité est à la charge du locataire: Le propriétaire paie pour tous les services et le locataire est responsable de sa propre utilisation de l’éclairage et des prises électriques dans l’espace qu’il occupe.
6. Négociable ou sur demande: Cette option est utilisée lorsque le contact de location ne précise pas le type de loyer ou de service.
7. À déterminer: À déterminer ; utilisé pour les immeubles dont le type de services ou de loyer n’est pas connu, souvent quand l’immeuble n’est pas encore construit.
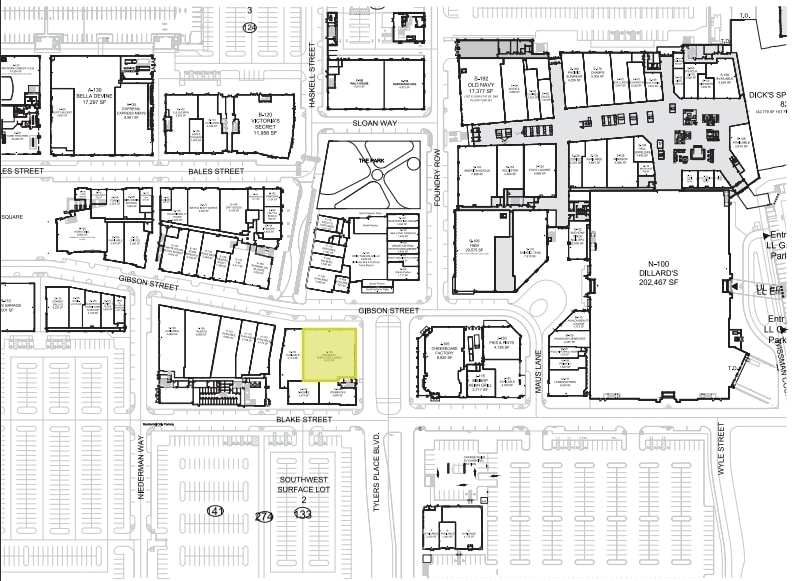
Plan de site
Sélectionner des locataires à 7580-7600 Gibson St, Liberty Township, OH 45069
- Locataire
- Description
- Emplacements US
- Portée
- AKT
- Entraînement physique
- 8
- National
- Celebrate Local
- Cartes/cadeaux
- 1
- -
- ERA Real Solutions
- Immobilier
- 423
- National
- Graeter's Ice Cream
- Crème glacée
- 66
- National
- Pen Nash Company
- Grand magasin
- 1
- -
- Warby Parker
- Accessoires de lunettes
- 407
- International
| Locataire | Description | Emplacements US | Portée |
| AKT | Entraînement physique | 8 | National |
| Celebrate Local | Cartes/cadeaux | 1 | - |
| ERA Real Solutions | Immobilier | 423 | National |
| Graeter's Ice Cream | Crème glacée | 66 | National |
| Pen Nash Company | Grand magasin | 1 | - |
| Warby Parker | Accessoires de lunettes | 407 | International |
Faits sur la propriété
| Superficie totale disponible | 9 200 pi² | Superficie commerciale brute | 21 261 pi² |
| Type de propriété | Commerce de détail | Année de construction | 2015 |
| Sous-type de propriété | Restaurant |
| Superficie totale disponible | 9 200 pi² |
| Type de propriété | Commerce de détail |
| Sous-type de propriété | Restaurant |
| Superficie commerciale brute | 21 261 pi² |
| Année de construction | 2015 |
À propos de la propriété
The surrounding area is anchored by major employers such as Cincinnati Children’s Hospital – Liberty Campus, UC Health West Chester Hospital, and Lakota Local Schools, ensuring a robust daytime population. Liberty Center itself is a vibrant mixed-use development combining retail, dining, residential, and office space, attracting consistent foot traffic and regional visitors. With quick connectivity to Cincinnati and Dayton, plus proximity to Tylersville Road and other key commercial corridors, this location offers unmatched regional reach.
Principaux détaillants à proximité
Présenté par
7580-7600 Gibson St
Hmm, il semble y avoir eu une erreur lors de l’envoi de votre message. Veuillez réessayer.
Merci! Votre message a été envoyé.
