Se Connecter/S’inscrire
Votre courriel a été envoyé.
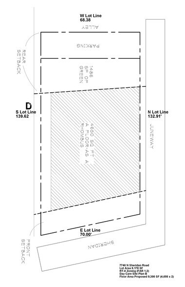
ROGERS PARK DAY CARE CENTER (BUILD-TO-SUIT) 7728 N Sheridan Rd Terrain à louer de 0,21 acres • Résidentiel • Chicago, IL 60626


Certaines informations ont été traduites automatiquement.
LOT Disponible
Afficher les taux de location en
| Taux de location |
|
Taille du lot | 0,21 AC |
| Durée du bail | Négociable |
| Taux de location | |
| Durée du bail | Négociable |
| Taille du lot | 0,21 AC |
Proposed 2-story Day Care Center consisting of a 12,000 SF building. No zoning change required.
Faits sur la propriété
1 1
Walk Score®
Très pratique à pied (76)
Transit Score®
Excellent transport en commun (76)
Bike Score®
Très cyclable (76)
1 de 3
Vidéos
Visite extérieure 3D Matterport
Visite 3D Matterport
Photos
Vue depuis la rue
Rue
Carte
1 de 1
Présenté par
ROGERS PARK DAY CARE CENTER (BUILD-TO-SUIT) | 7728 N Sheridan Rd
Vous êtes déjà membre? Connectez-vous
Hmm, il semble y avoir eu une erreur lors de l’envoi de votre message. Veuillez réessayer.
Merci! Votre message a été envoyé.
Votre message a été envoyé !
Activez votre compte LoopNet dès maintenant pour suivre les propriétés, recevoir des alertes en temps réel, gagner du temps sur vos demandes futures et bien plus encore.
