Votre courriel a été envoyé.
7755 Ellis Rd 13 475 pi² d'espace disponible • Industriel • Melbourne, FL 32904



Certaines informations ont été traduites automatiquement.
Faits saillants de la sous-location
- Highly desired and convenient location, approx 1 mile to Melbourne- Orlando International Airport; I-95, St Johns Heritage Parkway and Wickham Rd.
Caractéristiques
Tous les espaces disponibles(1)
Afficher les taux de location en
- Espace
- Taille
- Terme
- Taux de location
- Utilisation de l’espace
- État
- Disponible
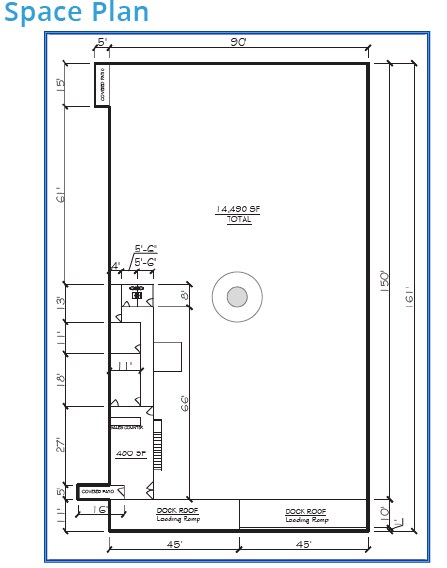
Free standing warehouse boasting 13,475 sq ft, on .94 acres on corner of Ellis Rd and Technology Dr. Highly desired and convenient location, approx 1 mile to Melbourne- Orlando International Airport; I-95, St Johns Heritage Parkway and Wickham Rd. Sublet from Tenant with 12 months remaining on Lease and/or expand into future long-term lease. Immediate availability, subject to Landlord’s approval. Zoned M-1, Light Industrial 3 dock doors: (2) 8’ x 10’ and (1) 12’ x 10’ Clear height: 16-18 ft Power: Single-Phase, 120/240 Volt, 400 Amp Service HVAC: Goodman 4-Ton HVAC in Office and Showroom Construction: Block and Metal Ample Parking Utilities: Electric: Florida Power & Light | Water: City of West Melbourne ADA Compliant; Ramp to front
- Espace de sous-location disponible auprès du locataire actuel
- Le taux de location ne comprend pas les services publics, les services de bâtiment ou les dépenses immobilières.
| Espace | Taille | Terme | Taux de location | Utilisation de l’espace | État | Disponible |
| 1er étage | 13 475 pi² | Oct. 2026 | 13,53 $ CAD/pi²/an 1,13 $ CAD/pi²/mois 182 368 $ CAD/an 15 197 $ CAD/mois | Industriel | construction complète | Maintenant |
1er étage
| Taille |
| 13 475 pi² |
| Terme |
| Oct. 2026 |
| Taux de location |
| 13,53 $ CAD/pi²/an 1,13 $ CAD/pi²/mois 182 368 $ CAD/an 15 197 $ CAD/mois |
| Utilisation de l’espace |
| Industriel |
| État |
| construction complète |
| Disponible |
| Maintenant |
1er étage
| Taille | 13 475 pi² |
| Terme | Oct. 2026 |
| Taux de location | 13,53 $ CAD/pi²/an |
| Utilisation de l’espace | Industriel |
| État | construction complète |
| Disponible | Maintenant |
Free standing warehouse boasting 13,475 sq ft, on .94 acres on corner of Ellis Rd and Technology Dr. Highly desired and convenient location, approx 1 mile to Melbourne- Orlando International Airport; I-95, St Johns Heritage Parkway and Wickham Rd. Sublet from Tenant with 12 months remaining on Lease and/or expand into future long-term lease. Immediate availability, subject to Landlord’s approval. Zoned M-1, Light Industrial 3 dock doors: (2) 8’ x 10’ and (1) 12’ x 10’ Clear height: 16-18 ft Power: Single-Phase, 120/240 Volt, 400 Amp Service HVAC: Goodman 4-Ton HVAC in Office and Showroom Construction: Block and Metal Ample Parking Utilities: Electric: Florida Power & Light | Water: City of West Melbourne ADA Compliant; Ramp to front
- Espace de sous-location disponible auprès du locataire actuel
- Le taux de location ne comprend pas les services publics, les services de bâtiment ou les dépenses immobilières.
Aperçu de la propriété
Free standing warehouse boasting 13,475 sq ft, on .94 acres on corner of Ellis Rd and Technology Dr. Highly desired and convenient location, approx 1 mile to Melbourne- Orlando International Airport; I-95, St Johns Heritage Parkway and Wickham Rd. Sublet from Tenant with 12 months remaining on Lease and/or expand into future long-term lease. Immediate availability, subject to Landlord’s approval. Zoned M-1, Light Industrial 3 dock doors: (2) 8’ x 10’ and (1) 12’ x 10’ Clear height: 16-18 ft Power: Single-Phase, 120/240 Volt, 400 Amp Service HVAC: Goodman 4-Ton HVAC in Office and Showroom Construction: Block and Metal Ample Parking Utilities: Electric: Florida Power & Light | Water: City of West Melbourne ADA Compliant; Ramp to front
Faits sur l’installation entrepôt
Sélectionner des locataires
- Étage
- Nom du locataire
- 1ᵉʳ
- Marine Whole Codings
Présenté par
7755 Ellis Rd
Hmm, il semble y avoir eu une erreur lors de l’envoi de votre message. Veuillez réessayer.
Merci! Votre message a été envoyé.
