Votre courriel a été envoyé.
7755 Tecumseh Rd E 2 150 pi² d'espace disponible • Commerce de détail • Windsor, ON N8T 1G3



Certaines informations ont été traduites automatiquement.
FAITS SAILLANTS
- Excellente visibilité grâce à un fort passage de véhicules le long de l'une des artères les plus fréquentées de Windsor, à proximité directe d'autres détaillants nationaux.
DISPONIBILITÉ DE L’ESPACE (1)
Afficher les taux de location en
- ESPACE
- TAILLE
- TERME
- TAUX DE LOCATION
- TYPE DE LOYER
| Espace | Taille | Terme | Taux de location | Type de loyer | ||
| 1er étage, ste 100 | 2 150 pi² | Négociable | 16,00 $ CAD/pi²/an 1,33 $ CAD/pi²/mois 34 400 $ CAD/an 2 867 $ CAD/mois | Loyer hypernet |
1er étage, ste 100
- Le taux de location ne comprend pas les services publics, les services de bâtiment ou les dépenses immobilières.
Types de loyers
Le type et le montant du loyer que le locataire (preneur) est tenu de payer au propriétaire (bailleur) sur la durée du bail sont négociés avant la signature du bail par les deux parties. Le type de loyer varie selon les services fournis. Par exemple, le prix d’un loyer hypernet est habituellement inférieur à celui d’un bail à service complet puisque le locataire est tenu d’assumer des dépenses additionnelles par rapport au loyer de base. Contactez le courtier inscripteur pour tout connaître sur les frais connexes et additionnels associés à chaque type de loyer.
1. Service complet: Un taux de location qui comprend des services standards liés à l’immeuble fournis par le propriétaire dans le cadre d’une location annuelle de base.
2. Loyer supernet: Le locataire paie seulement deux des frais de l’immeuble. Le propriétaire et le locataire déterminent ces frais spécifiques avant la signature du bail.
3. Loyer hypernet: Un bail en vertu duquel le locataire est responsable de tous les frais liés à sa part proportionnelle d’occupation de l’immeuble.
4. Brut modifié: Le loyer brut modifié désigne un type général de taux de location dans lequel le locataire est habituellement responsable de sa part proportionnelle d’un ou de plusieurs frais. C’est le propriétaire qui paie les frais restants. Considérez les structures tarifaires courantes suivantes applicables aux loyers bruts modifiés: 4. Plus les services: Un type de bail brut modifié suivant lequel le locataire est responsable de sa part proportionnelle des coûts des services publics, en plus du loyer. 4. Plus le nettoyage: Un type de bail brut modifié suivant lequel le locataire est responsable de sa part proportionnelle des coûts de nettoyage, en plus du loyer. 4. Plus l'électricité: Un type de bail brut modifié suivant lequel le locataire est responsable de sa part proportionnelle des coûts d’électricité, en plus du loyer. 4. Plus l’électricité et le nettoyage: Un type de bail brut modifié dans lequel le locataire est responsable de sa part proportionnelle des coûts d’électricité et de nettoyage, en plus du loyer. 4. Plus les services publics et le nettoyage: Un type de bail brut modifié dans lequel le locataire est responsable de sa part proportionnelle des coûts des services publics et de nettoyage, en plus du loyer. 4. Bail industriel brut: Un type de bail brut modifié dans lequel le locataire paie un ou plusieurs des frais, en plus du loyer. Le propriétaire et le locataire déterminent ces frais spécifiques avant la signature du bail.
5. L’électricité est à la charge du locataire: Le propriétaire paie pour tous les services et le locataire est responsable de sa propre utilisation de l’éclairage et des prises électriques dans l’espace qu’il occupe.
6. Négociable ou sur demande: Cette option est utilisée lorsque le contact de location ne précise pas le type de loyer ou de service.
7. À déterminer: À déterminer ; utilisé pour les immeubles dont le type de services ou de loyer n’est pas connu, souvent quand l’immeuble n’est pas encore construit.
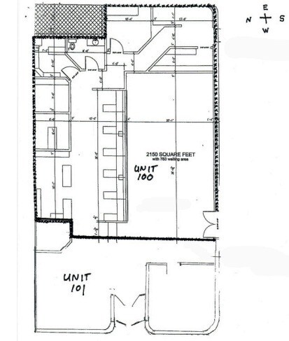
PLAN DE SITE
FAITS SUR LA PROPRIÉTÉ
| Superficie totale disponible | 2 150 pi² | Année de construction | 1983 |
| Type de propriété | Commerce de détail | Ratio de stationnement | 9,06/1 000 pi² |
| Superficie commerciale brute | 10 042 pi² |
| Superficie totale disponible | 2 150 pi² |
| Type de propriété | Commerce de détail |
| Superficie commerciale brute | 10 042 pi² |
| Année de construction | 1983 |
| Ratio de stationnement | 9,06/1 000 pi² |
À PROPOS DE LA PROPRIÉTÉ
Ce complexe commercial moderne est situé sur un terrain d'environ 1,17 acre à l'angle de Tecumseh Road East et Annie St. Il s'agit d'une plaza commerciale de plain-pied avec une superficie brute d'environ 10 042 pi². Actuellement, une superficie de 2 150 pi² est disponible à l'arrière. Idéal pour une boulangerie, un bureau d'affaires, un centre de garde d'enfants, une école commerciale, une installation d'appareils médicaux, un cabinet médical, un atelier d'impression, un studio professionnel, un restaurant, un magasin de détail et plus encore. La propriété offre un accès supérieur à Tecumseh Road. Elle est stratégiquement située dans la ville de Windsor, en Ontario, dans un emplacement de choix avec une façade sur Tecumseh Road, offrant une visibilité exceptionnelle au trafic automobile sur l'une des artères les plus fréquentées de Windsor, au cœur du quartier commercial, à proximité directe d'autres détaillants nationaux. Le site dispose d'un stationnement asphalté et d'un nombre suffisant de places pour les commerces.
PRINCIPAUX DÉTAILLANTS À PROXIMITÉ
Présenté par
7755 Tecumseh Rd E
Hmm, il semble y avoir eu une erreur lors de l’envoi de votre message. Veuillez réessayer.
Merci! Votre message a été envoyé.

