Se Connecter/S’inscrire
Votre courriel a été envoyé.
777 E Wisconsin Ave
Milwaukee, WI 53202
US Bank Center · Commerce de détail Propriété À louer
·
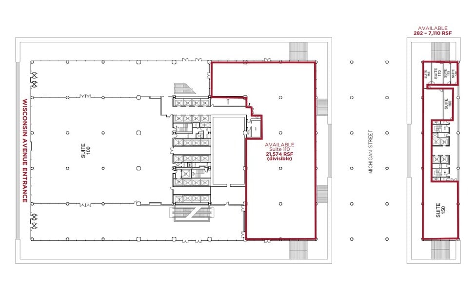
70 808 pi²


Certaines informations ont été traduites automatiquement.
Faits saillants
- Entrée et hall d'entrée de l'atrium à deux étages et centre de conditionnement physique sur place et formation avec le Club 777.
- Soins médicaux sur place pour tous les locataires du centre de santé Aurora ainsi que des soins médicaux sur place.
- Un protocole exhaustif sur la COVID est en place.
- Accès pratique aux transports publics I-94, I-43 et Milwaukee.
- Café et boulangerie Collectivo appartenant à la localité dans le hall d'entrée.
- Nouveau système de filtration CVC (2021).
Aperçu de la propriété
L'édifice le plus haut du Wisconsin.
- Atrium
- Banque
- Ligne d'autobus
- Accès contrôlé
- Installations de conférences
- Dépanneur
- Nettoyeur à sec
- Centre de conditionnement physique
- Aire de restauration
- Service d'alimentation
- Gestionnaire d'immeuble sur place
- Restaurant
- Système de sécurité
- Affichage
- Chauffage central
- Lumière naturelle
- Réception
- Wi-Fi
- Climatisation
Faits sur la propriété
Type de bâtiment
Bureau
Année de construction/rénovation
1971/2015
Tarification de LoopNet
4 Étoiles
Hauteur du bâtiment
42 étages
Taille du bâtiment
1 236 203 pi²
Classe d’immeuble
A
Superficie de plancher typique
25 690 pi²
Hauteur du plafond non finie
10’
Stationnement
1 400 places de stationnement couvert
1 de 7
Vidéos
Visite extérieure 3D Matterport
Visite 3D Matterport
Photos
Vue depuis la rue
Rue
Carte
