Se Connecter/S’inscrire
Votre courriel a été envoyé.
7777 Greenwell Springs Rd
Baton Rouge, LA 70814
12,723 SF Industrial Warehouse · Industriel Propriété À vendre


Certaines informations ont été traduites automatiquement.
Faits saillants de l'investissement
- Excellent Visibility
- Industrial or Retail Use
- Back up Generator
- Hard Corner Greenwell Springs Rd & Lanier Dr.
- 3-Phase Power
Résumé de l'annonce
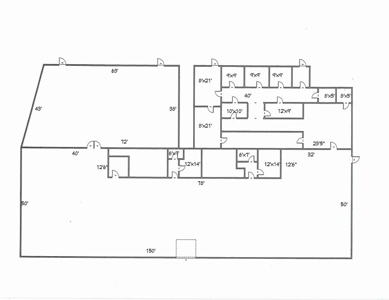
12,723 SF Industrial Warehouse
• 12,723 SF Block Side Walls with Metal Roof
• 7,500 SF, 11' Clear and Sprinklered
• 1.16 Acre Site
• Three Phase Power
• Back Up Generator
• Zoned C-1
• Located corner of Greenwell Springs Rd. and Lanier Dr.
• 12,723 SF Block Side Walls with Metal Roof
• 7,500 SF, 11' Clear and Sprinklered
• 1.16 Acre Site
• Three Phase Power
• Back Up Generator
• Zoned C-1
• Located corner of Greenwell Springs Rd. and Lanier Dr.
Faits sur la propriété
Impôts fonciers
| Numéro de lot | 00305553 | Évaluation des bâtiments | 79 042 $ CAD |
| Évaluation du terrain | 4 686 $ CAD | Évaluation totale | 83 728 $ CAD |
Impôts fonciers
Numéro de lot
00305553
Évaluation du terrain
4 686 $ CAD
Évaluation des bâtiments
79 042 $ CAD
Évaluation totale
83 728 $ CAD
1 de 3
Vidéos
Visite extérieure 3D Matterport
Visite 3D Matterport
Photos
Vue depuis la rue
Rue
Carte
