Se Connecter/S’inscrire
Votre courriel a été envoyé.
781 Eighth Ave 8 613 pi² 100% Loué Commerce de détail Immeuble New York, NY 10036 12 895 738 $ CAD (1 497,24 $ CAD/pi²) 4,68% Taux de capitalisation


Certaines informations ont été traduites automatiquement.
Faits saillants de l'investissement
- Prime Times Square location with unmatched pedestrian traffic.
- Surrounded by iconic landmarks and luxury developments.
- Strong long-term appreciation potential in Midtown Manhattan.
- Fully leased retail building delivering stable income.
- Excellent transit connectivity via major subway lines.
- Nearby transit options include multiple subway lines (1, 2, 3, A, C, R, W, J, Z, 4, 5, 6) and proximity to Port Authority and Metro-North Railroad.
Résumé de l'annonce
Douglas Elliman (DE) a été désigné exclusivement pour commercialiser la vente du 781 Eighth Avenue, un immeuble de commerce de premier ordre situé au cœur de Midtown Manhattan entre les 47e et 48e rues. Il s'agit d'une occasion rare à Times Square. Le sous-marché bénéficie d'un trafic piétonnier quotidien important, attirant chaque année des millions de spectateurs, de visiteurs et de touristes. Entouré de nombreux nouveaux complexes résidentiels de luxe développés au cours de la dernière décennie, et d'autres sont à venir, ce quartier est sur le point de demeurer une destination incontournable à l'échelle mondiale.
Le 781 Eighth Avenue offre un emplacement de choix pour les entreprises d'hôtellerie ou de commerce de détail offrant un excellent potentiel de revenus et une appréciation à long terme.
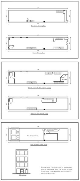
L'immeuble est d'environ 8 613 pieds carrés répartis sur quatre étages et un sous-sol. Il s'agit d'un immeuble de commerce de détail situé dans l'immobilier le plus convoité de New York, ce qui le rend idéal pour tous les types d'investisseurs.
Il est situé près de Columbus Circle, de la cathédrale Saint-Patrick, du Rockefeller Center, de Central Park, du Radio City Music Hall, du terminal de l'Administration portuaire, du siège social des Nations Unies, du terminal Grand Central, du Chrysler Building, du Metro-North Railroad et de Whole Foods, entre autres.
Les lignes de métro à proximité comprennent les trains 1, 2, 3, A, C, R, W, J, Z, 4, 5 et 6, tous dans un rayon de plusieurs blocs.
S'il vous plaît n'hésitez pas à me contacter pour toute question si vous êtes intéressé. Soyez attentif et ne dérangez pas les locataires.
N'hésitez pas à me contacter pour toute question si vous êtes intéressé. Soyez attentif et ne dérangez pas les locataires.
Le 781 Eighth Avenue offre un emplacement de choix pour les entreprises d'hôtellerie ou de commerce de détail offrant un excellent potentiel de revenus et une appréciation à long terme.
L'immeuble est d'environ 8 613 pieds carrés répartis sur quatre étages et un sous-sol. Il s'agit d'un immeuble de commerce de détail situé dans l'immobilier le plus convoité de New York, ce qui le rend idéal pour tous les types d'investisseurs.
Il est situé près de Columbus Circle, de la cathédrale Saint-Patrick, du Rockefeller Center, de Central Park, du Radio City Music Hall, du terminal de l'Administration portuaire, du siège social des Nations Unies, du terminal Grand Central, du Chrysler Building, du Metro-North Railroad et de Whole Foods, entre autres.
Les lignes de métro à proximité comprennent les trains 1, 2, 3, A, C, R, W, J, Z, 4, 5 et 6, tous dans un rayon de plusieurs blocs.
S'il vous plaît n'hésitez pas à me contacter pour toute question si vous êtes intéressé. Soyez attentif et ne dérangez pas les locataires.
N'hésitez pas à me contacter pour toute question si vous êtes intéressé. Soyez attentif et ne dérangez pas les locataires.
Faits sur la propriété
Type de vente
Investissement
Type de propriété
Commerce de détail
Sous-type de propriété
Bien à usage mixte
Taille du bâtiment
8 613 pi²
Classe d’immeuble
B
Année de construction
1920
Prix
12 895 738 $ CAD
Prix par pi²
1 497,24 $ CAD
Taux de capitalisation
4,68%
Revenu net d’exploitation
603 570 $ CAD
Pourcentage loué
100%
Location
Multiples
Hauteur du bâtiment
4 étages
Coefficient d’occupation des sols de l’immeuble
3,95
Taille du lot
0,05 AC
Zonage
C6-4 - Les quartiers permettent une large gamme d'utilisations commerciales de grande envergure nécessitant un emplacement central.
Façade
19’ sur 8th Ave
Commodités
- Ligne d'autobus
Walk Score®
Un paradis pour un marcheur (98)
Transit Score®
Un paradis pour conducteur (100)
Bike Score®
Un paradis pour un cycliste (93)
Principaux détaillants à proximité
Impôts fonciers
| Numéro de lot | 1038-0033 | Évaluation des bâtiments | 486 666 $ CAD |
| Évaluation du terrain | 701 389 $ CAD | Évaluation totale | 1 188 055 $ CAD |
Impôts fonciers
Numéro de lot
1038-0033
Évaluation du terrain
701 389 $ CAD
Évaluation des bâtiments
486 666 $ CAD
Évaluation totale
1 188 055 $ CAD
1 de 3
Vidéos
Visite extérieure 3D Matterport
Visite 3D Matterport
Photos
Vue depuis la rue
Rue
Carte
Présenté par
781 Eighth Ave
Vous êtes déjà membre? Connectez-vous
Hmm, il semble y avoir eu une erreur lors de l’envoi de votre message. Veuillez réessayer.
Merci! Votre message a été envoyé.
