Votre courriel a été envoyé.
7980 B 7980 B 206A st 1 400 pi² d'espace disponible • Médical • 4 étoiles • Langley, BC V2Y 1X6



Certaines informations ont été traduites automatiquement.
Faits saillants
- Nouvelle opportunité de clinique médicale haut de gamme – Willoughby Town Centre, Langley
- Finitions haut de gamme / plafond haut avec un agencement propre, moderne et professionnel
- Entouré de nouvelles maisons en rangée, de condos et de jeunes familles
- Une communauté dynamique, luxueuse et en forte croissance avec une demande exceptionnelle de la part des patients.
- Quartier résidentiel à forte croissance et à revenu élevé
- Services publics, WIFI, nettoyage professionnel hebdomadaire inclus dans le bail
Tous les espaces disponibles(1)
Afficher les taux de location en
- Espace
- Taille
- Terme
- Taux de location
- Utilisation de l’espace
- Aménagement
- Disponible
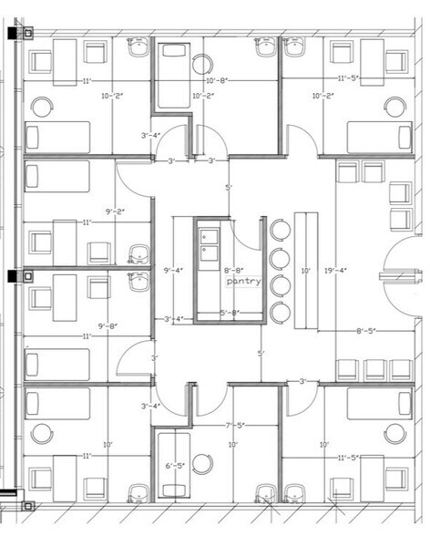
Occasion exceptionnelle de clinique médicale clé en main, flambant neuve, au Willoughby Town Centre à Langley, offrant un espace connecté de 1 400 pieds carrés (Unités B320–7980 206A Street) avec 8 salles d'examen, une zone de réception (3–4 employés), une salle d'attente de plus de 8 sièges, une salle du personnel, et des finitions haut de gamme—sans coûts de construction ni de rénovation, prête dans 1 à 2 mois. Cette clinique en façade de commerce à haute visibilité propose un loyer mensuel fixe sans partage ni pourcentage de frais généraux, avec services et utilités inclus, et la flexibilité de salles partagées pour réduire les coûts, ce qui la rend idéale pour les médecins indépendants et les spécialistes à la recherche d'un espace moderne et professionnel dans l'une des communautés de Langley en pleine croissance et à forte demande.
- Entièrement construit comme Espace médical standard
- Espace en excellent état
- Air central et chauffage
- CVCA disponible après les heures de travail
- Nouvelle clinique médicale haut de gamme - Espace partagé
- Services publics, Wi-Fi, nettoyage et espaces communs inclus
- 8 salles d'examen de 110 à 120 pieds carrés chacune
- Disposition intensive du bureau
- Aire de réception
- Système de sécurité
- Accessible aux fauteuils roulants
- Bureau médical entièrement clé en main (aucun aménagement requis)
- Idéal pour les médecins de famille
- Couloir en forme de U reliant les deux unités
| Espace | Taille | Terme | Taux de location | Utilisation de l’espace | Aménagement | Disponible |
| 3e étage, ste B320 | 1 400 pi² | Négociable | Sur demande Sur demande Sur demande Sur demande | Médical | construction complète | Maintenant |
3e étage, ste B320
| Taille |
| 1 400 pi² |
| Terme |
| Négociable |
| Taux de location |
| Sur demande Sur demande Sur demande Sur demande |
| Utilisation de l’espace |
| Médical |
| Aménagement |
| construction complète |
| Disponible |
| Maintenant |
3e étage, ste B320
| Taille | 1 400 pi² |
| Terme | Négociable |
| Taux de location | Sur demande |
| Utilisation de l’espace | Médical |
| Aménagement | construction complète |
| Disponible | Maintenant |
Occasion exceptionnelle de clinique médicale clé en main, flambant neuve, au Willoughby Town Centre à Langley, offrant un espace connecté de 1 400 pieds carrés (Unités B320–7980 206A Street) avec 8 salles d'examen, une zone de réception (3–4 employés), une salle d'attente de plus de 8 sièges, une salle du personnel, et des finitions haut de gamme—sans coûts de construction ni de rénovation, prête dans 1 à 2 mois. Cette clinique en façade de commerce à haute visibilité propose un loyer mensuel fixe sans partage ni pourcentage de frais généraux, avec services et utilités inclus, et la flexibilité de salles partagées pour réduire les coûts, ce qui la rend idéale pour les médecins indépendants et les spécialistes à la recherche d'un espace moderne et professionnel dans l'une des communautés de Langley en pleine croissance et à forte demande.
- Entièrement construit comme Espace médical standard
- Disposition intensive du bureau
- Espace en excellent état
- Aire de réception
- Air central et chauffage
- Système de sécurité
- CVCA disponible après les heures de travail
- Accessible aux fauteuils roulants
- Nouvelle clinique médicale haut de gamme - Espace partagé
- Bureau médical entièrement clé en main (aucun aménagement requis)
- Services publics, Wi-Fi, nettoyage et espaces communs inclus
- Idéal pour les médecins de famille
- 8 salles d'examen de 110 à 120 pieds carrés chacune
- Couloir en forme de U reliant les deux unités
Aperçu de la propriété
Nouvelle Opportunité de Clinique Médicale Premium – Willoughby Town Centre, Langley • Entièrement Neuf • Clé en Main • Pas de Partage • Pas de Frais de Rénovation • Prêt en 3–4 Mois • Une clinique médicale moderne et clé en main dans l’un des quartiers à la croissance la plus rapide de Langley. • Visibilité exceptionnelle • Façade commerciale • Finitions haut de gamme • Loyer mensuel fixe • Pas de pourcentage de frais généraux. • À propos de l’espace • Bureau médical entièrement clé en main (aucune construction nécessaire) • Prêt à fonctionner en 3–4 mois • Finitions haut de gamme avec un aménagement propre, moderne et professionnel • Façade commerciale avec forte visibilité et potentiel d’enseigne • Pas de partage, pas de pourcentage de frais généraux, pas de frais cachés • Économisez plus de 300 000 $ en frais de rénovation • Idéal pour les médecins de famille et les spécialistes souhaitant leur indépendance • Situé aux unités B320-7980 206A Street, Langley (espace connecté de 1 400 pi²) (Willoughby Town Centre) • Caractéristiques incluses : • 8 salles d’examen (110–120 pi² chacune)/Salles partagées disponibles pour réduire vos coûts • Espace réception (3–4 employés) • Espace d’attente (8+ places assises) • Salle du personnel • Couloir en forme de U reliant les deux unités • Services publics, Wi-Fi, nettoyage et espaces communs inclus • Pourquoi choisir Willoughby Town Centre ? • Une communauté dynamique, luxueuse et en forte croissance avec une demande exceptionnelle de patients. • Quartier résidentiel en pleine expansion avec des revenus élevés • Entouré de nouvelles maisons en rangée, condos et jeunes familles • Forte circulation piétonnière et environnement commercial actif • À proximité des écoles, boutiques, cafés, restaurants et services • À 5 minutes de l’autoroute 1 • À 15 minutes de Surrey • Un des secteurs les plus recherchés de Langley pour les prestataires de soins de santé • Attrait professionnel • Parfait pour les médecins indépendants • Emplacement médical commercial prestigieux • Espace de clinique premium en forte demande • Conçu pour une croissance à long terme de votre pratique • Arrêtez de payer 25–30 % de vos revenus à d’autres cliniques. • Grâce à notre modèle sans partage, vous conservez 100 % de vos revenus et réduisez considérablement vos frais généraux. • Clé en main, pas de partage, pas de frais de rénovation — emménagez et commencez votre pratique immédiatement • Excellente Opportunité – Dépêchez-vous de Réserver Votre Clinique – Cette opportunité ne durera pas !! Nombre limité de salles disponibles. Situé dans une zone en forte croissance et en forte demande avec un potentiel à long terme. Cette opportunité ne durera pas. ?? Informations de Contact Téléphone : 778-862-5153 Courriel : b320medicallangley@gmail.com
- Accès contrôlé
- Système de sécurité
- Affichage
- Climatisation
- Détecteur de fumée
Faits sur la propriété
Sélectionner des locataires
- Étage
- Nom du locataire
- Secteur
- 3ᵉ
- physicians
- Soins de santé et assistance sociale
Présenté par
Green Valley Holding Ltd
7980 B | 7980 B 206A st
Hmm, il semble y avoir eu une erreur lors de l’envoi de votre message. Veuillez réessayer.
Merci! Votre message a été envoyé.



