Votre courriel a été envoyé.
Certaines informations ont été traduites automatiquement.
Faits saillants
- Central Location.
- Private Off-Street Parking Available.
- Good Accessibility To / From Motorways and City Cent.
Tous les espaces disponibles(2)
Afficher les taux de location en
- Espace
- Taille
- Terme
- Taux de location
- Utilisation de l’espace
- Aménagement
- Disponible
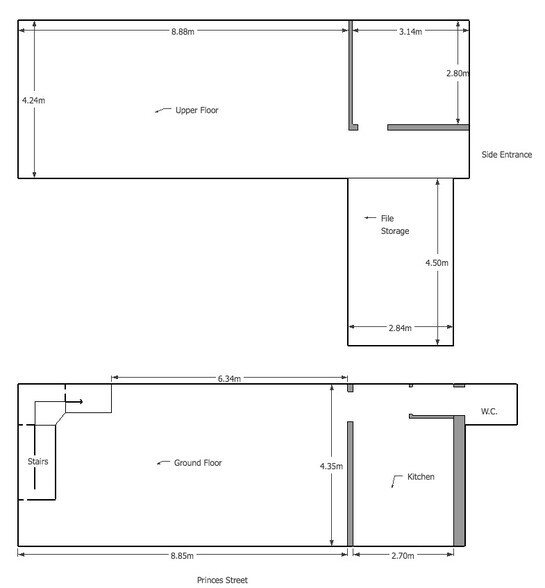
The property is believed to be 1,130sqft and comprises of a large open area + kitchen situated at ground level to the front, with a further area + meeting room / office at mezzanine level to the rear (not demised)
- Classe d’utilisation : Class 4
- Disposition du plan d’étage ouverte en général
- Peut être associé à un ou plusieurs espaces supplémentaires pour obtenir jusqu’à 1 130 pi² d’espace adjacent.
- Éclairage accentué
- Mezzanine level (not demised)
- Off street parking
- Partiellement construit comme Bureau standard
- Convient pour 2 à 5 personnes
- Hauts plafonds
- Planchers de bois franc
- Bright, versatile space
The property is believed to be 1,130sqft and comprises of a large open area + kitchen situated at ground level to the front, with a further area + meeting room / office at mezzanine level to the rear (not demised)
- Classe d’utilisation : Class 4
- Disposition du plan d’étage ouverte en général
- Peut être associé à un ou plusieurs espaces supplémentaires pour obtenir jusqu’à 1 130 pi² d’espace adjacent.
- Éclairage accentué
- Niveau de mezzanine (non démoli)
- Stationnement hors rue
- Partiellement construit comme Bureau standard
- Convient pour 2 à 5 personnes
- Hauts plafonds
- Planchers de bois franc
- Espace lumineux et polyvalent
| Espace | Taille | Terme | Taux de location | Utilisation de l’espace | Aménagement | Disponible |
| RDC | 565 pi² | Négociable | 24,50 $ CAD/pi²/an 2,04 $ CAD/pi²/mois 13 841 $ CAD/an 1 153 $ CAD/mois | Bureau | construction partielle | Maintenant |
| 1er étage | 565 pi² | Négociable | 24,50 $ CAD/pi²/an 2,04 $ CAD/pi²/mois 13 841 $ CAD/an 1 153 $ CAD/mois | Bureau | construction partielle | Maintenant |
RDC
| Taille |
| 565 pi² |
| Terme |
| Négociable |
| Taux de location |
| 24,50 $ CAD/pi²/an 2,04 $ CAD/pi²/mois 13 841 $ CAD/an 1 153 $ CAD/mois |
| Utilisation de l’espace |
| Bureau |
| Aménagement |
| construction partielle |
| Disponible |
| Maintenant |
1er étage
| Taille |
| 565 pi² |
| Terme |
| Négociable |
| Taux de location |
| 24,50 $ CAD/pi²/an 2,04 $ CAD/pi²/mois 13 841 $ CAD/an 1 153 $ CAD/mois |
| Utilisation de l’espace |
| Bureau |
| Aménagement |
| construction partielle |
| Disponible |
| Maintenant |
RDC
| Taille | 565 pi² |
| Terme | Négociable |
| Taux de location | 24,50 $ CAD/pi²/an |
| Utilisation de l’espace | Bureau |
| Aménagement | construction partielle |
| Disponible | Maintenant |
The property is believed to be 1,130sqft and comprises of a large open area + kitchen situated at ground level to the front, with a further area + meeting room / office at mezzanine level to the rear (not demised)
- Classe d’utilisation : Class 4
- Partiellement construit comme Bureau standard
- Disposition du plan d’étage ouverte en général
- Convient pour 2 à 5 personnes
- Peut être associé à un ou plusieurs espaces supplémentaires pour obtenir jusqu’à 1 130 pi² d’espace adjacent.
- Hauts plafonds
- Éclairage accentué
- Planchers de bois franc
- Mezzanine level (not demised)
- Bright, versatile space
- Off street parking
1er étage
| Taille | 565 pi² |
| Terme | Négociable |
| Taux de location | 24,50 $ CAD/pi²/an |
| Utilisation de l’espace | Bureau |
| Aménagement | construction partielle |
| Disponible | Maintenant |
The property is believed to be 1,130sqft and comprises of a large open area + kitchen situated at ground level to the front, with a further area + meeting room / office at mezzanine level to the rear (not demised)
- Classe d’utilisation : Class 4
- Partiellement construit comme Bureau standard
- Disposition du plan d’étage ouverte en général
- Convient pour 2 à 5 personnes
- Peut être associé à un ou plusieurs espaces supplémentaires pour obtenir jusqu’à 1 130 pi² d’espace adjacent.
- Hauts plafonds
- Éclairage accentué
- Planchers de bois franc
- Niveau de mezzanine (non démoli)
- Espace lumineux et polyvalent
- Stationnement hors rue
Aperçu de la propriété
Comprenant le rez-de-chaussée d'un immeuble de deux étages, les locaux bénéficient également d'un stationnement privé hors voirie
Faits sur la propriété
Sélectionner des locataires
- Étage
- Nom du locataire
- Multiple
- Gordon Coventry
Présenté par
80 Princes St
Hmm, il semble y avoir eu une erreur lors de l’envoi de votre message. Veuillez réessayer.
Merci! Votre message a été envoyé.






