Se Connecter/S’inscrire
Votre courriel a été envoyé.
800 E Clearwater Pl - Nerison Development Land Lot • Terrain commercial • 74,87 Acres • 9 350 370 $ CAD • Sioux Falls, SD 57108



Certaines informations ont été traduites automatiquement.
Résumé de l'annonce
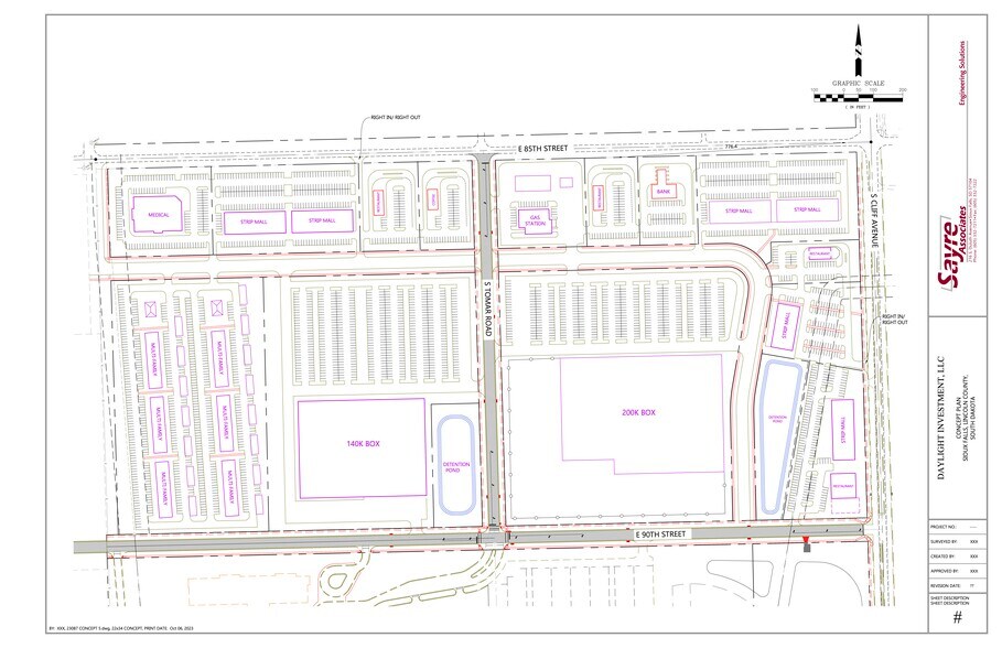
The site is positioned between Harrisburg Freshman Academy and 85th Street, with a half-mile of frontage on 85th Street and a quarter-mile of Cliff Avenue frontage.
Size: 74.87 acres
Price: $6,750,000
Development: Site is classified as ‘Tier 1’ in the Shape Sioux Falls 2050 Plan. South Tomar Road is already improved through the Property and has been paid for by the Seller.
Traffic:
85th Street: 4,600 vpd
Cliff Avenue: 13,500 vpd
Area Tenants: Walmart, ALDI, McDonald’s, Starbucks, Dollar Tree, Verizon, Burger King, Scooter’s Coffee, AT&T, Little Caesars, Orange Theory, Pizza Hut, Safe Splash Swim School, Jersey Mike’s Subs, T-Mobile, Nekter Juice Bar, Qdoba
Size: 74.87 acres
Price: $6,750,000
Development: Site is classified as ‘Tier 1’ in the Shape Sioux Falls 2050 Plan. South Tomar Road is already improved through the Property and has been paid for by the Seller.
Traffic:
85th Street: 4,600 vpd
Cliff Avenue: 13,500 vpd
Area Tenants: Walmart, ALDI, McDonald’s, Starbucks, Dollar Tree, Verizon, Burger King, Scooter’s Coffee, AT&T, Little Caesars, Orange Theory, Pizza Hut, Safe Splash Swim School, Jersey Mike’s Subs, T-Mobile, Nekter Juice Bar, Qdoba
Faits sur la propriété
| Prix | 9 350 370 $ CAD | Type de propriété | Terrain |
| Type de vente | Investissement | Sous-type de propriété | Terrain commercial |
| Nombre de lots | 1 | Taille totale du lot | 74,87 AC |
| Prix | 9 350 370 $ CAD |
| Type de vente | Investissement |
| Nombre de lots | 1 |
| Type de propriété | Terrain |
| Sous-type de propriété | Terrain commercial |
| Taille totale du lot | 74,87 AC |
1 Lot disponible
Lot
| Prix | 9 350 370 $ CAD | Taille du lot | 74,87 AC |
| Prix par AC | 124 888,07 $ CAD |
| Prix | 9 350 370 $ CAD |
| Prix par AC | 124 888,07 $ CAD |
| Taille du lot | 74,87 AC |
High School anchored development site located on the SW corner of 85th Street and Cliff Avenue intersection.
1 1
Plutôt praticable à pied
30/100
Très facile d’accès en voiture
80/100
Assez praticable en vélo
20/100
1 de 4
Vidéos
Visite extérieure 3D Matterport
Visite 3D Matterport
Photos
Vue depuis la rue
Rue
Carte
1 de 1
Présenté par
800 E Clearwater Pl - Nerison Development Land
Vous êtes déjà membre? Connectez-vous
Hmm, il semble y avoir eu une erreur lors de l’envoi de votre message. Veuillez réessayer.
Merci! Votre message a été envoyé.
