Votre courriel a été envoyé.
800 N 1st St 3 040 pi² d'espace disponible • Bureau • San Jose, CA 95112



Certaines informations ont été traduites automatiquement.
Faits saillants
- Coin de la 1re rue N et de la rue Mission.
- Situé en face de l'AVV N 1st Street.
- 4 toilettes (2 à chaque étage).
Tous les espaces disponibles(1)
Afficher les taux de location en
- Espace
- Taille
- Terme
- Taux de location
- Utilisation de l’espace
- Aménagement
- Disponible
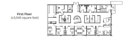
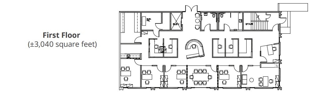
Opportunity for an office space in a prime location. It includes a reception area, two break rooms, a production room and lobby.
- Le taux de location ne comprend pas les services publics, les services de bâtiment ou les dépenses immobilières.
- 2 bureaux privés
- Lumière naturelle
- Entièrement construit comme Bureau standard
- 6 salles de conférence
- Le nouveau locataire a la possibilité de louer les deux étages.
| Espace | Taille | Terme | Taux de location | Utilisation de l’espace | Aménagement | Disponible |
| 1er étage | 3 040 pi² | Négociable | 39,46 $ CAD/pi²/an 3,29 $ CAD/pi²/mois 119 946 $ CAD/an 9 996 $ CAD/mois | Bureau | construction complète | Maintenant |
1er étage
| Taille |
| 3 040 pi² |
| Terme |
| Négociable |
| Taux de location |
| 39,46 $ CAD/pi²/an 3,29 $ CAD/pi²/mois 119 946 $ CAD/an 9 996 $ CAD/mois |
| Utilisation de l’espace |
| Bureau |
| Aménagement |
| construction complète |
| Disponible |
| Maintenant |
1er étage
| Taille | 3 040 pi² |
| Terme | Négociable |
| Taux de location | 39,46 $ CAD/pi²/an |
| Utilisation de l’espace | Bureau |
| Aménagement | construction complète |
| Disponible | Maintenant |
Opportunity for an office space in a prime location. It includes a reception area, two break rooms, a production room and lobby.
- Le taux de location ne comprend pas les services publics, les services de bâtiment ou les dépenses immobilières.
- Entièrement construit comme Bureau standard
- 2 bureaux privés
- 6 salles de conférence
- Lumière naturelle
- Le nouveau locataire a la possibilité de louer les deux étages.
Aperçu de la propriété
Rénovation intérieure en 2006, y compris plomberie, électricité, CVC, câble de fibre optique, nouvelles armoires, nouveaux plafonds et éclairage. Les caractéristiques comprennent une station réceptionniste intégrée au premier étage ainsi que des postes de travail intégrés aux deux étages qui sont câblés pour l'alimentation, la voix et les données. L'édifice est situé en face de la rue du train léger et est à proximité des autoroutes 880, 101, 87 et 280, de l'aéroport international de San Jose et du centre-ville de San José.
- Train de banlieue
- Affichage
Faits sur la propriété
Présenté par
800 N 1st St
Hmm, il semble y avoir eu une erreur lors de l’envoi de votre message. Veuillez réessayer.
Merci! Votre message a été envoyé.


