Votre courriel a été envoyé.
8107 Patel dr 45 847 pi² Vacant Industriel Immeuble Wolfforth, TX 79382 7 160 568 $ CAD (156,18 $ CAD/pi²) 9,82% Taux de capitalisation



Certaines informations ont été traduites automatiquement.
Résumé de l'annonce
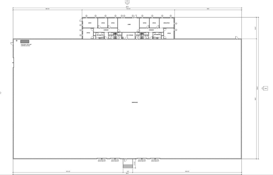
The property features a clean, contemporary exterior and a well-balanced layout with approximately 3,140 SF of office space and 42,707 SF of warehouse space. The office area is ideal for administrative operations, while the expansive warehouse is designed to accommodate a wide range of industrial and distribution needs.
The warehouse will be equipped with four dock-high doors and two grade-level doors, providing efficient loading and logistics capabilities. Additionally, the building will include ESFR sprinkler systems and warehouse heaters, ensuring safety and operational comfort year-round.
With anticipated completion in January 2027, users still have ample time to customize certain aspects of the build to better suit their operational requirements—making this a rare opportunity to secure a nearly turnkey facility tailored to your needs.
Don’t miss the chance to establish your business in one of Lubbock’s newest and most strategically located business parks.
Faits sur la propriété
Disponibilité des espaces
- Espace
- Taille
- Utilisation de l’espace
- Aménagement
- Disponible
This newly constructed industrial facility in Wolfforth, Texas, offers a rare opportunity to secure a modern, highly functional property within the rapidly expanding Cityside Business Park. Located just off Highway 62/82, the property provides excellent connectivity to the Lubbock metropolitan area and surrounding markets. The building features a contemporary design with a balanced mix of office and warehouse space, making it suitable for a wide range of industrial and distribution operations. The warehouse is designed for efficiency, equipped with four dock-high doors and two grade-level doors to streamline logistics. ESFR sprinkler systems and warehouse heaters ensure safety and operational reliability year-round. With anticipated completion in early 2027, buyers have the flexibility to customize certain aspects of the build to meet specific operational needs. This property represents a strong long-term investment in one of West Texas’ most dynamic industrial corridors, offering both immediate functionality and future growth potential.
| Espace | Taille | Utilisation de l’espace | Aménagement | Disponible |
| 1er étage | 45 847 pi² | Industriel | - | Maintenant |
1er étage
| Taille |
| 45 847 pi² |
| Utilisation de l’espace |
| Industriel |
| Aménagement |
| - |
| Disponible |
| Maintenant |
1er étage
| Taille | 45 847 pi² |
| Utilisation de l’espace | Industriel |
| Aménagement | - |
| Disponible | Maintenant |
This newly constructed industrial facility in Wolfforth, Texas, offers a rare opportunity to secure a modern, highly functional property within the rapidly expanding Cityside Business Park. Located just off Highway 62/82, the property provides excellent connectivity to the Lubbock metropolitan area and surrounding markets. The building features a contemporary design with a balanced mix of office and warehouse space, making it suitable for a wide range of industrial and distribution operations. The warehouse is designed for efficiency, equipped with four dock-high doors and two grade-level doors to streamline logistics. ESFR sprinkler systems and warehouse heaters ensure safety and operational reliability year-round. With anticipated completion in early 2027, buyers have the flexibility to customize certain aspects of the build to meet specific operational needs. This property represents a strong long-term investment in one of West Texas’ most dynamic industrial corridors, offering both immediate functionality and future growth potential.
Impôts fonciers
| Numéro de lot | R347136 | Évaluation des bâtiments | 0 $ CAD |
| Évaluation du terrain | 635 322 $ CAD | Évaluation totale | 635 322 $ CAD |
Impôts fonciers
Présenté par
8107 Patel dr
Hmm, il semble y avoir eu une erreur lors de l’envoi de votre message. Veuillez réessayer.
Merci! Votre message a été envoyé.
