Votre courriel a été envoyé.
8121 W Grandridge 8121 W Grandridge Blvd 2 080 pi² d'espace disponible • Bureau/Médical • Kennewick, WA 99336



Certaines informations ont été traduites automatiquement.
Faits saillants
- Emplacement du CBD
Tous les espaces disponibles(1)
Afficher les taux de location en
- Espace
- Taille
- Terme
- Taux de location
- Utilisation de l’espace
- Aménagement
- Disponible
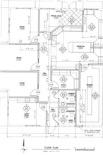
8121 W Grandridge is a Class A office building and offers a premier location in the Central Business District, surrounded by retail, hotels, services, and restaurants. Nestled in a quiet setting near the well-traveled Gage roundabout and Columbia Center Mall! Suite C offers a functional and professional layout designed to support both client interaction and daily operations. The space includes four private offices, along with a convenient waiting area for guests. An open reception/work area provides flexibility for administrative staff and adjacent there is a dedicated data/storage room. There is a large kitchenette/break room and 2 private bathrooms.
- Le taux de location ne comprend pas les services publics, les services de bâtiment ou les dépenses immobilières.
- Disposition du plan d’étage ouverte en général
- 1 poste de travail
- Aire de réception
- Salle d’impression/Photocopie
- Lumière naturelle
- Partiellement construit comme Bureau de services professionnels
- 4 bureaux privés
- Espace en excellent état
- Salle de bains privée
- Complètement tapissé
- Accessible aux fauteuils roulants
| Espace | Taille | Terme | Taux de location | Utilisation de l’espace | Aménagement | Disponible |
| 1er étage, ste C | 2 080 pi² | 3-5 ans | 28,72 $ CAD/pi²/an 2,39 $ CAD/pi²/mois 59 740 $ CAD/an 4 978 $ CAD/mois | Bureau/Médical | construction partielle | 2026-05-01 |
1er étage, ste C
| Taille |
| 2 080 pi² |
| Terme |
| 3-5 ans |
| Taux de location |
| 28,72 $ CAD/pi²/an 2,39 $ CAD/pi²/mois 59 740 $ CAD/an 4 978 $ CAD/mois |
| Utilisation de l’espace |
| Bureau/Médical |
| Aménagement |
| construction partielle |
| Disponible |
| 2026-05-01 |
1er étage, ste C
| Taille | 2 080 pi² |
| Terme | 3-5 ans |
| Taux de location | 28,72 $ CAD/pi²/an |
| Utilisation de l’espace | Bureau/Médical |
| Aménagement | construction partielle |
| Disponible | 2026-05-01 |
8121 W Grandridge is a Class A office building and offers a premier location in the Central Business District, surrounded by retail, hotels, services, and restaurants. Nestled in a quiet setting near the well-traveled Gage roundabout and Columbia Center Mall! Suite C offers a functional and professional layout designed to support both client interaction and daily operations. The space includes four private offices, along with a convenient waiting area for guests. An open reception/work area provides flexibility for administrative staff and adjacent there is a dedicated data/storage room. There is a large kitchenette/break room and 2 private bathrooms.
- Le taux de location ne comprend pas les services publics, les services de bâtiment ou les dépenses immobilières.
- Partiellement construit comme Bureau de services professionnels
- Disposition du plan d’étage ouverte en général
- 4 bureaux privés
- 1 poste de travail
- Espace en excellent état
- Aire de réception
- Salle de bains privée
- Salle d’impression/Photocopie
- Complètement tapissé
- Lumière naturelle
- Accessible aux fauteuils roulants
Aperçu de la propriété
Excellent emplacement et visibilité du boulevard Grandridge dans le centre de Tri-Cities CBD. Le corridor du boulevard Grandridge abrite de nombreux bureaux financiers et professionnels prédominants à Tri-Cities. Le 8121 dispose d'un stationnement abondant, d'un excellent mélange de locataires et de finitions modernes.
- Accès 24 heures
- Affichage sur monument
- Climatisation
- Balcon
Faits sur la propriété
Sélectionner des locataires
- Étage
- Nom du locataire
- Secteur
- 1ᵉʳ
- Community First
- Finance et assurances
- 2ᵉ
- Far West Agribusiness Association
- Agriculture, foresterie, pêche et chasse
- 1ᵉʳ
- Kelley's Tele-Communications, Inc
- Information
- 1ᵉʳ
- Movement Mortgage
- Finance et assurances
Présenté par
8121 W Grandridge | 8121 W Grandridge Blvd
Hmm, il semble y avoir eu une erreur lors de l’envoi de votre message. Veuillez réessayer.
Merci! Votre message a été envoyé.



