Votre courriel a été envoyé.
Certaines informations ont été traduites automatiquement.
Faits saillants
- Près des transports en commun.
Tous les espaces disponibles(24)
Afficher les taux de location en
- Espace
- Taille
- Terme
- Taux de location
- Utilisation de l’espace
- Aménagement
- Disponible
Property Details • Flexible Lease Terms 12 - 120+ months • Walk to Tysons Corner Metro (½ mile ) • Walk to Tysons Mall • Glass on all 4 sides of building • Free parking
- Le taux comprend les services publics, les services de bâtiment et les dépenses immobilières.
- Disposition du plan d’étage ouverte en général
- Air central et chauffage
- Entièrement construit comme Bureau de services professionnels
- Espace en excellent état
- Facilement accessible.
Property Details • Flexible Lease Terms 12 - 120+ months • Walk to Tysons Corner Metro (½ mile ) • Walk to Tysons Mall • Glass on all 4 sides of building • Free parking
- Le taux comprend les services publics, les services de bâtiment et les dépenses immobilières.
- 4 bureaux privés
- Espace en excellent état
- Facilement accessible.
- Entièrement construit comme Bureau de services professionnels
- 1 salle de conférence
- Air central et chauffage
Property Details • Flexible Lease Terms 12 - 120+ months • Walk to Tysons Corner Metro (½ mile ) • Walk to Tysons Mall • Glass on all 4 sides of building • Free parking
- Le taux comprend les services publics, les services de bâtiment et les dépenses immobilières.
- Disposition intensive du bureau
- Climatisation centrale
- Entièrement construit comme Bureau de services professionnels
- Espace en excellent état
- Facilement accessible.
Property Details • Flexible Lease Terms 12 - 120+ months • Walk to Tysons Corner Metro (½ mile ) • Walk to Tysons Mall • Glass on all 4 sides of building • Free parking
- Le taux comprend les services publics, les services de bâtiment et les dépenses immobilières.
- Disposition intensive du bureau
- Climatisation centrale
- Entièrement construit comme Bureau de services professionnels
- Espace en excellent état
- Facilement accessible.
Property Details • Flexible Lease Terms 12 - 120+ months • Walk to Tysons Corner Metro (½ mile ) • Walk to Tysons Mall • Glass on all 4 sides of building • Free parking
- Le taux comprend les services publics, les services de bâtiment et les dépenses immobilières.
- Disposition intensive du bureau
- Facilement accessible.
- Entièrement construit comme Bureau de services professionnels
- Espace en excellent état
Property Details • Flexible Lease Terms 12 - 120+ months • Walk to Tysons Corner Metro (½ mile ) • Walk to Tysons Mall • Glass on all 4 sides of building • Free parking
- Le taux comprend les services publics, les services de bâtiment et les dépenses immobilières.
- Disposition intensive du bureau
- Climatisation centrale
- Entièrement construit comme Bureau de services professionnels
- Espace en excellent état
- Facilement accessible.
Property Details • Flexible Lease Terms 12 - 120+ months • Walk to Tysons Corner Metro (½ mile ) • Walk to Tysons Mall • Glass on all 4 sides of building • Free parking
- Le taux comprend les services publics, les services de bâtiment et les dépenses immobilières.
- Disposition du plan d’étage ouverte en général
- Espace en excellent état
- Facilement accessible.
- Entièrement construit comme Bureau de services professionnels
- 3 bureaux privés
- Climatisation centrale
Property Details • Flexible Lease Terms 12 - 120+ months • Walk to Tysons Corner Metro (½ mile ) • Walk to Tysons Mall • Glass on all 4 sides of building • Free parking
- Le taux comprend les services publics, les services de bâtiment et les dépenses immobilières.
- Disposition intensive du bureau
- Entièrement construit comme Bureau standard
Space available for sublease through September 2027. Reception, 2 windowed offices, work room. Property Details • Flexible Lease Terms 12 - 120+ months • Walk to Tysons Corner Metro (½ mile ) • Walk to Tysons Mall • Glass on all 4 sides of building • Free parking
- Le taux comprend les services publics, les services de bâtiment et les dépenses immobilières.
- Disposition du plan d’étage ouverte
- Entièrement construit comme Bureau standard
- 1 bureau privé
Property Details • Flexible Lease Terms 12 - 120+ months • Walk to Tysons Corner Metro (½ mile ) • Walk to Tysons Mall • Glass on all 4 sides of building • Free parking
- Le taux comprend les services publics, les services de bâtiment et les dépenses immobilières.
- 13 bureaux privés
- Espace en excellent état
- Climatisation centrale
- Entièrement construit comme Bureau de services professionnels
- 1 salle de conférence
- Peut être associé à un ou plusieurs espaces supplémentaires pour obtenir jusqu’à 15 377 pi² d’espace adjacent.
- Facilement accessible.
Property Details • Flexible Lease Terms 12 - 120+ months • Walk to Tysons Corner Metro (½ mile ) • Walk to Tysons Mall • Glass on all 4 sides of building • Free parking
- Le taux comprend les services publics, les services de bâtiment et les dépenses immobilières.
- Disposition du plan d’étage ouverte en général
- 1 salle de conférence
- Peut être associé à un ou plusieurs espaces supplémentaires pour obtenir jusqu’à 15 377 pi² d’espace adjacent.
- Facilement accessible.
- Entièrement construit comme Bureau de services professionnels
- 7 bureaux privés
- Espace en excellent état
- Climatisation centrale
Property Details • Flexible Lease Terms 12 - 120+ months • Walk to Tysons Corner Metro (½ mile ) • Walk to Tysons Mall • Glass on all 4 sides of building • Free parking
- Le taux comprend les services publics, les services de bâtiment et les dépenses immobilières.
- 7 bureaux privés
- 21 postes de travail
- Peut être associé à un ou plusieurs espaces supplémentaires pour obtenir jusqu’à 15 377 pi² d’espace adjacent.
- Facilement accessible.
- Entièrement construit comme Bureau de services professionnels
- 1 salle de conférence
- Espace en excellent état
- Climatisation centrale
Property Details • Flexible Lease Terms 12 - 120+ months • Walk to Tysons Corner Metro (½ mile ) • Walk to Tysons Mall • Glass on all 4 sides of building • Free parking
- Le taux comprend les services publics, les services de bâtiment et les dépenses immobilières.
- 14 bureaux privés
- Peut être associé à un ou plusieurs espaces supplémentaires pour obtenir jusqu’à 15 377 pi² d’espace adjacent.
- Facilement accessible.
- Entièrement construit comme Bureau de services professionnels
- Espace en excellent état
- Climatisation centrale
Property Details • Flexible Lease Terms 12 - 120+ months • Walk to Tysons Corner Metro (½ mile ) • Walk to Tysons Mall • Glass on all 4 sides of building • Free parking
- Le taux comprend les services publics, les services de bâtiment et les dépenses immobilières.
- Disposition intensive du bureau
- Peut être associé à un ou plusieurs espaces supplémentaires pour obtenir jusqu’à 7 838 pi² d’espace adjacent.
- Facilement accessible.
- Entièrement construit comme Bureau de services professionnels
- Espace en excellent état
- Climatisation centrale
Property Details • Flexible Lease Terms 12 - 120+ months • Walk to Tysons Corner Metro (½ mile ) • Walk to Tysons Mall • Glass on all 4 sides of building • Free parking
- Le taux comprend les services publics, les services de bâtiment et les dépenses immobilières.
- 10 bureaux privés
- Facilement accessible.
- Entièrement construit comme Bureau de services professionnels
- Espace en excellent état
Property Details • Flexible Lease Terms 12 - 120+ months • Walk to Tysons Corner Metro (½ mile ) • Walk to Tysons Mall • Glass on all 4 sides of building • Free parking
- Le taux comprend les services publics, les services de bâtiment et les dépenses immobilières.
- 9 bureaux privés
- Peut être associé à un ou plusieurs espaces supplémentaires pour obtenir jusqu’à 7 838 pi² d’espace adjacent.
- Facilement accessible.
- Entièrement construit comme Bureau de services professionnels
- Espace en excellent état
- Climatisation centrale
Property Details • Flexible Lease Terms 12 - 120+ months • Walk to Tysons Corner Metro (½ mile ) • Walk to Tysons Mall • Glass on all 4 sides of building • Free parking
- Le taux comprend les services publics, les services de bâtiment et les dépenses immobilières.
- 12 bureaux privés
- Espace en excellent état
- Facilement accessible.
- Entièrement construit comme Bureau de services professionnels
- 42 postes de travail
- Climatisation centrale
Property Details • Flexible Lease Terms 12 - 120+ months • Walk to Tysons Corner Metro (½ mile ) • Walk to Tysons Mall • Glass on all 4 sides of building • Free parking
- Le taux comprend les services publics, les services de bâtiment et les dépenses immobilières.
- Disposition du plan d’étage ouverte
- Climatisation centrale
- Entièrement construit comme Bureau de services professionnels
- Espace en excellent état
- Facilement accessible.
Property Details • Flexible Lease Terms 12 - 120+ months • Walk to Tysons Corner Metro (½ mile ) • Walk to Tysons Mall • Glass on all 4 sides of building • Free parking
- Le taux comprend les services publics, les services de bâtiment et les dépenses immobilières.
- Disposition du plan d’étage ouverte en général
- Facilement accessible.
- Entièrement construit comme Bureau de services professionnels
- Espace en excellent état
Property Details • Flexible Lease Terms 12 - 120+ months • Walk to Tysons Corner Metro (½ mile ) • Walk to Tysons Mall • Glass on all 4 sides of building • Free parking
- Le taux comprend les services publics, les services de bâtiment et les dépenses immobilières.
- Disposition du plan d’étage ouverte en général
- Facilement accessible.
- Partiellement construit comme Bureau de services professionnels
- 2 bureaux privés
Property Details • Flexible Lease Terms 12 - 120+ months • Walk to Tysons Corner Metro (½ mile ) • Walk to Tysons Mall • Glass on all 4 sides of building • Free parking
- Le taux comprend les services publics, les services de bâtiment et les dépenses immobilières.
- Disposition du plan d’étage ouverte en général
- Entièrement construit comme Bureau standard
Property Details • Flexible Lease Terms 12 - 120+ months • Walk to Tysons Corner Metro (½ mile ) • Walk to Tysons Mall • Glass on all 4 sides of building • Free parking
- Le taux comprend les services publics, les services de bâtiment et les dépenses immobilières.
- Disposition intensive du bureau
- Climatisation centrale
- Entièrement construit comme Bureau de services professionnels
- Espace en excellent état
- Facilement accessible.
Take a virtual tour! https://my.matterport.com/show/?m=x997Y2vFFvs Property Details • Flexible Lease Terms 12 - 120+ months • Walk to Tysons Corner Metro (½ mile ) • Walk to Tysons Mall • Glass on all 4 sides of building • Free parking
- Le taux comprend les services publics, les services de bâtiment et les dépenses immobilières.
- Disposition du plan d’étage ouverte en général
- 1 salle de conférence
- Espace en excellent état
- Climatisation centrale
- Entièrement construit comme Bureau de services professionnels
- 10 bureaux privés
- 4 postes de travail
- Peut être associé à un ou plusieurs espaces supplémentaires pour obtenir jusqu’à 7 797 pi² d’espace adjacent.
- Facilement accessible.
Property Details • Flexible Lease Terms 12 - 120+ months • Walk to Tysons Corner Metro (½ mile ) • Walk to Tysons Mall • Glass on all 4 sides of building • Free parking
- Le taux comprend les services publics, les services de bâtiment et les dépenses immobilières.
- Disposition du plan d’étage ouverte en général
- Peut être associé à un ou plusieurs espaces supplémentaires pour obtenir jusqu’à 7 797 pi² d’espace adjacent.
- Facilement accessible.
- Entièrement construit comme Bureau de services professionnels
- Espace en excellent état
- Climatisation centrale
| Espace | Taille | Terme | Taux de location | Utilisation de l’espace | Aménagement | Disponible |
| 2e étage, ste 200 | 1 189 pi² | 1-10 ans | 32,88 $ CAD/pi²/an 2,74 $ CAD/pi²/mois 39 094 $ CAD/an 3 258 $ CAD/mois | Bureau | construction complète | Maintenant |
| 2e étage, ste 220 | 2 195 pi² | 1-10 ans | 32,88 $ CAD/pi²/an 2,74 $ CAD/pi²/mois 72 172 $ CAD/an 6 014 $ CAD/mois | Bureau | construction complète | Maintenant |
| 2e étage, ste 230 | 2 782 pi² | 1-10 ans | 32,88 $ CAD/pi²/an 2,74 $ CAD/pi²/mois 91 472 $ CAD/an 7 623 $ CAD/mois | Bureau | construction complète | Maintenant |
| 2e étage, ste 240 | 2 243 pi² | 1-10 ans | 32,88 $ CAD/pi²/an 2,74 $ CAD/pi²/mois 73 750 $ CAD/an 6 146 $ CAD/mois | Bureau | construction complète | Maintenant |
| 2e étage, ste 250 | 3 425 pi² | 1-10 ans | 32,88 $ CAD/pi²/an 2,74 $ CAD/pi²/mois 112 614 $ CAD/an 9 385 $ CAD/mois | Bureau | construction complète | Maintenant |
| 2e étage, ste 260 | 5 251 pi² | 1-10 ans | 32,88 $ CAD/pi²/an 2,74 $ CAD/pi²/mois 172 653 $ CAD/an 14 388 $ CAD/mois | Bureau | construction complète | Maintenant |
| 3e étage, ste 300 | 2 238 pi² | 1-10 ans | 32,88 $ CAD/pi²/an 2,74 $ CAD/pi²/mois 73 585 $ CAD/an 6 132 $ CAD/mois | Bureau | construction complète | Maintenant |
| 3e étage, ste 308 | 765 pi² | 1-10 ans | 32,88 $ CAD/pi²/an 2,74 $ CAD/pi²/mois 25 153 $ CAD/an 2 096 $ CAD/mois | Bureau | construction complète | Maintenant |
| 3e étage, ste 308 | 765 pi² | 1-10 ans | 27,40 $ CAD/pi²/an 2,28 $ CAD/pi²/mois 20 961 $ CAD/an 1 747 $ CAD/mois | Bureau | construction complète | Maintenant |
| 4e étage, ste 400 | 5 003 pi² | 1-10 ans | 32,88 $ CAD/pi²/an 2,74 $ CAD/pi²/mois 164 499 $ CAD/an 13 708 $ CAD/mois | Bureau | construction complète | Maintenant |
| 4e étage, ste 420 | 2 275 pi² | 1-10 ans | 32,88 $ CAD/pi²/an 2,74 $ CAD/pi²/mois 74 802 $ CAD/an 6 234 $ CAD/mois | Bureau | construction complète | Maintenant |
| 4e étage, ste 450 | 4 842 pi² | 1-10 ans | 32,88 $ CAD/pi²/an 2,74 $ CAD/pi²/mois 159 205 $ CAD/an 13 267 $ CAD/mois | Bureau | construction complète | Maintenant |
| 4e étage, ste 460 | 3 257 pi² | 1-10 ans | 32,88 $ CAD/pi²/an 2,74 $ CAD/pi²/mois 107 090 $ CAD/an 8 924 $ CAD/mois | Bureau | construction complète | Maintenant |
| 5e étage, ste 510 | 3 552 pi² | 1-10 ans | 32,88 $ CAD/pi²/an 2,74 $ CAD/pi²/mois 116 790 $ CAD/an 9 732 $ CAD/mois | Bureau | construction complète | Maintenant |
| 5e étage, ste 520 | 3 615 pi² | 1-10 ans | 32,88 $ CAD/pi²/an 2,74 $ CAD/pi²/mois 118 861 $ CAD/an 9 905 $ CAD/mois | Bureau | construction complète | Maintenant |
| 5e étage, ste 570 | 4 286 pi² | 1-10 ans | 32,88 $ CAD/pi²/an 2,74 $ CAD/pi²/mois 140 924 $ CAD/an 11 744 $ CAD/mois | Bureau | construction complète | Maintenant |
| 6e étage, ste 650 | 5 034 à 10 765 pi² | 1-10 ans | 32,88 $ CAD/pi²/an 2,74 $ CAD/pi²/mois 353 953 $ CAD/an 29 496 $ CAD/mois | Bureau | construction complète | Maintenant |
| 7e étage, ste 700 | 2 909 pi² | 1-10 ans | 32,88 $ CAD/pi²/an 2,74 $ CAD/pi²/mois 95 648 $ CAD/an 7 971 $ CAD/mois | Bureau | construction complète | 30 jours |
| 7e étage, ste 720 | 2 665 pi² | 1-10 ans | 32,88 $ CAD/pi²/an 2,74 $ CAD/pi²/mois 87 625 $ CAD/an 7 302 $ CAD/mois | Bureau | construction complète | Maintenant |
| 7e étage, ste 750 | 3 623 pi² | 1-10 ans | 32,88 $ CAD/pi²/an 2,74 $ CAD/pi²/mois 119 124 $ CAD/an 9 927 $ CAD/mois | Bureau | construction partielle | Maintenant |
| 7e étage, ste 780 | 1 860 pi² | 1-10 ans | 32,88 $ CAD/pi²/an 2,74 $ CAD/pi²/mois 61 157 $ CAD/an 5 096 $ CAD/mois | Bureau | construction complète | Maintenant |
| 8e étage, ste 800 | 16 368 pi² | 1-10 ans | 32,88 $ CAD/pi²/an 2,74 $ CAD/pi²/mois 538 180 $ CAD/an 44 848 $ CAD/mois | Bureau | construction complète | Maintenant |
| 9e étage, ste 920 | 4 283 pi² | 1-10 ans | 32,88 $ CAD/pi²/an 2,74 $ CAD/pi²/mois 140 825 $ CAD/an 11 735 $ CAD/mois | Bureau | construction complète | Maintenant |
| 9e étage, ste 940 | 3 514 pi² | 1-10 ans | 32,88 $ CAD/pi²/an 2,74 $ CAD/pi²/mois 115 540 $ CAD/an 9 628 $ CAD/mois | Bureau | construction complète | Maintenant |
2e étage, ste 200
| Taille |
| 1 189 pi² |
| Terme |
| 1-10 ans |
| Taux de location |
| 32,88 $ CAD/pi²/an 2,74 $ CAD/pi²/mois 39 094 $ CAD/an 3 258 $ CAD/mois |
| Utilisation de l’espace |
| Bureau |
| Aménagement |
| construction complète |
| Disponible |
| Maintenant |
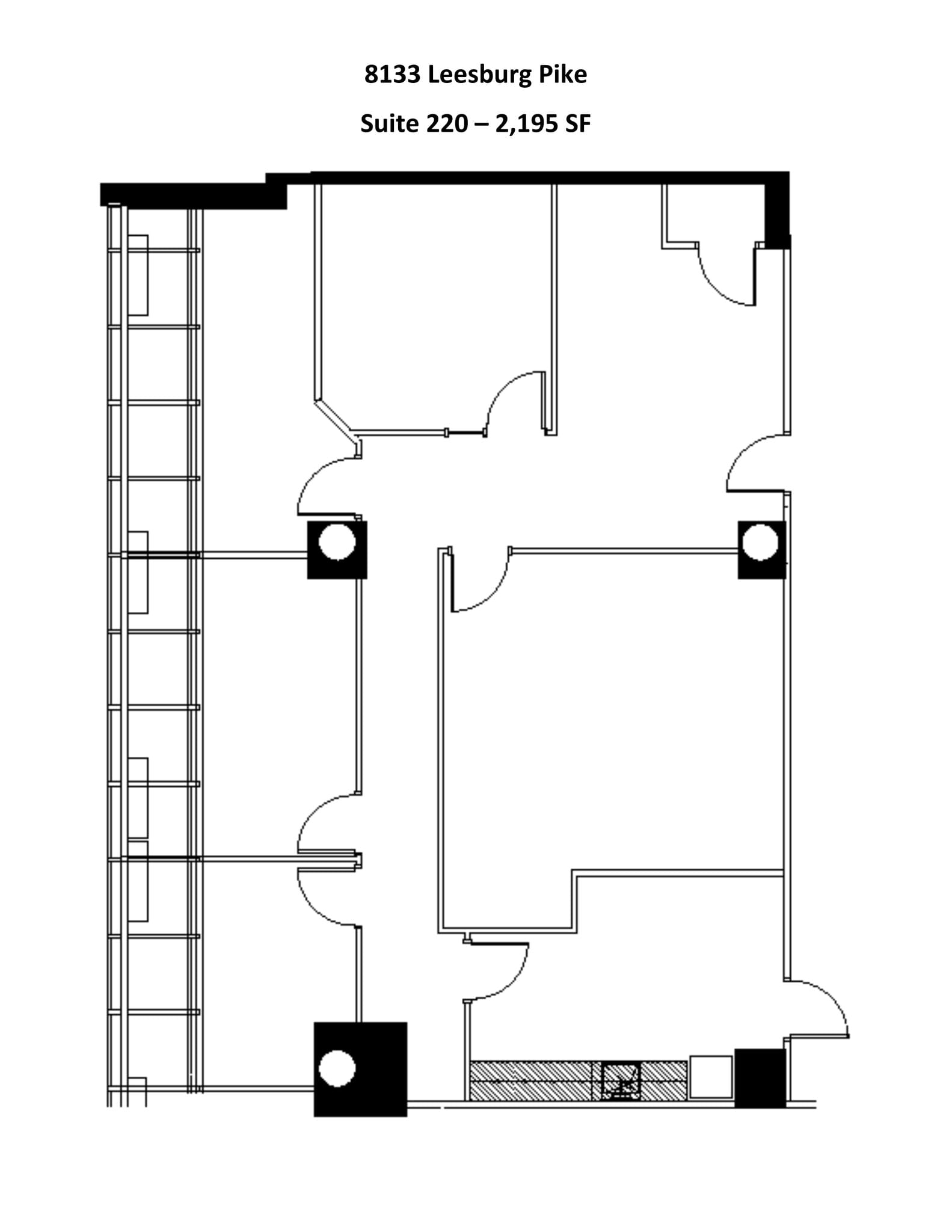
2e étage, ste 220
| Taille |
| 2 195 pi² |
| Terme |
| 1-10 ans |
| Taux de location |
| 32,88 $ CAD/pi²/an 2,74 $ CAD/pi²/mois 72 172 $ CAD/an 6 014 $ CAD/mois |
| Utilisation de l’espace |
| Bureau |
| Aménagement |
| construction complète |
| Disponible |
| Maintenant |
2e étage, ste 230
| Taille |
| 2 782 pi² |
| Terme |
| 1-10 ans |
| Taux de location |
| 32,88 $ CAD/pi²/an 2,74 $ CAD/pi²/mois 91 472 $ CAD/an 7 623 $ CAD/mois |
| Utilisation de l’espace |
| Bureau |
| Aménagement |
| construction complète |
| Disponible |
| Maintenant |
2e étage, ste 240
| Taille |
| 2 243 pi² |
| Terme |
| 1-10 ans |
| Taux de location |
| 32,88 $ CAD/pi²/an 2,74 $ CAD/pi²/mois 73 750 $ CAD/an 6 146 $ CAD/mois |
| Utilisation de l’espace |
| Bureau |
| Aménagement |
| construction complète |
| Disponible |
| Maintenant |
2e étage, ste 250
| Taille |
| 3 425 pi² |
| Terme |
| 1-10 ans |
| Taux de location |
| 32,88 $ CAD/pi²/an 2,74 $ CAD/pi²/mois 112 614 $ CAD/an 9 385 $ CAD/mois |
| Utilisation de l’espace |
| Bureau |
| Aménagement |
| construction complète |
| Disponible |
| Maintenant |
2e étage, ste 260
| Taille |
| 5 251 pi² |
| Terme |
| 1-10 ans |
| Taux de location |
| 32,88 $ CAD/pi²/an 2,74 $ CAD/pi²/mois 172 653 $ CAD/an 14 388 $ CAD/mois |
| Utilisation de l’espace |
| Bureau |
| Aménagement |
| construction complète |
| Disponible |
| Maintenant |
3e étage, ste 300
| Taille |
| 2 238 pi² |
| Terme |
| 1-10 ans |
| Taux de location |
| 32,88 $ CAD/pi²/an 2,74 $ CAD/pi²/mois 73 585 $ CAD/an 6 132 $ CAD/mois |
| Utilisation de l’espace |
| Bureau |
| Aménagement |
| construction complète |
| Disponible |
| Maintenant |
3e étage, ste 308
| Taille |
| 765 pi² |
| Terme |
| 1-10 ans |
| Taux de location |
| 32,88 $ CAD/pi²/an 2,74 $ CAD/pi²/mois 25 153 $ CAD/an 2 096 $ CAD/mois |
| Utilisation de l’espace |
| Bureau |
| Aménagement |
| construction complète |
| Disponible |
| Maintenant |
3e étage, ste 308
| Taille |
| 765 pi² |
| Terme |
| 1-10 ans |
| Taux de location |
| 27,40 $ CAD/pi²/an 2,28 $ CAD/pi²/mois 20 961 $ CAD/an 1 747 $ CAD/mois |
| Utilisation de l’espace |
| Bureau |
| Aménagement |
| construction complète |
| Disponible |
| Maintenant |
4e étage, ste 400
| Taille |
| 5 003 pi² |
| Terme |
| 1-10 ans |
| Taux de location |
| 32,88 $ CAD/pi²/an 2,74 $ CAD/pi²/mois 164 499 $ CAD/an 13 708 $ CAD/mois |
| Utilisation de l’espace |
| Bureau |
| Aménagement |
| construction complète |
| Disponible |
| Maintenant |
4e étage, ste 420
| Taille |
| 2 275 pi² |
| Terme |
| 1-10 ans |
| Taux de location |
| 32,88 $ CAD/pi²/an 2,74 $ CAD/pi²/mois 74 802 $ CAD/an 6 234 $ CAD/mois |
| Utilisation de l’espace |
| Bureau |
| Aménagement |
| construction complète |
| Disponible |
| Maintenant |
4e étage, ste 450
| Taille |
| 4 842 pi² |
| Terme |
| 1-10 ans |
| Taux de location |
| 32,88 $ CAD/pi²/an 2,74 $ CAD/pi²/mois 159 205 $ CAD/an 13 267 $ CAD/mois |
| Utilisation de l’espace |
| Bureau |
| Aménagement |
| construction complète |
| Disponible |
| Maintenant |
4e étage, ste 460
| Taille |
| 3 257 pi² |
| Terme |
| 1-10 ans |
| Taux de location |
| 32,88 $ CAD/pi²/an 2,74 $ CAD/pi²/mois 107 090 $ CAD/an 8 924 $ CAD/mois |
| Utilisation de l’espace |
| Bureau |
| Aménagement |
| construction complète |
| Disponible |
| Maintenant |
5e étage, ste 510
| Taille |
| 3 552 pi² |
| Terme |
| 1-10 ans |
| Taux de location |
| 32,88 $ CAD/pi²/an 2,74 $ CAD/pi²/mois 116 790 $ CAD/an 9 732 $ CAD/mois |
| Utilisation de l’espace |
| Bureau |
| Aménagement |
| construction complète |
| Disponible |
| Maintenant |
5e étage, ste 520
| Taille |
| 3 615 pi² |
| Terme |
| 1-10 ans |
| Taux de location |
| 32,88 $ CAD/pi²/an 2,74 $ CAD/pi²/mois 118 861 $ CAD/an 9 905 $ CAD/mois |
| Utilisation de l’espace |
| Bureau |
| Aménagement |
| construction complète |
| Disponible |
| Maintenant |
5e étage, ste 570
| Taille |
| 4 286 pi² |
| Terme |
| 1-10 ans |
| Taux de location |
| 32,88 $ CAD/pi²/an 2,74 $ CAD/pi²/mois 140 924 $ CAD/an 11 744 $ CAD/mois |
| Utilisation de l’espace |
| Bureau |
| Aménagement |
| construction complète |
| Disponible |
| Maintenant |
6e étage, ste 650
| Taille |
| 5 034 à 10 765 pi² |
| Terme |
| 1-10 ans |
| Taux de location |
| 32,88 $ CAD/pi²/an 2,74 $ CAD/pi²/mois 353 953 $ CAD/an 29 496 $ CAD/mois |
| Utilisation de l’espace |
| Bureau |
| Aménagement |
| construction complète |
| Disponible |
| Maintenant |
7e étage, ste 700
| Taille |
| 2 909 pi² |
| Terme |
| 1-10 ans |
| Taux de location |
| 32,88 $ CAD/pi²/an 2,74 $ CAD/pi²/mois 95 648 $ CAD/an 7 971 $ CAD/mois |
| Utilisation de l’espace |
| Bureau |
| Aménagement |
| construction complète |
| Disponible |
| 30 jours |
7e étage, ste 720
| Taille |
| 2 665 pi² |
| Terme |
| 1-10 ans |
| Taux de location |
| 32,88 $ CAD/pi²/an 2,74 $ CAD/pi²/mois 87 625 $ CAD/an 7 302 $ CAD/mois |
| Utilisation de l’espace |
| Bureau |
| Aménagement |
| construction complète |
| Disponible |
| Maintenant |
7e étage, ste 750
| Taille |
| 3 623 pi² |
| Terme |
| 1-10 ans |
| Taux de location |
| 32,88 $ CAD/pi²/an 2,74 $ CAD/pi²/mois 119 124 $ CAD/an 9 927 $ CAD/mois |
| Utilisation de l’espace |
| Bureau |
| Aménagement |
| construction partielle |
| Disponible |
| Maintenant |
7e étage, ste 780
| Taille |
| 1 860 pi² |
| Terme |
| 1-10 ans |
| Taux de location |
| 32,88 $ CAD/pi²/an 2,74 $ CAD/pi²/mois 61 157 $ CAD/an 5 096 $ CAD/mois |
| Utilisation de l’espace |
| Bureau |
| Aménagement |
| construction complète |
| Disponible |
| Maintenant |
8e étage, ste 800
| Taille |
| 16 368 pi² |
| Terme |
| 1-10 ans |
| Taux de location |
| 32,88 $ CAD/pi²/an 2,74 $ CAD/pi²/mois 538 180 $ CAD/an 44 848 $ CAD/mois |
| Utilisation de l’espace |
| Bureau |
| Aménagement |
| construction complète |
| Disponible |
| Maintenant |
9e étage, ste 920
| Taille |
| 4 283 pi² |
| Terme |
| 1-10 ans |
| Taux de location |
| 32,88 $ CAD/pi²/an 2,74 $ CAD/pi²/mois 140 825 $ CAD/an 11 735 $ CAD/mois |
| Utilisation de l’espace |
| Bureau |
| Aménagement |
| construction complète |
| Disponible |
| Maintenant |
9e étage, ste 940
| Taille |
| 3 514 pi² |
| Terme |
| 1-10 ans |
| Taux de location |
| 32,88 $ CAD/pi²/an 2,74 $ CAD/pi²/mois 115 540 $ CAD/an 9 628 $ CAD/mois |
| Utilisation de l’espace |
| Bureau |
| Aménagement |
| construction complète |
| Disponible |
| Maintenant |
2e étage, ste 200
| Taille | 1 189 pi² |
| Terme | 1-10 ans |
| Taux de location | 32,88 $ CAD/pi²/an |
| Utilisation de l’espace | Bureau |
| Aménagement | construction complète |
| Disponible | Maintenant |
Property Details • Flexible Lease Terms 12 - 120+ months • Walk to Tysons Corner Metro (½ mile ) • Walk to Tysons Mall • Glass on all 4 sides of building • Free parking
- Le taux comprend les services publics, les services de bâtiment et les dépenses immobilières.
- Entièrement construit comme Bureau de services professionnels
- Disposition du plan d’étage ouverte en général
- Espace en excellent état
- Air central et chauffage
- Facilement accessible.
2e étage, ste 220
| Taille | 2 195 pi² |
| Terme | 1-10 ans |
| Taux de location | 32,88 $ CAD/pi²/an |
| Utilisation de l’espace | Bureau |
| Aménagement | construction complète |
| Disponible | Maintenant |
Property Details • Flexible Lease Terms 12 - 120+ months • Walk to Tysons Corner Metro (½ mile ) • Walk to Tysons Mall • Glass on all 4 sides of building • Free parking
- Le taux comprend les services publics, les services de bâtiment et les dépenses immobilières.
- Entièrement construit comme Bureau de services professionnels
- 4 bureaux privés
- 1 salle de conférence
- Espace en excellent état
- Air central et chauffage
- Facilement accessible.
2e étage, ste 230
| Taille | 2 782 pi² |
| Terme | 1-10 ans |
| Taux de location | 32,88 $ CAD/pi²/an |
| Utilisation de l’espace | Bureau |
| Aménagement | construction complète |
| Disponible | Maintenant |
Property Details • Flexible Lease Terms 12 - 120+ months • Walk to Tysons Corner Metro (½ mile ) • Walk to Tysons Mall • Glass on all 4 sides of building • Free parking
- Le taux comprend les services publics, les services de bâtiment et les dépenses immobilières.
- Entièrement construit comme Bureau de services professionnels
- Disposition intensive du bureau
- Espace en excellent état
- Climatisation centrale
- Facilement accessible.
2e étage, ste 240
| Taille | 2 243 pi² |
| Terme | 1-10 ans |
| Taux de location | 32,88 $ CAD/pi²/an |
| Utilisation de l’espace | Bureau |
| Aménagement | construction complète |
| Disponible | Maintenant |
Property Details • Flexible Lease Terms 12 - 120+ months • Walk to Tysons Corner Metro (½ mile ) • Walk to Tysons Mall • Glass on all 4 sides of building • Free parking
- Le taux comprend les services publics, les services de bâtiment et les dépenses immobilières.
- Entièrement construit comme Bureau de services professionnels
- Disposition intensive du bureau
- Espace en excellent état
- Climatisation centrale
- Facilement accessible.
2e étage, ste 250
| Taille | 3 425 pi² |
| Terme | 1-10 ans |
| Taux de location | 32,88 $ CAD/pi²/an |
| Utilisation de l’espace | Bureau |
| Aménagement | construction complète |
| Disponible | Maintenant |
Property Details • Flexible Lease Terms 12 - 120+ months • Walk to Tysons Corner Metro (½ mile ) • Walk to Tysons Mall • Glass on all 4 sides of building • Free parking
- Le taux comprend les services publics, les services de bâtiment et les dépenses immobilières.
- Entièrement construit comme Bureau de services professionnels
- Disposition intensive du bureau
- Espace en excellent état
- Facilement accessible.
2e étage, ste 260
| Taille | 5 251 pi² |
| Terme | 1-10 ans |
| Taux de location | 32,88 $ CAD/pi²/an |
| Utilisation de l’espace | Bureau |
| Aménagement | construction complète |
| Disponible | Maintenant |
Property Details • Flexible Lease Terms 12 - 120+ months • Walk to Tysons Corner Metro (½ mile ) • Walk to Tysons Mall • Glass on all 4 sides of building • Free parking
- Le taux comprend les services publics, les services de bâtiment et les dépenses immobilières.
- Entièrement construit comme Bureau de services professionnels
- Disposition intensive du bureau
- Espace en excellent état
- Climatisation centrale
- Facilement accessible.
3e étage, ste 300
| Taille | 2 238 pi² |
| Terme | 1-10 ans |
| Taux de location | 32,88 $ CAD/pi²/an |
| Utilisation de l’espace | Bureau |
| Aménagement | construction complète |
| Disponible | Maintenant |
Property Details • Flexible Lease Terms 12 - 120+ months • Walk to Tysons Corner Metro (½ mile ) • Walk to Tysons Mall • Glass on all 4 sides of building • Free parking
- Le taux comprend les services publics, les services de bâtiment et les dépenses immobilières.
- Entièrement construit comme Bureau de services professionnels
- Disposition du plan d’étage ouverte en général
- 3 bureaux privés
- Espace en excellent état
- Climatisation centrale
- Facilement accessible.
3e étage, ste 308
| Taille | 765 pi² |
| Terme | 1-10 ans |
| Taux de location | 32,88 $ CAD/pi²/an |
| Utilisation de l’espace | Bureau |
| Aménagement | construction complète |
| Disponible | Maintenant |
Property Details • Flexible Lease Terms 12 - 120+ months • Walk to Tysons Corner Metro (½ mile ) • Walk to Tysons Mall • Glass on all 4 sides of building • Free parking
- Le taux comprend les services publics, les services de bâtiment et les dépenses immobilières.
- Entièrement construit comme Bureau standard
- Disposition intensive du bureau
3e étage, ste 308
| Taille | 765 pi² |
| Terme | 1-10 ans |
| Taux de location | 27,40 $ CAD/pi²/an |
| Utilisation de l’espace | Bureau |
| Aménagement | construction complète |
| Disponible | Maintenant |
Space available for sublease through September 2027. Reception, 2 windowed offices, work room. Property Details • Flexible Lease Terms 12 - 120+ months • Walk to Tysons Corner Metro (½ mile ) • Walk to Tysons Mall • Glass on all 4 sides of building • Free parking
- Le taux comprend les services publics, les services de bâtiment et les dépenses immobilières.
- Entièrement construit comme Bureau standard
- Disposition du plan d’étage ouverte
- 1 bureau privé
4e étage, ste 400
| Taille | 5 003 pi² |
| Terme | 1-10 ans |
| Taux de location | 32,88 $ CAD/pi²/an |
| Utilisation de l’espace | Bureau |
| Aménagement | construction complète |
| Disponible | Maintenant |
Property Details • Flexible Lease Terms 12 - 120+ months • Walk to Tysons Corner Metro (½ mile ) • Walk to Tysons Mall • Glass on all 4 sides of building • Free parking
- Le taux comprend les services publics, les services de bâtiment et les dépenses immobilières.
- Entièrement construit comme Bureau de services professionnels
- 13 bureaux privés
- 1 salle de conférence
- Espace en excellent état
- Peut être associé à un ou plusieurs espaces supplémentaires pour obtenir jusqu’à 15 377 pi² d’espace adjacent.
- Climatisation centrale
- Facilement accessible.
4e étage, ste 420
| Taille | 2 275 pi² |
| Terme | 1-10 ans |
| Taux de location | 32,88 $ CAD/pi²/an |
| Utilisation de l’espace | Bureau |
| Aménagement | construction complète |
| Disponible | Maintenant |
Property Details • Flexible Lease Terms 12 - 120+ months • Walk to Tysons Corner Metro (½ mile ) • Walk to Tysons Mall • Glass on all 4 sides of building • Free parking
- Le taux comprend les services publics, les services de bâtiment et les dépenses immobilières.
- Entièrement construit comme Bureau de services professionnels
- Disposition du plan d’étage ouverte en général
- 7 bureaux privés
- 1 salle de conférence
- Espace en excellent état
- Peut être associé à un ou plusieurs espaces supplémentaires pour obtenir jusqu’à 15 377 pi² d’espace adjacent.
- Climatisation centrale
- Facilement accessible.
4e étage, ste 450
| Taille | 4 842 pi² |
| Terme | 1-10 ans |
| Taux de location | 32,88 $ CAD/pi²/an |
| Utilisation de l’espace | Bureau |
| Aménagement | construction complète |
| Disponible | Maintenant |
Property Details • Flexible Lease Terms 12 - 120+ months • Walk to Tysons Corner Metro (½ mile ) • Walk to Tysons Mall • Glass on all 4 sides of building • Free parking
- Le taux comprend les services publics, les services de bâtiment et les dépenses immobilières.
- Entièrement construit comme Bureau de services professionnels
- 7 bureaux privés
- 1 salle de conférence
- 21 postes de travail
- Espace en excellent état
- Peut être associé à un ou plusieurs espaces supplémentaires pour obtenir jusqu’à 15 377 pi² d’espace adjacent.
- Climatisation centrale
- Facilement accessible.
4e étage, ste 460
| Taille | 3 257 pi² |
| Terme | 1-10 ans |
| Taux de location | 32,88 $ CAD/pi²/an |
| Utilisation de l’espace | Bureau |
| Aménagement | construction complète |
| Disponible | Maintenant |
Property Details • Flexible Lease Terms 12 - 120+ months • Walk to Tysons Corner Metro (½ mile ) • Walk to Tysons Mall • Glass on all 4 sides of building • Free parking
- Le taux comprend les services publics, les services de bâtiment et les dépenses immobilières.
- Entièrement construit comme Bureau de services professionnels
- 14 bureaux privés
- Espace en excellent état
- Peut être associé à un ou plusieurs espaces supplémentaires pour obtenir jusqu’à 15 377 pi² d’espace adjacent.
- Climatisation centrale
- Facilement accessible.
5e étage, ste 510
| Taille | 3 552 pi² |
| Terme | 1-10 ans |
| Taux de location | 32,88 $ CAD/pi²/an |
| Utilisation de l’espace | Bureau |
| Aménagement | construction complète |
| Disponible | Maintenant |
Property Details • Flexible Lease Terms 12 - 120+ months • Walk to Tysons Corner Metro (½ mile ) • Walk to Tysons Mall • Glass on all 4 sides of building • Free parking
- Le taux comprend les services publics, les services de bâtiment et les dépenses immobilières.
- Entièrement construit comme Bureau de services professionnels
- Disposition intensive du bureau
- Espace en excellent état
- Peut être associé à un ou plusieurs espaces supplémentaires pour obtenir jusqu’à 7 838 pi² d’espace adjacent.
- Climatisation centrale
- Facilement accessible.
5e étage, ste 520
| Taille | 3 615 pi² |
| Terme | 1-10 ans |
| Taux de location | 32,88 $ CAD/pi²/an |
| Utilisation de l’espace | Bureau |
| Aménagement | construction complète |
| Disponible | Maintenant |
Property Details • Flexible Lease Terms 12 - 120+ months • Walk to Tysons Corner Metro (½ mile ) • Walk to Tysons Mall • Glass on all 4 sides of building • Free parking
- Le taux comprend les services publics, les services de bâtiment et les dépenses immobilières.
- Entièrement construit comme Bureau de services professionnels
- 10 bureaux privés
- Espace en excellent état
- Facilement accessible.
5e étage, ste 570
| Taille | 4 286 pi² |
| Terme | 1-10 ans |
| Taux de location | 32,88 $ CAD/pi²/an |
| Utilisation de l’espace | Bureau |
| Aménagement | construction complète |
| Disponible | Maintenant |
Property Details • Flexible Lease Terms 12 - 120+ months • Walk to Tysons Corner Metro (½ mile ) • Walk to Tysons Mall • Glass on all 4 sides of building • Free parking
- Le taux comprend les services publics, les services de bâtiment et les dépenses immobilières.
- Entièrement construit comme Bureau de services professionnels
- 9 bureaux privés
- Espace en excellent état
- Peut être associé à un ou plusieurs espaces supplémentaires pour obtenir jusqu’à 7 838 pi² d’espace adjacent.
- Climatisation centrale
- Facilement accessible.
6e étage, ste 650
| Taille | 5 034 à 10 765 pi² |
| Terme | 1-10 ans |
| Taux de location | 32,88 $ CAD/pi²/an |
| Utilisation de l’espace | Bureau |
| Aménagement | construction complète |
| Disponible | Maintenant |
Property Details • Flexible Lease Terms 12 - 120+ months • Walk to Tysons Corner Metro (½ mile ) • Walk to Tysons Mall • Glass on all 4 sides of building • Free parking
- Le taux comprend les services publics, les services de bâtiment et les dépenses immobilières.
- Entièrement construit comme Bureau de services professionnels
- 12 bureaux privés
- 42 postes de travail
- Espace en excellent état
- Climatisation centrale
- Facilement accessible.
7e étage, ste 700
| Taille | 2 909 pi² |
| Terme | 1-10 ans |
| Taux de location | 32,88 $ CAD/pi²/an |
| Utilisation de l’espace | Bureau |
| Aménagement | construction complète |
| Disponible | 30 jours |
Property Details • Flexible Lease Terms 12 - 120+ months • Walk to Tysons Corner Metro (½ mile ) • Walk to Tysons Mall • Glass on all 4 sides of building • Free parking
- Le taux comprend les services publics, les services de bâtiment et les dépenses immobilières.
- Entièrement construit comme Bureau de services professionnels
- Disposition du plan d’étage ouverte
- Espace en excellent état
- Climatisation centrale
- Facilement accessible.
7e étage, ste 720
| Taille | 2 665 pi² |
| Terme | 1-10 ans |
| Taux de location | 32,88 $ CAD/pi²/an |
| Utilisation de l’espace | Bureau |
| Aménagement | construction complète |
| Disponible | Maintenant |
Property Details • Flexible Lease Terms 12 - 120+ months • Walk to Tysons Corner Metro (½ mile ) • Walk to Tysons Mall • Glass on all 4 sides of building • Free parking
- Le taux comprend les services publics, les services de bâtiment et les dépenses immobilières.
- Entièrement construit comme Bureau de services professionnels
- Disposition du plan d’étage ouverte en général
- Espace en excellent état
- Facilement accessible.
7e étage, ste 750
| Taille | 3 623 pi² |
| Terme | 1-10 ans |
| Taux de location | 32,88 $ CAD/pi²/an |
| Utilisation de l’espace | Bureau |
| Aménagement | construction partielle |
| Disponible | Maintenant |
Property Details • Flexible Lease Terms 12 - 120+ months • Walk to Tysons Corner Metro (½ mile ) • Walk to Tysons Mall • Glass on all 4 sides of building • Free parking
- Le taux comprend les services publics, les services de bâtiment et les dépenses immobilières.
- Partiellement construit comme Bureau de services professionnels
- Disposition du plan d’étage ouverte en général
- 2 bureaux privés
- Facilement accessible.
7e étage, ste 780
| Taille | 1 860 pi² |
| Terme | 1-10 ans |
| Taux de location | 32,88 $ CAD/pi²/an |
| Utilisation de l’espace | Bureau |
| Aménagement | construction complète |
| Disponible | Maintenant |
Property Details • Flexible Lease Terms 12 - 120+ months • Walk to Tysons Corner Metro (½ mile ) • Walk to Tysons Mall • Glass on all 4 sides of building • Free parking
- Le taux comprend les services publics, les services de bâtiment et les dépenses immobilières.
- Entièrement construit comme Bureau standard
- Disposition du plan d’étage ouverte en général
8e étage, ste 800
| Taille | 16 368 pi² |
| Terme | 1-10 ans |
| Taux de location | 32,88 $ CAD/pi²/an |
| Utilisation de l’espace | Bureau |
| Aménagement | construction complète |
| Disponible | Maintenant |
Property Details • Flexible Lease Terms 12 - 120+ months • Walk to Tysons Corner Metro (½ mile ) • Walk to Tysons Mall • Glass on all 4 sides of building • Free parking
- Le taux comprend les services publics, les services de bâtiment et les dépenses immobilières.
- Entièrement construit comme Bureau de services professionnels
- Disposition intensive du bureau
- Espace en excellent état
- Climatisation centrale
- Facilement accessible.
9e étage, ste 920
| Taille | 4 283 pi² |
| Terme | 1-10 ans |
| Taux de location | 32,88 $ CAD/pi²/an |
| Utilisation de l’espace | Bureau |
| Aménagement | construction complète |
| Disponible | Maintenant |
Take a virtual tour! https://my.matterport.com/show/?m=x997Y2vFFvs Property Details • Flexible Lease Terms 12 - 120+ months • Walk to Tysons Corner Metro (½ mile ) • Walk to Tysons Mall • Glass on all 4 sides of building • Free parking
- Le taux comprend les services publics, les services de bâtiment et les dépenses immobilières.
- Entièrement construit comme Bureau de services professionnels
- Disposition du plan d’étage ouverte en général
- 10 bureaux privés
- 1 salle de conférence
- 4 postes de travail
- Espace en excellent état
- Peut être associé à un ou plusieurs espaces supplémentaires pour obtenir jusqu’à 7 797 pi² d’espace adjacent.
- Climatisation centrale
- Facilement accessible.
9e étage, ste 940
| Taille | 3 514 pi² |
| Terme | 1-10 ans |
| Taux de location | 32,88 $ CAD/pi²/an |
| Utilisation de l’espace | Bureau |
| Aménagement | construction complète |
| Disponible | Maintenant |
Property Details • Flexible Lease Terms 12 - 120+ months • Walk to Tysons Corner Metro (½ mile ) • Walk to Tysons Mall • Glass on all 4 sides of building • Free parking
- Le taux comprend les services publics, les services de bâtiment et les dépenses immobilières.
- Entièrement construit comme Bureau de services professionnels
- Disposition du plan d’étage ouverte en général
- Espace en excellent état
- Peut être associé à un ou plusieurs espaces supplémentaires pour obtenir jusqu’à 7 797 pi² d’espace adjacent.
- Climatisation centrale
- Facilement accessible.
Aperçu de la propriété
L'édifice comprend des améliorations au hall d'entrée et aux aires communes. Offre la meilleure solution économique pour les locataires à la recherche d'un emplacement central Tysons Corner. Situé à l'intersection de la route 7 et de la promenade International, cette propriété offre un excellent accès au D.C. Beltway. L'établissement se trouve à quelques pas de la station de métro Tyson's et du Tyson's Mall. Grand garage de stationnement complémentaire. Modalités flexibles disponibles.
- Accès 24 heures
- Gestionnaire d'immeuble sur place
- Restaurant
- Chauffage central
- Climatisation
Faits sur la propriété
Présenté par
8133 Leesburg Pike
Hmm, il semble y avoir eu une erreur lors de l’envoi de votre message. Veuillez réessayer.
Merci! Votre message a été envoyé.
































































