Se Connecter/S’inscrire
Votre courriel a été envoyé.
815 Park Ave Unité de condo • Bureau/Médical • 2 000 pi² • À vendre 2 652 919 $ CAD • New York, NY 10021



Certaines informations ont été traduites automatiquement.
Faits saillants de l'investissement
- QUAD-A CERTIFIED OPERATING SUITE
- 8’ X 10’ STORAGE CAGE IN BASEMENT
- TWO BLOCKS FROM LENOX HILL HOSPITAL
- ADAPTABLE TO ANY MEDICAL SPECIALTY
1 Unité disponible
- Unité
- Taille de l’unité
- Utilisation du condo
- Prix
- Revenu net d’exploitation
| Type de vente | Propriétaire utilisateur |
| Type de vente | Propriétaire utilisateur |
Description
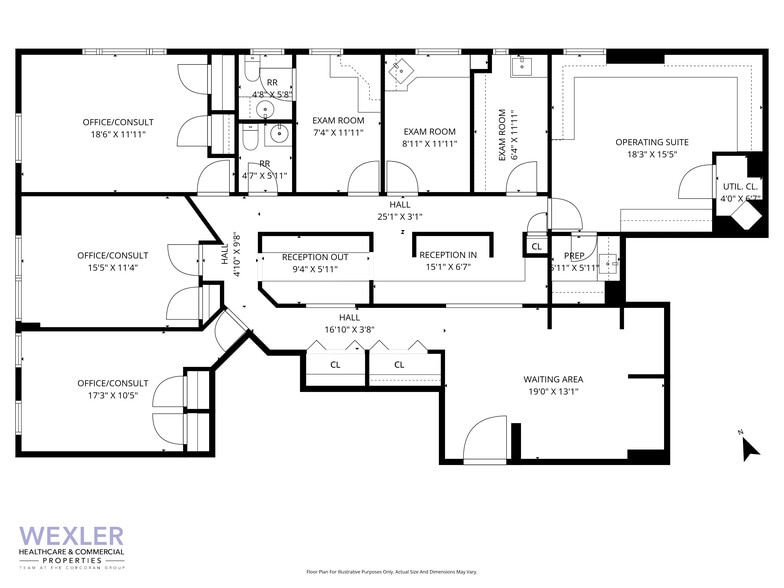
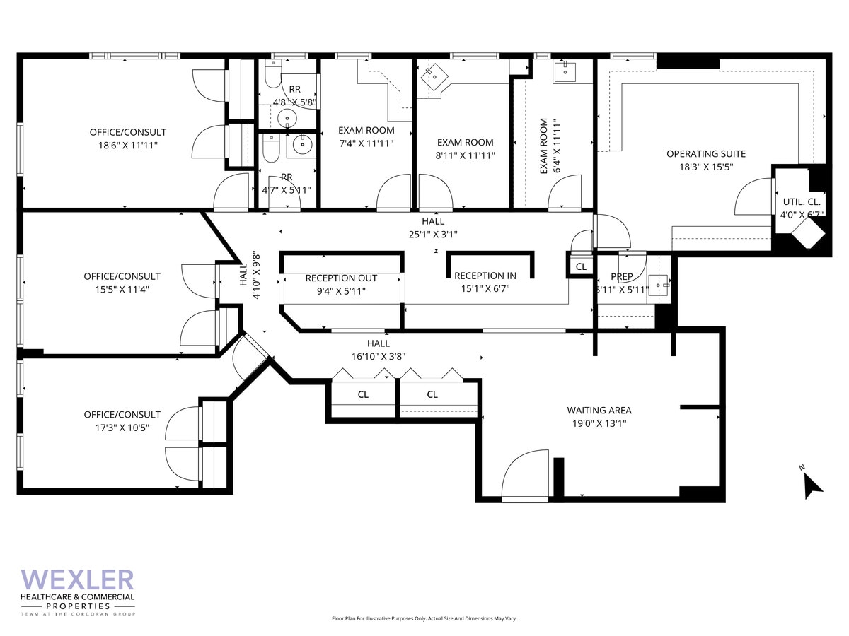
Available for sale, 815 Park Avenue, Suite 1AD, located on the Upper East Side, is a fully-equipped surgical office ideal for a variety of medical practices. Currently configured as a plastic surgery practice, this 2,000-square-foot suite is adaptable to any medical specialty.
The office features a waiting area, in and out receptions, a Quad-A accredited operating suite with a prep room/lab, three exam rooms, three offices/consults, two restrooms, and three closets. Also included is an 8’x10’ storage cage in the basement.
815 Park Ave is easily accessible by public transportation via the 4, 5, and 6 trains at 77th St as well as Upper East Side bus routes. The building is two blocks from Lenox Hill Hospital and proximate to Mount Sinai.
Maintenance: $7,814/month
The office features a waiting area, in and out receptions, a Quad-A accredited operating suite with a prep room/lab, three exam rooms, three offices/consults, two restrooms, and three closets. Also included is an 8’x10’ storage cage in the basement.
815 Park Ave is easily accessible by public transportation via the 4, 5, and 6 trains at 77th St as well as Upper East Side bus routes. The building is two blocks from Lenox Hill Hospital and proximate to Mount Sinai.
Maintenance: $7,814/month
| Unité | Taille de l’unité | Utilisation du condo | Prix | Revenu net d’exploitation |
| Unité 1AD | 2 000 pi² | Bureau/Médical | 2 652 919 $ CAD (1 326,46 $ CAD/pi²) | - |
Unité 1AD
| Taille de l’unité |
| 2 000 pi² |
| Utilisation du condo |
| Bureau/Médical |
| Prix |
| 2 652 919 $ CAD (1 326,46 $ CAD/pi²) |
| Revenu net d’exploitation |
| - |
1 de 27
Vidéos
Visite extérieure 3D Matterport
Visite 3D Matterport
Photos
Vue depuis la rue
Rue
Carte
Unité 1AD
| Taille de l’unité | 2 000 pi² |
| Utilisation du condo | Bureau/Médical |
| Prix | 2 652 919 $ CAD (1 326,46 $ CAD/pi²) |
| Revenu net d’exploitation | - |
| Type de vente | Propriétaire utilisateur |
| Description | |
| Available for sale, 815 Park Avenue, Suite 1AD, located on the Upper East Side, is a fully-equipped surgical office ideal for a variety of medical practices. Currently configured as a plastic surgery practice, this 2,000-square-foot suite is adaptable to any medical specialty.<br> The office features a waiting area, in and out receptions, a Quad-A accredited operating suite with a prep room/lab, three exam rooms, three offices/consults, two restrooms, and three closets. Also included is an 8’x10’ storage cage in the basement.<br> <br> 815 Park Ave is easily accessible by public transportation via the 4, 5, and 6 trains at 77th St as well as Upper East Side bus routes. The building is two blocks from Lenox Hill Hospital and proximate to Mount Sinai.<br> <br> Maintenance: $7,814/month</li></ul> |
Faits sur la propriété
Les caractéristiques suivantes s'appliquent à l'ensemble du bâtiment. Les détails relatifs aux unités de copropriété individuelles peuvent varier et figurent dans les informations concernant les unités ci-dessus.
Unité renseignements sur le mélange
| Description | Nombre d’unités | Loyer moyen/mois | pi² |
|---|---|---|---|
| 2+1 | 46 | - | - |
1 1
Exceptionnellement accessible à pied
100/100
Relativement adapté aux voitures
30/100
Transports en commun exceptionnels
100/100
Très accessible en vélo
80/100
1 de 8
Vidéos
Visite extérieure 3D Matterport
Visite 3D Matterport
Photos
Vue depuis la rue
Rue
Carte
1 de 1
Présenté par
815 Park Ave
Vous êtes déjà membre? Connectez-vous
Hmm, il semble y avoir eu une erreur lors de l’envoi de votre message. Veuillez réessayer.
Merci! Votre message a été envoyé.


