Se Connecter/S’inscrire
Votre courriel a été envoyé.
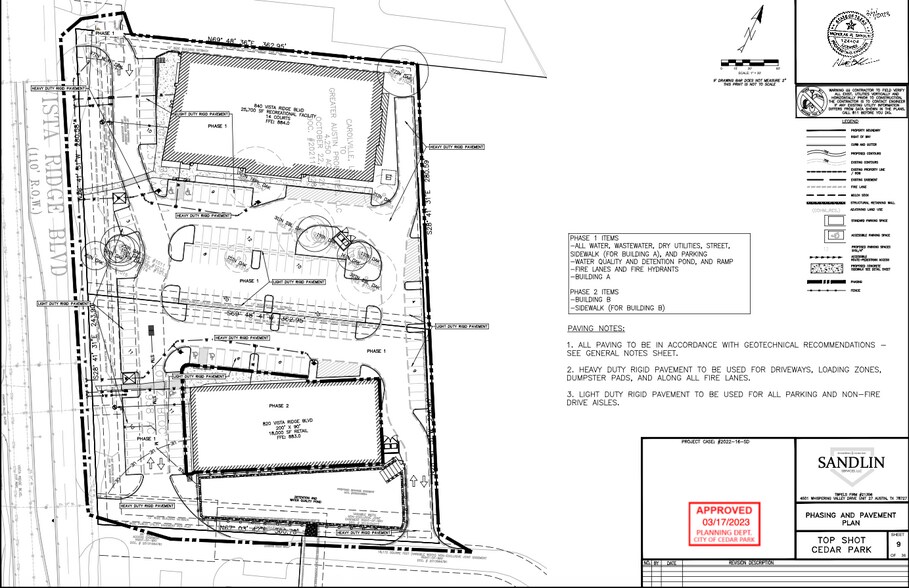
820 N Vista Ridge Blvd - Shovel-Ready Pad- Cedar Park Lot • Terrain commercial • 1,93 Acres • 3 312 624 $ CAD • Cedar Park, TX 78613



Certaines informations ont été traduites automatiquement.
Faits saillants de l'investissement
- Shovel-ready 1.93-acre commercial pad with approximately $1M in completed horizontal improvements, eliminating 6-12 months of typical entitlement and
- rade area of 300,981 population (5-mile) and $156,584 median household income (1-mile) surrounded by H-E-B, Costco, Target, and Cedar Park Medical Cen
- 8,000 SF retail entitlement under General Business zoning with recorded shared parking agreement supporting restaurant, medical, and mixed-use develop
Résumé de l'annonce
Vista Ridge Crossing is a fully entitled, shovel-ready 1.93-acre commercial pad in one of Cedar Park's strongest retail and medical corridors. Offered at $2,400,000, the site includes approximately $1M in completed horizontal improvements, eliminating 6-12 months of typical site work timeline.
Entitled for 18,000 SF of retail under General Business zoning (Cedar Park's most flexible), the property is ready for immediate vertical construction. Completed improvements include a 72-space lighted parking lot, recorded shared parking agreement with adjacent TopShot sports complex, all utilities stubbed to the building pad, and complete drainage and water quality systems.
The site is optimally configured for a corner restaurant pad facing Vista Ridge Blvd (drive-thru capable) with retail bays along the remainder, or medical conversion for any or all bays.
Trade Area (Crexi 2024): 300,981 population (5-mile) | $156,584 median HH income (1-mile) | 18,401 daytime employees (1-mile) | +11.4% population growth (5-mile, 2020-2024)
Market: Stabilized Cedar Park retail trading at $500-$750+ PSF, 5.75% cap rates (Crexi Q1 2026).
Exit Strategies: Developer resale, build-and-lease, owner-user, build-to-suit, or physician group condo.
Full OM available upon executed CA.
Disclosure: Listing broker Rakesh Yarlagadda is a part-owner of 820 Vista Ridge LLC, the property owner.
Entitled for 18,000 SF of retail under General Business zoning (Cedar Park's most flexible), the property is ready for immediate vertical construction. Completed improvements include a 72-space lighted parking lot, recorded shared parking agreement with adjacent TopShot sports complex, all utilities stubbed to the building pad, and complete drainage and water quality systems.
The site is optimally configured for a corner restaurant pad facing Vista Ridge Blvd (drive-thru capable) with retail bays along the remainder, or medical conversion for any or all bays.
Trade Area (Crexi 2024): 300,981 population (5-mile) | $156,584 median HH income (1-mile) | 18,401 daytime employees (1-mile) | +11.4% population growth (5-mile, 2020-2024)
Market: Stabilized Cedar Park retail trading at $500-$750+ PSF, 5.75% cap rates (Crexi Q1 2026).
Exit Strategies: Developer resale, build-and-lease, owner-user, build-to-suit, or physician group condo.
Full OM available upon executed CA.
Disclosure: Listing broker Rakesh Yarlagadda is a part-owner of 820 Vista Ridge LLC, the property owner.
Faits sur la propriété
1 Lot disponible
Lot
| Prix | 3 312 624 $ CAD | Taille du lot | 1,93 AC |
| Prix par AC | 1 716 385,48 $ CAD |
| Prix | 3 312 624 $ CAD |
| Prix par AC | 1 716 385,48 $ CAD |
| Taille du lot | 1,93 AC |
Vista Ridge Crossing | 1.93 AC Shovel-Ready Retail/Medical Pad | Cedar Park, TX
1 1
Assez practicable à pied
50/100
Exceptionnellement facile d'accès en voiture
90/100
Plutôt praticable en vélo
50/100
Impôts fonciers
| Numéro de lot | R641087 | Évaluation des bâtiments | 0 $ CAD |
| Évaluation du terrain | 2 272 151 $ CAD | Évaluation totale | 2 272 151 $ CAD |
Impôts fonciers
Numéro de lot
R641087
Évaluation du terrain
2 272 151 $ CAD
Évaluation des bâtiments
0 $ CAD
Évaluation totale
2 272 151 $ CAD
1 de 6
Vidéos
Visite extérieure 3D Matterport
Visite 3D Matterport
Photos
Vue depuis la rue
Rue
Carte
1 de 1
Présenté par
820 N Vista Ridge Blvd - Shovel-Ready Pad- Cedar Park
Vous êtes déjà membre? Connectez-vous
Hmm, il semble y avoir eu une erreur lors de l’envoi de votre message. Veuillez réessayer.
Merci! Votre message a été envoyé.
