Votre courriel a été envoyé.
826 Wickham Rd 818 pi² d'espace disponible • Commerce de détail • Croydon CR0 8EB


Certaines informations ont été traduites automatiquement.
FAITS SAILLANTS
- 76 sqm Customisable Floor Space
- Shopping Parade Location
- Flexible Terms
- Contact Agent on Ext 122
- Demised Outdoor Space for Car or Outdoor Dining
- Parking & Transport Links Close By
- Available April 2026
DISPONIBILITÉ DE L’ESPACE (1)
Afficher les taux de location en
- ESPACE
- TAILLE
- TERME
- TAUX DE LOCATION
- TYPE
| Espace | Taille | Terme | Taux de location | Type de loyer | ||
| - | 818 pi² | Négociable | 52,30 $ CAD/pi²/an 4,36 $ CAD/pi²/mois 42 788 $ CAD/an 3 566 $ CAD/mois | À déterminer |
-
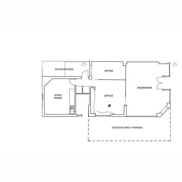
A prominent, glass fronted, corner retail unit spanning in excess of 800sqft, on a well visited shopping parade just moments from West Wickham High Street. The demised outdoor space to the side would work well as either a car parking (electric point for EV charger in place) or an outdoor dining area. Parking and transport links are all within easy reach, in a busy residential area with good footfall.Classified as Use Class E, this premises would suit someone wanting to create a coffee shop or sandwich bar, health & wellness space or clinic, retail space or professional services.Available in April 2026.Please enter extension 122 when calling to reach your agent directly.
Types de services
Le type de service et le montant du loyer que le locataire (preneur) est tenu de payer au propriétaire (bailleur) sur la durée du bail sont négociés avant la signature du bail par les deux parties. Le type de service varie selon les services fournis. Contactez le courtier inscripteur pour tout connaître sur les frais connexes et additionnels associés à chaque type de service.
1. Réparations et assurances complètes: Toutes les obligations de réparer et d’assurer la propriété (ou de sa part de la propriété) à l’interne comme à l’externe.
2. Réparations internes seulement: Le locataire est responsable des réparations internes seulement. Le propriétaire est responsable des réparations structurelles et externes.
3. Réparations et assurances internes: Le locataire est responsable des réparations internes et des assurances pour les parties internes de la propriété seulement. Le propriétaire est responsable des réparations structurelles et externes.
4. Négociable ou à déterminer: Cette option est utilisée lorsque le contact de location ne fournit pas le type de service.
SÉLECTIONNER DES LOCATAIRES À 826 WICKHAM RD, CROYDON, LND CR0 8EB
- Stronghold Security Doors
FAITS SUR LA PROPRIÉTÉ
| Superficie totale disponible | 818 pi² | Superficie commerciale brute | 1 000 pi² |
| Type de propriété | Commerce de détail | Année de construction | 1920 |
| Sous-type de propriété | Commerce pied immeuble | Ratio de stationnement | 2/1 000 pi² |
| Superficie totale disponible | 818 pi² |
| Type de propriété | Commerce de détail |
| Sous-type de propriété | Commerce pied immeuble |
| Superficie commerciale brute | 1 000 pi² |
| Année de construction | 1920 |
| Ratio de stationnement | 2/1 000 pi² |
CARACTÉRISTIQUES ET COMMODITÉS
- Espace d'entreposage
PRINCIPAUX DÉTAILLANTS À PROXIMITÉ
Présenté par
Keller Williams Advantage
826 Wickham Rd
Hmm, il semble y avoir eu une erreur lors de l’envoi de votre message. Veuillez réessayer.
Merci! Votre message a été envoyé.
