Votre courriel a été envoyé.
One Oyster Point 827 Diligence Dr 5 876 pi² d'espace disponible • Bureau • Newport News, VA 23606



Certaines informations ont été traduites automatiquement.
Faits saillants de la sous-location
- First floor includes reception, private office, and production space; second floor features two offices and a conference room with kitchenette.
- Two bathrooms, one on each floor, for added convenience.
- Zoned I-1 (Light Industrial) with masonry construction for durability and security.
- Located in a well-connected area with easy access to major highways and regional markets.
Tous les espaces disponibles(1)
Afficher les taux de location en
- Espace
- Taille
- Terme
- Taux de location
- Utilisation de l’espace
- État
- Disponible
596 Central Drive, Unit 104 offers a versatile industrial flex space in a prime Virginia Beach location. This ±3,000-square-foot unit is designed to accommodate a range of light industrial, office, and production uses, providing businesses with a functional and efficient layout.
- Espace de sous-location disponible auprès du locataire actuel
- Entièrement construit comme Bureau standard
- 6 bureaux privés
- 32 postes de travail
- Taux de location inscrit plus part proportionnelle des coûts de nettoyage
- Convient pour 15 à 48 personnes
- 1 salle de conférence
- Competitive lease rate
| Espace | Taille | Terme | Taux de location | Utilisation de l’espace | État | Disponible |
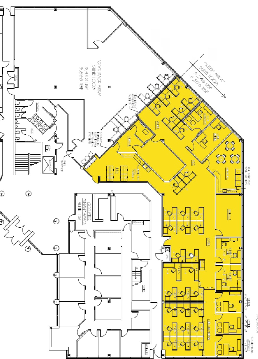
| 1er étage, ste 100A | 5 876 pi² | Déc. 2027 | 20,88 $ CAD/pi²/an 1,74 $ CAD/pi²/mois 122 672 $ CAD/an 10 223 $ CAD/mois | Bureau | construction complète | 30 jours |
1er étage, ste 100A
| Taille |
| 5 876 pi² |
| Terme |
| Déc. 2027 |
| Taux de location |
| 20,88 $ CAD/pi²/an 1,74 $ CAD/pi²/mois 122 672 $ CAD/an 10 223 $ CAD/mois |
| Utilisation de l’espace |
| Bureau |
| État |
| construction complète |
| Disponible |
| 30 jours |
1er étage, ste 100A
| Taille | 5 876 pi² |
| Terme | Déc. 2027 |
| Taux de location | 20,88 $ CAD/pi²/an |
| Utilisation de l’espace | Bureau |
| État | construction complète |
| Disponible | 30 jours |
596 Central Drive, Unit 104 offers a versatile industrial flex space in a prime Virginia Beach location. This ±3,000-square-foot unit is designed to accommodate a range of light industrial, office, and production uses, providing businesses with a functional and efficient layout.
- Espace de sous-location disponible auprès du locataire actuel
- Taux de location inscrit plus part proportionnelle des coûts de nettoyage
- Entièrement construit comme Bureau standard
- Convient pour 15 à 48 personnes
- 6 bureaux privés
- 1 salle de conférence
- 32 postes de travail
- Competitive lease rate
Aperçu de la propriété
The property features a masonry construction and is zoned I-1 (Light Industrial), ensuring flexibility for various operational needs.The first floor includes a reception area, private office, production area, and one bathroom, while the second floor offers two large private offices, a spacious conference room with kitchenette, and an additional bathroom. This configuration supports both administrative and operational functions, making it ideal for companies seeking a combined office and production environment. Conveniently located near major transportation routes, the property provides easy access to the broader Hampton Roads region, including Norfolk and Chesapeake. With strong surrounding demographics and proximity to key business hubs, this property offers an excellent opportunity for businesses looking to establish or expand their presence in Virginia Beach.
- Ligne d'autobus
- Affichage
- Lumière naturelle
Faits sur la propriété
Sélectionner des locataires
- Étage
- Nom du locataire
- Secteur
- 2ᵉ
- AC Salon Suites
- Services
- 1ᵉʳ
- Caggiano Realty Group
- Immobilier
- 2ᵉ
- Mccormick & Caldern
- Services professionnels, scientifiques et techniques
- 2ᵉ
- Men's Wellness Centers
- Services
- 1ᵉʳ
- RE/MAX- Team Titan
- Immobilier
- 1ᵉʳ
- Snap, Inc.
- Information
- 1ᵉʳ
- Tidewater Physicians Multispecialty Group
- Soins de santé et assistance sociale
- 2ᵉ
- Truist
- Finance et assurances
- 2ᵉ
- U.S. Probation Office
- Administration publique
Présenté par
One Oyster Point | 827 Diligence Dr
Hmm, il semble y avoir eu une erreur lors de l’envoi de votre message. Veuillez réessayer.
Merci! Votre message a été envoyé.



