Votre courriel a été envoyé.
Hopewell Professional Office Space 83 Princeton Ave 662–6 089 pi² d'espace disponible • Hopewell, NJ 08525



Certaines informations ont été traduites automatiquement.
Faits saillants
- 83 Princeton Avenue is ideal for professional or services firm seeking to own with income and expansion potential
Tous les espaces disponibles(6)
Afficher les taux de location en
- Espace
- Taille
- Terme
- Taux de location
- Utilisation de l’espace
- Aménagement
- Disponible
- Le taux inscrit peut ne pas comprendre certains services publics, les services de bâtiment et les dépenses immobilières.
- Convient pour 2 à 6 personnes
- Climatisation centrale
- Entièrement construit comme Bureau standard
- 2 bureaux privés
- Espace en coin
- Le taux inscrit peut ne pas comprendre certains services publics, les services de bâtiment et les dépenses immobilières.
- Convient pour 4 à 8 personnes
- Climatisation centrale
- Entièrement construit comme Bureau standard
- 4 bureaux privés
- Espace en coin
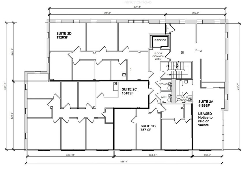
The second floor has three suites offering 757, 1328 and 1543rsf, for total of 3625/SF if combined
- Le taux inscrit peut ne pas comprendre certains services publics, les services de bâtiment et les dépenses immobilières.
- Convient pour 4 à 11 personnes
- Entièrement construit comme Espace médical standard
- 8 bureaux privés
- Le taux inscrit peut ne pas comprendre certains services publics, les services de bâtiment et les dépenses immobilières.
- Convient pour 4 à 10 personnes
- Climatisation centrale
- Entièrement construit comme Bureau standard
- 4 bureaux privés
- Lumière naturelle
The top floor of 4500 rentable is available in its entirety.
- Le taux inscrit peut ne pas comprendre certains services publics, les services de bâtiment et les dépenses immobilières.
- Disposition intensive du bureau
- Entièrement construit comme Espace médical standard
- Convient pour 4 à 11 personnes
- Le taux inscrit peut ne pas comprendre certains services publics, les services de bâtiment et les dépenses immobilières.
- Convient pour 4 à 11 personnes
- Entièrement construit comme Espace médical standard
- 7 bureaux privés
| Espace | Taille | Terme | Taux de location | Utilisation de l’espace | Aménagement | Disponible |
| 1er étage, ste 1 C | 713 pi² | 3-5 ans | 25,44 $ CAD/pi²/an 2,12 $ CAD/pi²/mois 18 136 $ CAD/an 1 511 $ CAD/mois | Bureau | construction complète | Maintenant |
| 2e étage, ste 2 B | 757 pi² | 3-5 ans | 25,44 $ CAD/pi²/an 2,12 $ CAD/pi²/mois 19 256 $ CAD/an 1 605 $ CAD/mois | Bureau | construction complète | Maintenant |
| 2e étage, ste 2D | 1 327 pi² | Négociable | 25,44 $ CAD/pi²/an 2,12 $ CAD/pi²/mois 33 755 $ CAD/an 2 813 $ CAD/mois | Bureau/Médical | construction complète | Maintenant |
| 3e étage, ste 3 A | 662 pi² | 3-5 ans | 25,44 $ CAD/pi²/an 2,12 $ CAD/pi²/mois 16 839 $ CAD/an 1 403 $ CAD/mois | Bureau | construction complète | Maintenant |
| 3e étage, ste 3C | 1 334 pi² | Négociable | 25,44 $ CAD/pi²/an 2,12 $ CAD/pi²/mois 33 933 $ CAD/an 2 828 $ CAD/mois | Bureau/Médical | construction complète | Maintenant |
| 3e étage, ste 3D | 1 296 pi² | 3-5 ans | 25,44 $ CAD/pi²/an 2,12 $ CAD/pi²/mois 32 966 $ CAD/an 2 747 $ CAD/mois | Bureau/Médical | construction complète | Maintenant |
1er étage, ste 1 C
| Taille |
| 713 pi² |
| Terme |
| 3-5 ans |
| Taux de location |
| 25,44 $ CAD/pi²/an 2,12 $ CAD/pi²/mois 18 136 $ CAD/an 1 511 $ CAD/mois |
| Utilisation de l’espace |
| Bureau |
| Aménagement |
| construction complète |
| Disponible |
| Maintenant |
2e étage, ste 2 B
| Taille |
| 757 pi² |
| Terme |
| 3-5 ans |
| Taux de location |
| 25,44 $ CAD/pi²/an 2,12 $ CAD/pi²/mois 19 256 $ CAD/an 1 605 $ CAD/mois |
| Utilisation de l’espace |
| Bureau |
| Aménagement |
| construction complète |
| Disponible |
| Maintenant |
2e étage, ste 2D
| Taille |
| 1 327 pi² |
| Terme |
| Négociable |
| Taux de location |
| 25,44 $ CAD/pi²/an 2,12 $ CAD/pi²/mois 33 755 $ CAD/an 2 813 $ CAD/mois |
| Utilisation de l’espace |
| Bureau/Médical |
| Aménagement |
| construction complète |
| Disponible |
| Maintenant |
3e étage, ste 3 A
| Taille |
| 662 pi² |
| Terme |
| 3-5 ans |
| Taux de location |
| 25,44 $ CAD/pi²/an 2,12 $ CAD/pi²/mois 16 839 $ CAD/an 1 403 $ CAD/mois |
| Utilisation de l’espace |
| Bureau |
| Aménagement |
| construction complète |
| Disponible |
| Maintenant |
3e étage, ste 3C
| Taille |
| 1 334 pi² |
| Terme |
| Négociable |
| Taux de location |
| 25,44 $ CAD/pi²/an 2,12 $ CAD/pi²/mois 33 933 $ CAD/an 2 828 $ CAD/mois |
| Utilisation de l’espace |
| Bureau/Médical |
| Aménagement |
| construction complète |
| Disponible |
| Maintenant |
3e étage, ste 3D
| Taille |
| 1 296 pi² |
| Terme |
| 3-5 ans |
| Taux de location |
| 25,44 $ CAD/pi²/an 2,12 $ CAD/pi²/mois 32 966 $ CAD/an 2 747 $ CAD/mois |
| Utilisation de l’espace |
| Bureau/Médical |
| Aménagement |
| construction complète |
| Disponible |
| Maintenant |
1er étage, ste 1 C
| Taille | 713 pi² |
| Terme | 3-5 ans |
| Taux de location | 25,44 $ CAD/pi²/an |
| Utilisation de l’espace | Bureau |
| Aménagement | construction complète |
| Disponible | Maintenant |
- Le taux inscrit peut ne pas comprendre certains services publics, les services de bâtiment et les dépenses immobilières.
- Entièrement construit comme Bureau standard
- Convient pour 2 à 6 personnes
- 2 bureaux privés
- Climatisation centrale
- Espace en coin
2e étage, ste 2 B
| Taille | 757 pi² |
| Terme | 3-5 ans |
| Taux de location | 25,44 $ CAD/pi²/an |
| Utilisation de l’espace | Bureau |
| Aménagement | construction complète |
| Disponible | Maintenant |
- Le taux inscrit peut ne pas comprendre certains services publics, les services de bâtiment et les dépenses immobilières.
- Entièrement construit comme Bureau standard
- Convient pour 4 à 8 personnes
- 4 bureaux privés
- Climatisation centrale
- Espace en coin
2e étage, ste 2D
| Taille | 1 327 pi² |
| Terme | Négociable |
| Taux de location | 25,44 $ CAD/pi²/an |
| Utilisation de l’espace | Bureau/Médical |
| Aménagement | construction complète |
| Disponible | Maintenant |
The second floor has three suites offering 757, 1328 and 1543rsf, for total of 3625/SF if combined
- Le taux inscrit peut ne pas comprendre certains services publics, les services de bâtiment et les dépenses immobilières.
- Entièrement construit comme Espace médical standard
- Convient pour 4 à 11 personnes
- 8 bureaux privés
3e étage, ste 3 A
| Taille | 662 pi² |
| Terme | 3-5 ans |
| Taux de location | 25,44 $ CAD/pi²/an |
| Utilisation de l’espace | Bureau |
| Aménagement | construction complète |
| Disponible | Maintenant |
- Le taux inscrit peut ne pas comprendre certains services publics, les services de bâtiment et les dépenses immobilières.
- Entièrement construit comme Bureau standard
- Convient pour 4 à 10 personnes
- 4 bureaux privés
- Climatisation centrale
- Lumière naturelle
3e étage, ste 3C
| Taille | 1 334 pi² |
| Terme | Négociable |
| Taux de location | 25,44 $ CAD/pi²/an |
| Utilisation de l’espace | Bureau/Médical |
| Aménagement | construction complète |
| Disponible | Maintenant |
The top floor of 4500 rentable is available in its entirety.
- Le taux inscrit peut ne pas comprendre certains services publics, les services de bâtiment et les dépenses immobilières.
- Entièrement construit comme Espace médical standard
- Disposition intensive du bureau
- Convient pour 4 à 11 personnes
3e étage, ste 3D
| Taille | 1 296 pi² |
| Terme | 3-5 ans |
| Taux de location | 25,44 $ CAD/pi²/an |
| Utilisation de l’espace | Bureau/Médical |
| Aménagement | construction complète |
| Disponible | Maintenant |
- Le taux inscrit peut ne pas comprendre certains services publics, les services de bâtiment et les dépenses immobilières.
- Entièrement construit comme Espace médical standard
- Convient pour 4 à 11 personnes
- 7 bureaux privés
Aperçu de la propriété
Bâtiment complet de 13 500 pi² à vendre, avec potentiel de revenus et d'expansion. Suites disponibles de 548 pi², 1029 pi², 1271 pi², 1556 pi², 2226 pi², 2609 pi² et un étage complet de 4835 pi². Emplacement en ville offrant un excellent accès, un stationnement abondant et une proximité aux services. Rénovations récentes du hall d'entrée, des salles de bain et de l'extérieur, ainsi qu'un stationnement nouvellement asphalté. Le 83 avenue Princeton propose une grande variété de configurations d'espaces.
- Climatisation
Faits sur la propriété
Présenté par
Hopewell Professional Office Space | 83 Princeton Ave
Hmm, il semble y avoir eu une erreur lors de l’envoi de votre message. Veuillez réessayer.
Merci! Votre message a été envoyé.




