Votre courriel a été envoyé.
Certaines informations ont été traduites automatiquement.
Faits saillants
- Prime Wauwatosa location with immediate Hwy 100 access
- Flexible suite sizes ideal for small businesses
- Prominent building signage for maximum visibility
- Surrounded by retail, dining, and medical amenities
Tous les espaces disponibles(4)
Afficher les taux de location en
- Espace
- Taille
- Terme
- Taux de location
- Utilisation de l’espace
- Aménagement
- Disponible
Monthly rent is $400 and tenant improvements are negotialbe to qualified tenants.
- Le taux comprend les services publics, les services de bâtiment et les dépenses immobilières.
- Disposition du plan d’étage ouverte
Monthly rent is $350
Suite 27 offers private offices and a room with a sink. Monthly rent is $1,130.
- Le taux comprend les services publics, les services de bâtiment et les dépenses immobilières.
- Peut être associé à un ou plusieurs espaces supplémentaires pour obtenir jusqu’à 1 388 pi² d’espace adjacent.
- 2 bureaux privés
- Adjacent to the shared restrooms.
Monthly rent is $900.
- Le taux comprend les services publics, les services de bâtiment et les dépenses immobilières.
- Peut être associé à un ou plusieurs espaces supplémentaires pour obtenir jusqu’à 1 388 pi² d’espace adjacent.
- Disposition du plan d’étage ouverte
| Espace | Taille | Terme | Taux de location | Utilisation de l’espace | Aménagement | Disponible |
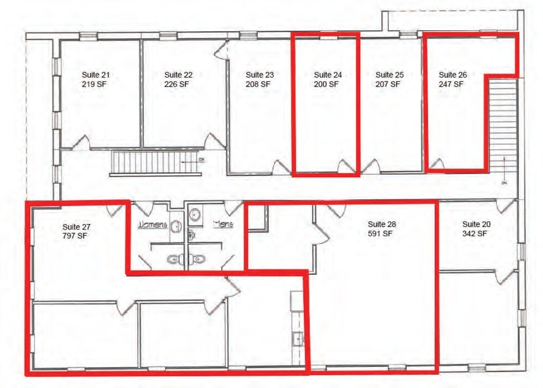
| 1er étage, ste 26 | 247 pi² | Négociable | 26,71 $ CAD/pi²/an 2,23 $ CAD/pi²/mois 6 598 $ CAD/an 549,84 $ CAD/mois | Bureau | - | Maintenant |
| 2e étage, ste 24 | 200 pi² | Négociable | Sur demande Sur demande Sur demande Sur demande | Bureau | - | Maintenant |
| 2e étage, ste 27 | 797 pi² | 1 an | 23,39 $ CAD/pi²/an 1,95 $ CAD/pi²/mois 18 639 $ CAD/an 1 553 $ CAD/mois | Bureau | construction complète | Maintenant |
| 2e étage, ste 28 | 591 pi² | 1 an | 25,12 $ CAD/pi²/an 2,09 $ CAD/pi²/mois 14 845 $ CAD/an 1 237 $ CAD/mois | Bureau | - | Maintenant |
1er étage, ste 26
| Taille |
| 247 pi² |
| Terme |
| Négociable |
| Taux de location |
| 26,71 $ CAD/pi²/an 2,23 $ CAD/pi²/mois 6 598 $ CAD/an 549,84 $ CAD/mois |
| Utilisation de l’espace |
| Bureau |
| Aménagement |
| - |
| Disponible |
| Maintenant |
2e étage, ste 24
| Taille |
| 200 pi² |
| Terme |
| Négociable |
| Taux de location |
| Sur demande Sur demande Sur demande Sur demande |
| Utilisation de l’espace |
| Bureau |
| Aménagement |
| - |
| Disponible |
| Maintenant |
2e étage, ste 27
| Taille |
| 797 pi² |
| Terme |
| 1 an |
| Taux de location |
| 23,39 $ CAD/pi²/an 1,95 $ CAD/pi²/mois 18 639 $ CAD/an 1 553 $ CAD/mois |
| Utilisation de l’espace |
| Bureau |
| Aménagement |
| construction complète |
| Disponible |
| Maintenant |
2e étage, ste 28
| Taille |
| 591 pi² |
| Terme |
| 1 an |
| Taux de location |
| 25,12 $ CAD/pi²/an 2,09 $ CAD/pi²/mois 14 845 $ CAD/an 1 237 $ CAD/mois |
| Utilisation de l’espace |
| Bureau |
| Aménagement |
| - |
| Disponible |
| Maintenant |
1er étage, ste 26
| Taille | 247 pi² |
| Terme | Négociable |
| Taux de location | 26,71 $ CAD/pi²/an |
| Utilisation de l’espace | Bureau |
| Aménagement | - |
| Disponible | Maintenant |
Monthly rent is $400 and tenant improvements are negotialbe to qualified tenants.
- Le taux comprend les services publics, les services de bâtiment et les dépenses immobilières.
- Disposition du plan d’étage ouverte
2e étage, ste 24
| Taille | 200 pi² |
| Terme | Négociable |
| Taux de location | Sur demande |
| Utilisation de l’espace | Bureau |
| Aménagement | - |
| Disponible | Maintenant |
Monthly rent is $350
2e étage, ste 27
| Taille | 797 pi² |
| Terme | 1 an |
| Taux de location | 23,39 $ CAD/pi²/an |
| Utilisation de l’espace | Bureau |
| Aménagement | construction complète |
| Disponible | Maintenant |
Suite 27 offers private offices and a room with a sink. Monthly rent is $1,130.
- Le taux comprend les services publics, les services de bâtiment et les dépenses immobilières.
- 2 bureaux privés
- Peut être associé à un ou plusieurs espaces supplémentaires pour obtenir jusqu’à 1 388 pi² d’espace adjacent.
- Adjacent to the shared restrooms.
2e étage, ste 28
| Taille | 591 pi² |
| Terme | 1 an |
| Taux de location | 25,12 $ CAD/pi²/an |
| Utilisation de l’espace | Bureau |
| Aménagement | - |
| Disponible | Maintenant |
Monthly rent is $900.
- Le taux comprend les services publics, les services de bâtiment et les dépenses immobilières.
- Disposition du plan d’étage ouverte
- Peut être associé à un ou plusieurs espaces supplémentaires pour obtenir jusqu’à 1 388 pi² d’espace adjacent.
Aperçu de la propriété
Cet immeuble de bureaux à usage mixte de deux étages, de 6 186 pieds carrés, est idéalement situé dans le quartier résidentiel et commercial recherché de Wauwatosa. Les équipements de style de vie à l'extérieur sont exceptionnels pour les restaurants, les divertissements, le shopping, les soins médicaux, le bien-être et le conditionnement physique. Ajoutez des détaillants et des données démographiques solides de la région et c'est parfait pour votre entreprise.
- Affichage
Faits sur la propriété
Présenté par
830 N 109th St
Hmm, il semble y avoir eu une erreur lors de l’envoi de votre message. Veuillez réessayer.
Merci! Votre message a été envoyé.





