Votre courriel a été envoyé.
8415 FM 1960 Bypass Rd W
Humble, TX 77338
Terrain À vendre
·
8,21 AC


Certaines informations ont été traduites automatiquement.
Faits saillants de l'investissement
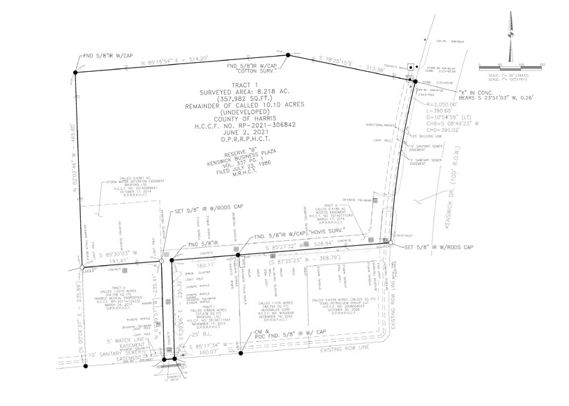
- De forme rectangulaire
- Aldine ISD
- La propriété se compose d'un terrain vacant situé le long de la ligne ouest de la promenade Kenswick.
- Situé à Harris County
- Services publics disponibles à partir de MUD 26, taux d'imposition avantageux.
Résumé de l'annonce
Faits sur la propriété Sous contrat
| Type de vente | Investissement | Sous-type de propriété | Terrain commercial |
| Nombre de lots | 1 | Utilisation proposée | Commercial |
| Type de propriété | Terrain | Taille totale du lot | 8,21 AC |
| Type de vente | Investissement |
| Nombre de lots | 1 |
| Type de propriété | Terrain |
| Sous-type de propriété | Terrain commercial |
| Utilisation proposée | Commercial |
| Taille totale du lot | 8,21 AC |
1 Lot disponible
Lot
| Taille du lot | 8,21 AC |
| Taille du lot | 8,21 AC |
• ±8,212 acres au total • De forme rectangulaire • Aucune désignation de zonage • Situé dans le comté de Harris • Aldine ISD • Services publics disponibles à partir de MUD 26, taux d'imposition avantageux. • La propriété est constituée d'un terrain vacant situé le long de la ligne ouest de la promenade Kenswick
Description
• ±8,212 acres au total • De forme rectangulaire • Aucune désignation de zonage • Situé dans le comté de Harris • Aldine ISD • Services publics disponibles à partir de MUD 26, taux d'imposition avantageux. • La propriété se compose d'un terrain vacant situé le long de la ligne ouest de la promenade Kenswick, au nord de FM 1960 Bypass Road West, avec accès à la route de contournement FM 1960 Ouest.
