Se Connecter/S’inscrire
Votre courriel a été envoyé.
8423-8451 SE Brooklyn St 8 Unité Immeuble d’appartements 2 684 234 $ CAD (335 529 $ CAD/Unité) 6,55% Taux de capitalisation Portland, OR 97266



Certaines informations ont été traduites automatiquement.
Faits saillants de l'investissement
- Stabilized 8-unit multifamily asset, 100% occupied with professional third-party management in place
- Premium amenity package includes attached garages, in-unit laundry, composite decks, and 20 off-street parking spaces
- In-place cash flow with clear rental upside through mark-to-market rent growth in strong SE Portland submarket
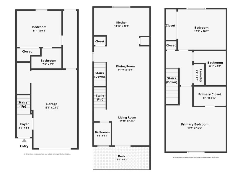
- Modern 2006 construction featuring eight large 1,528 SF townhouse-style 3BR/2.5BA units across 4 buildings
- Efficient roommate-friendly layouts with private lower-level suite, full bath, and separate exterior access
Résumé de l'annonce
Turn-key 8-plex investment opportunity in SE Portland, offering the ideal blend of strong current performance, tenant-friendly design, and future upside. Built in 2006, this well-maintained multi-family asset consists of 4 separate buildings with 8 townhouse-style units, a highly desirable layout that consistently attracts long-term tenants. Each spacious unit features 3 bedrooms, 2.5 bathrooms, 1,528 square feet, plus an attached garage, a premium feature that supports stronger rents and tenant retention. Designed for today’s rental demand, the floor plan is optimized for dual roommate or multigenerational living, with a private bedroom and full bath on the garage level offering both interior and exterior access, ideal for privacy, guest space, home office use, or shared living arrangements. The main living spaces are bright and functional, and every unit includes a spacious low-maintenance composite deck, giving tenants valuable outdoor living space without added upkeep concerns. The property offers ample parking with 20 off-street spaces in addition to the attached garages, a rare and valuable amenity in this close-in SE Portland location. Each residence also includes its own washer and dryer, further enhancing convenience and long-term tenant appeal. Currently 100% occupied and professionally managed, this is a true stabilized, income-producing asset with immediate cash flow from day one. In addition to its strong occupancy history, there remains clear room for income growth through moderate rent increases, making this an excellent opportunity for both seasoned and first-time multifamily investors seeking yield and appreciation potential. Ideally situated in a high-convenience SE Portland location near major bus lines, shopping, and everyday services, the property checks the boxes for accessibility, lifestyle, and consistent rental demand. A rare opportunity to acquire a modern, low-maintenance multifamily investment with strong unit design, premium amenities.
Bilan financier (Réel - 2025) |
Annuel (CAD) | Annuel par pi² (CAD) |
|---|---|---|
| Revenu de location brut |
268 423 $
|
21,96 $
|
| Autres revenus |
14 499 $
|
1,19 $
|
| Perte due à l’inoccupation |
13 421 $
|
1,10 $
|
| Revenu brut effectif |
269 501 $
|
22,05 $
|
| Taxes |
45 050 $
|
3,69 $
|
| Dépenses d’exploitation |
48 675 $
|
3,98 $
|
| Total des dépenses |
93 725 $
|
7,67 $
|
| Revenu net d’exploitation |
175 776 $
|
14,38 $
|
Bilan financier (Réel - 2025)
| Revenu de location brut (CAD) | |
|---|---|
| Annuel | 268 423 $ |
| Annuel par pi² | 21,96 $ |
| Autres revenus (CAD) | |
|---|---|
| Annuel | 14 499 $ |
| Annuel par pi² | 1,19 $ |
| Perte due à l’inoccupation (CAD) | |
|---|---|
| Annuel | 13 421 $ |
| Annuel par pi² | 1,10 $ |
| Revenu brut effectif (CAD) | |
|---|---|
| Annuel | 269 501 $ |
| Annuel par pi² | 22,05 $ |
| Taxes (CAD) | |
|---|---|
| Annuel | 45 050 $ |
| Annuel par pi² | 3,69 $ |
| Dépenses d’exploitation (CAD) | |
|---|---|
| Annuel | 48 675 $ |
| Annuel par pi² | 3,98 $ |
| Total des dépenses (CAD) | |
|---|---|
| Annuel | 93 725 $ |
| Annuel par pi² | 7,67 $ |
| Revenu net d’exploitation (CAD) | |
|---|---|
| Annuel | 175 776 $ |
| Annuel par pi² | 14,38 $ |
Faits sur la propriété
| Prix | 2 684 234 $ CAD | Style d’appartement | Maison en ville |
| Prix par unité | 335 529 $ CAD | Classe d’immeuble | B |
| Type de vente | Investissement | Taille du lot | 0,47 AC |
| Taux de capitalisation | 6,55% | Taille du bâtiment | 12 224 pi² |
| Condition de vente | Ventes de portefeuille | Occupation moyenne | 100% |
| Multiplicateur du loyer brut | 9.57 | Nombre d’étages | 3 |
| Nombre d’unités | 8 | Année de construction | 2006 |
| Type de propriété | Immeuble residentiel | Ratio de stationnement | 2,29/1 000 pi² |
| Sous-type de propriété | Appartement | ||
| Zonage | R3 | ||
| Prix | 2 684 234 $ CAD |
| Prix par unité | 335 529 $ CAD |
| Type de vente | Investissement |
| Taux de capitalisation | 6,55% |
| Condition de vente | Ventes de portefeuille |
| Multiplicateur du loyer brut | 9.57 |
| Nombre d’unités | 8 |
| Type de propriété | Immeuble residentiel |
| Sous-type de propriété | Appartement |
| Style d’appartement | Maison en ville |
| Classe d’immeuble | B |
| Taille du lot | 0,47 AC |
| Taille du bâtiment | 12 224 pi² |
| Occupation moyenne | 100% |
| Nombre d’étages | 3 |
| Année de construction | 2006 |
| Ratio de stationnement | 2,29/1 000 pi² |
| Zonage | R3 |
Commodités
Commodités des unités
- Accessible aux fauteuils roulants (chambres)
Unité renseignements sur le mélange
| Description | Nombre d’unités | Loyer moyen/mois | pi² |
|---|---|---|---|
| 3+2.5 | 8 | 2 753 $ CAD | 1 528 |
1 1
Moyennement praticable à pied
60/100
Moyennement facile d’accès en voiture
70/100
Transports en commun relativement accessibles
50/100
Moyennement praticable en vélo
60/100
Impôts fonciers
| Numéro de lot | R116844 | Évaluation totale | 1 671 947 $ CAD |
| Évaluation du terrain | 0 $ CAD | Impôts annuels | 45 050 $ CAD (3,69 $ CAD/pi²) |
| Évaluation des bâtiments | 0 $ CAD | Année d’imposition | 2025 |
Impôts fonciers
Numéro de lot
R116844
Évaluation du terrain
0 $ CAD
Évaluation des bâtiments
0 $ CAD
Évaluation totale
1 671 947 $ CAD
Impôts annuels
45 050 $ CAD (3,69 $ CAD/pi²)
Année d’imposition
2025
1 de 42
Vidéos
Visite extérieure 3D Matterport
Visite 3D Matterport
Photos
Vue depuis la rue
Rue
Carte
1 de 1
Présenté par
Northwest Realty Source
8423-8451 SE Brooklyn St
Vous êtes déjà membre? Connectez-vous
Hmm, il semble y avoir eu une erreur lors de l’envoi de votre message. Veuillez réessayer.
Merci! Votre message a été envoyé.
