Votre courriel a été envoyé.
Flagship Retail / Restaurant with Rooftop 8472 Melrose Pl 504–5 516 pi² d'espace disponible • Commerce de détail • West Hollywood, CA 90069



Certaines informations ont été traduites automatiquement.
Disponibilité des espaces (3)
Afficher les taux de location en
- Espace
- Taille
- Terme
- Taux de location
- Type de loyer
| Espace | Taille | Terme | Taux de location | Type de loyer | ||
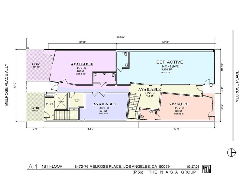
| 1er étage, ste 8472-D | 504 pi² | Négociable | Sur demande Sur demande Sur demande Sur demande | À déterminer | ||
| 1er étage, ste 8472-E | 802 pi² | Négociable | Sur demande Sur demande Sur demande Sur demande | À déterminer | ||
| 2e étage, ste 8472-C | 4 210 pi² | Négociable | Sur demande Sur demande Sur demande Sur demande | À déterminer |
1er étage, ste 8472-D
1er étage, ste 8472-E
2e étage, ste 8472-C
4,210 SF Interior with approx. 3,431 SF of Rooftop Patio overall an approx. total of 7,641 SF.
Types de loyers
Le type et le montant du loyer que le locataire (preneur) est tenu de payer au propriétaire (bailleur) sur la durée du bail sont négociés avant la signature du bail par les deux parties. Le type de loyer varie selon les services fournis. Par exemple, le prix d’un loyer hypernet est habituellement inférieur à celui d’un bail à service complet puisque le locataire est tenu d’assumer des dépenses additionnelles par rapport au loyer de base. Contactez le courtier inscripteur pour tout connaître sur les frais connexes et additionnels associés à chaque type de loyer.
1. Service complet: Un taux de location qui comprend des services standards liés à l’immeuble fournis par le propriétaire dans le cadre d’une location annuelle de base.
2. Loyer supernet: Le locataire paie seulement deux des frais de l’immeuble. Le propriétaire et le locataire déterminent ces frais spécifiques avant la signature du bail.
3. Loyer hypernet: Un bail en vertu duquel le locataire est responsable de tous les frais liés à sa part proportionnelle d’occupation de l’immeuble.
4. Brut modifié: Le loyer brut modifié désigne un type général de taux de location dans lequel le locataire est habituellement responsable de sa part proportionnelle d’un ou de plusieurs frais. C’est le propriétaire qui paie les frais restants. Considérez les structures tarifaires courantes suivantes applicables aux loyers bruts modifiés: 4. Plus les services: Un type de bail brut modifié suivant lequel le locataire est responsable de sa part proportionnelle des coûts des services publics, en plus du loyer. 4. Plus le nettoyage: Un type de bail brut modifié suivant lequel le locataire est responsable de sa part proportionnelle des coûts de nettoyage, en plus du loyer. 4. Plus l'électricité: Un type de bail brut modifié suivant lequel le locataire est responsable de sa part proportionnelle des coûts d’électricité, en plus du loyer. 4. Plus l’électricité et le nettoyage: Un type de bail brut modifié dans lequel le locataire est responsable de sa part proportionnelle des coûts d’électricité et de nettoyage, en plus du loyer. 4. Plus les services publics et le nettoyage: Un type de bail brut modifié dans lequel le locataire est responsable de sa part proportionnelle des coûts des services publics et de nettoyage, en plus du loyer. 4. Bail industriel brut: Un type de bail brut modifié dans lequel le locataire paie un ou plusieurs des frais, en plus du loyer. Le propriétaire et le locataire déterminent ces frais spécifiques avant la signature du bail.
5. L’électricité est à la charge du locataire: Le propriétaire paie pour tous les services et le locataire est responsable de sa propre utilisation de l’éclairage et des prises électriques dans l’espace qu’il occupe.
6. Négociable ou sur demande: Cette option est utilisée lorsque le contact de location ne précise pas le type de loyer ou de service.
7. À déterminer: À déterminer ; utilisé pour les immeubles dont le type de services ou de loyer n’est pas connu, souvent quand l’immeuble n’est pas encore construit.
Faits sur la propriété
| Superficie totale disponible | 5 516 pi² | Superficie commerciale brute | 8 271 pi² |
| Type de propriété | Commerce de détail | Année de construction | 1925 |
| Sous-type de propriété | Bien à usage mixte |
| Superficie totale disponible | 5 516 pi² |
| Type de propriété | Commerce de détail |
| Sous-type de propriété | Bien à usage mixte |
| Superficie commerciale brute | 8 271 pi² |
| Année de construction | 1925 |
À propos de la propriété
Located at 8472 Melrose Place in the heart of West Hollywood, this two-story ±11,115 SF building offers a rare opportunity to lease a flexible space in one of Los Angeles’ most iconic and fashion-forward districts. Surrounded by renowned brands such as The Row, Marni, Bottega Veneta, Monique Lhuillier, Frame, and Chloé, the property sits on a charming, tree-lined street known for its curated retail and elevated foot traffic. The space features a full kitchen buildout —ideal for elevated food and beverage concepts—but can easily be reconfigured for luxury retail, showroom, beauty, or wellness use. Multiple patios and a spacious rooftop terrace enhance the potential for experiential activations in this highly sought-after and unique Melrose Place location.
- Accès 24 heures
- Ligne d'autobus
- Affichage
- CVCA contrôlé par le locataire
- Espace d'entreposage
- Climatisation
Principaux détaillants à proximité
Présenté par
The Nasa Group
Flagship Retail / Restaurant with Rooftop | 8472 Melrose Pl
Hmm, il semble y avoir eu une erreur lors de l’envoi de votre message. Veuillez réessayer.
Merci! Votre message a été envoyé.
