Votre courriel a été envoyé.
Solstice Point 86-88 Delancey St 1 763 pi² d'espace disponible • Commerce de détail • Londres NW1 7SA



Certaines informations ont été traduites automatiquement.
Faits saillants
- Prominent frontage.
- Substantial floor to ceiling height.
- Ground floor flagship opportunity.
- Large outside seating area possible.
Disponibilité de l’espace (1)
Afficher les taux de location en
- Espace
- Taille
- Terme
- Taux de location
- Type
| Espace | Taille | Terme | Taux de location | Type de loyer | ||
| RDC | 1 763 pi² | Négociable | 94,57 $ CAD/pi²/an 7,88 $ CAD/pi²/mois 166 734 $ CAD/an 13 895 $ CAD/mois | Réparation complète et assurance |
RDC
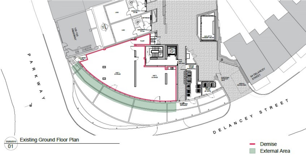
The unit provides a highly prominent 1,763 sq ft ground floor Class-E unit positioned at the top of Parkway available for rent for £90,000 per annum. Formerly occupied by a fitness studio, the unit benefits from exceptional visibility at one of Camden’s busiest gateway locations, linking Camden High Street with Parkway and enjoying strong consistent footfall. The unit features generous ceiling heights throughout and a flexible open-plan layout, offering excellent branding and fit out potential. The wide frontage provides the opportunity for substantial outside seating, making the unit particularly well suited to F&B, leisure, experiential retail or lifestyle occupiers seeking a standout Camden presence.
- Classe d’utilisation : E
- Partiellement construit comme Espace de commerce de détail standard
- Espace en excellent état
- Hauts plafonds
- Cote de rendement énergétique - A
- Installations WC abandonnées
- Open plan
Types de services
Le type de service et le montant du loyer que le locataire (preneur) est tenu de payer au propriétaire (bailleur) sur la durée du bail sont négociés avant la signature du bail par les deux parties. Le type de service varie selon les services fournis. Contactez le courtier inscripteur pour tout connaître sur les frais connexes et additionnels associés à chaque type de service.
1. Réparations et assurances complètes: Toutes les obligations de réparer et d’assurer la propriété (ou de sa part de la propriété) à l’interne comme à l’externe.
2. Réparations internes seulement: Le locataire est responsable des réparations internes seulement. Le propriétaire est responsable des réparations structurelles et externes.
3. Réparations et assurances internes: Le locataire est responsable des réparations internes et des assurances pour les parties internes de la propriété seulement. Le propriétaire est responsable des réparations structurelles et externes.
4. Négociable ou à déterminer: Cette option est utilisée lorsque le contact de location ne fournit pas le type de service.
Sélectionner des locataires à Solstice Point
- Locataire
- Description
- Emplacements GB
- Portée
- Rumble
- Entraînement physique
- 3
- International
| Locataire | Description | Emplacements GB | Portée |
| Rumble | Entraînement physique | 3 | International |
Faits sur la propriété
| Superficie totale disponible | 1 763 pi² | Superficie commerciale brute | 4 777 pi² |
| Type de propriété | Commerce de détail | Année de construction | 2017 |
| Sous-type de propriété | Commerce pied immeuble |
| Superficie totale disponible | 1 763 pi² |
| Type de propriété | Commerce de détail |
| Sous-type de propriété | Commerce pied immeuble |
| Superficie commerciale brute | 4 777 pi² |
| Année de construction | 2017 |
À propos de la propriété
The property is prominently positioned at the top of Parkway, directly opposite the iconic Foxtons flagship, and moments from Camden High Street. This stretch of Camden benefits from a diverse mixed use environment, combining retail, food & beverage, leisure, office, residential and cultural uses, which drives strong footfall throughout the day and into the evening
- Accès 24 heures
- Espace d'entreposage
Principaux détaillants à proximité
Présenté par
Solstice Point | 86-88 Delancey St
Hmm, il semble y avoir eu une erreur lors de l’envoi de votre message. Veuillez réessayer.
Merci! Votre message a été envoyé.


