Se Connecter/S’inscrire
Votre courriel a été envoyé.
861 N Nellis Blvd
Las Vegas, NV 89110
Friendly Bear Plaza · Commerce de détail Propriété À louer
·
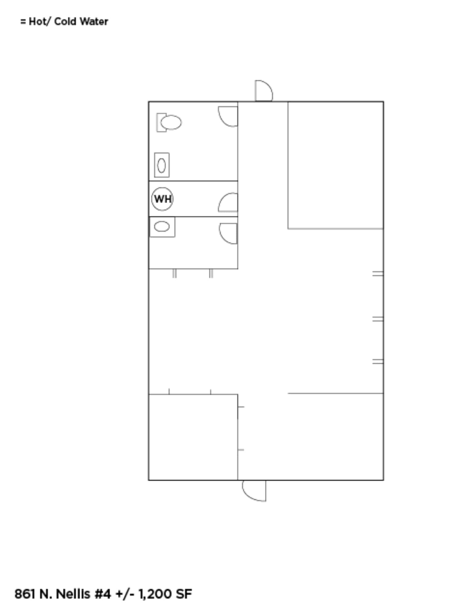
4 500 pi²


Certaines informations ont été traduites automatiquement.
Faits saillants
- LE DISPENSAIRE SE LÈVE MAINTENANT OUVERT !
- Proximité de la base aérienne de Nellis et du manoir Sunrise
- Nombre élevé de circulation sur le boulevard N. Nellis - 38 000 VPD
Faits sur la propriété
| Superficie totale disponible | 4 500 pi² | Façade | 164’ le Nellis Blvd |
| Type de centre | Centre commercial à ciel ouvert | Superficie commerciale brute | 21 200 pi² |
| Stationnement | 75 places | Superficie totale du terrain | 3,72 AC |
| Magasins | 1 | Année de construction | 1998 |
| Propriétés du centre | 2 |
| Superficie totale disponible | 4 500 pi² |
| Type de centre | Centre commercial à ciel ouvert |
| Stationnement | 75 places |
| Magasins | 1 |
| Propriétés du centre | 2 |
| Façade | 164’ le Nellis Blvd |
| Superficie commerciale brute | 21 200 pi² |
| Superficie totale du terrain | 3,72 AC |
| Année de construction | 1998 |
À propos de la propriété
Friendly Bear Plaza est un centre de bande de quartier achalandé situé dans une zone commerciale multiculturelle densément peuplée du boulevard N. Nellis et de l'avenue E. Washington. Ce centre jouit d'une grande visibilité et bénéficie du nombre élevé de trafic du boulevard N. Nellis (38 000 VPD). Joignez-vous à Tacos Los Toritos et au Studio Barbershop dans ce centre de quartier achalandé. RISE DISTRIBUNAIRE Maintenant ouvert !
- Ligne d'autobus
- Enseigne sur pylône
1 de 5
Vidéos
Visite extérieure 3D Matterport
Visite 3D Matterport
Photos
Vue depuis la rue
Rue
Carte
