Votre courriel a été envoyé.
Certaines informations ont été traduites automatiquement.
FAITS SAILLANTS
- Espace de distribution rare de grand format dans la zone industrielle de Lake City
- Bâtiment autonome avec plus de 90 000 pieds carrés d'espace d'entrepôt
- Situé dans le parc d'affaires Lake City à Burnaby, avec un accès direct à l'autoroute.
- Zonage industriel lourd offrant une flexibilité pour une variété de besoins commerciaux.
- Accès exceptionnel au réseau portuaire et aux principales artères de la région métropolitaine de Vancouver.
- À distance de marche du SkyTrain et à quelques minutes des principaux ports et de l'aéroport.
CARACTÉRISTIQUES
TOUS LES ESPACES DISPONIBLES(1)
Afficher les taux de location en
- ESPACE
- TAILLE
- TERME
- TAUX DE LOCATION
- UTILISATION DE L’ESPACE
- ÉTAT
- DISPONIBLE
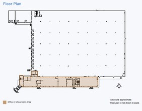
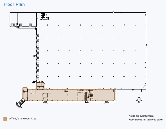
Cette propriété offre une occasion rare de louer une installation industrielle multi-locataires située sur environ 4,50 acres dans le très prisé parc d'affaires Lake City à Burnaby. Le site entièrement clôturé et sécurisé garantit une sécurité accrue et une fonctionnalité optimale, complétée par une configuration de chargement multi-quais idéale pour des opérations efficaces. Stratégiquement située avec une excellente connectivité régionale, la propriété est zonée pour des usages industriels polyvalents et permet une large gamme d'activités, y compris le stockage extérieur, la vente et le stockage de machines et d'équipements lourds, la fabrication, la transformation, le stationnement et le chargement.
- Le taux de location ne comprend pas les services publics, les services de bâtiment ou les dépenses immobilières.
- 13 quais de chargement
- 1 accès plain-pied
| Espace | Taille | Terme | Taux de location | Utilisation de l’espace | État | Disponible |
| 1er étage | 100 510 pi² | Négociable | 25,00 $ CAD/pi²/an 2,08 $ CAD/pi²/mois 2 512 750 $ CAD/an 209 396 $ CAD/mois | Flex | espace cloisonné | 2026-06-01 |
1er étage
| Taille |
| 100 510 pi² |
| Terme |
| Négociable |
| Taux de location |
| 25,00 $ CAD/pi²/an 2,08 $ CAD/pi²/mois 2 512 750 $ CAD/an 209 396 $ CAD/mois |
| Utilisation de l’espace |
| Flex |
| État |
| espace cloisonné |
| Disponible |
| 2026-06-01 |
1er étage
| Taille | 100 510 pi² |
| Terme | Négociable |
| Taux de location | 25,00 $ CAD/pi²/an |
| Utilisation de l’espace | Flex |
| État | espace cloisonné |
| Disponible | 2026-06-01 |
Cette propriété offre une occasion rare de louer une installation industrielle multi-locataires située sur environ 4,50 acres dans le très prisé parc d'affaires Lake City à Burnaby. Le site entièrement clôturé et sécurisé garantit une sécurité accrue et une fonctionnalité optimale, complétée par une configuration de chargement multi-quais idéale pour des opérations efficaces. Stratégiquement située avec une excellente connectivité régionale, la propriété est zonée pour des usages industriels polyvalents et permet une large gamme d'activités, y compris le stockage extérieur, la vente et le stockage de machines et d'équipements lourds, la fabrication, la transformation, le stationnement et le chargement.
- Le taux de location ne comprend pas les services publics, les services de bâtiment ou les dépenses immobilières.
- 1 accès plain-pied
- 13 quais de chargement
APERÇU DE LA PROPRIÉTÉ
Situé à l'angle de Eastlake Drive et Gaglardi Way, la propriété se trouve au cœur du Lake City Business Park de Burnaby - l'un des pôles industriels les plus établis de Metro Vancouver pour la distribution d'importation et d'exportation. Cet emplacement de choix offre une excellente connectivité régionale avec un accès direct à la Lougheed Highway (Autoroute 7), à la Trans-Canada Highway (Autoroute 1) et à l'Autoroute 7A, garantissant un transport efficace à travers Metro Vancouver. La zone offre également un accès pratique aux commodités publiques et au transport en commun, avec la station de SkyTrain Production Way–University à seulement 10 minutes de marche.
FAITS SUR L’INSTALLATION ENTREPÔT
SÉLECTIONNER DES LOCATAIRES
- ÉTAGE
- NOM DU LOCATAIRE
- SECTEUR
- 2ᵉ
- CAMS Software
- Services professionnels, scientifiques et techniques
Présenté par
8651 Eastlake Dr
Hmm, il semble y avoir eu une erreur lors de l’envoi de votre message. Veuillez réessayer.
Merci! Votre message a été envoyé.





