Votre courriel a été envoyé.
8751 Collin McKinney Pky - Southern Hills Office Park II Bldg 7 Unité de condo • Bureau • 4 500 pi² • À vendre 2 515 075 $ CAD • McKinney, TX 75070



Certaines informations ont été traduites automatiquement.
Faits saillants de l'investissement
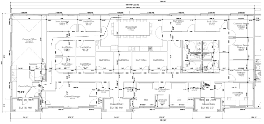
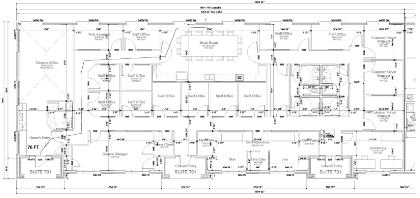
- Owner/User Opportunity: Vacant and move in ready, offering 4,500 square feet of professionally designed office space with high end interior finishes.
- Approximately 20 private offices plus an executive suite with private restroom and coffee bar, ideal for medical or professional users.
- Professional Office Park Setting: Located within an established, well-maintained office environment that enhances business image.
- Newer Construction Built in 2019: Modern design and quality finishes with limited near-term capital requirements.
- Excellent Accessibility: Convenient access to Sam Rayburn Tollway, Dallas North Tollway, and US Highway 75 for easy regional connectivity.
- Strong Surrounding Demographics: Affluent and growing residential base supports long term demand for professional services.
Résumé de l'annonce
Southern Hills Office Park (The “Property”) is prominently located along Collin McKinney Parkway in McKinney, Texas, offering strong visibility and convenient access to Sam Rayburn Tollway (SH-121), Dallas North Tollway, and U.S. Highway 75. The Property benefits from excellent ingress and egress and is situated within a well-established professional office park surrounded by dense residential and retail development. Comprising approximately 4,500 square feet within a single-story office condo building, the Property was built in 2019 and features modern construction with high-quality finishes. The interior layout consists of approximately 20 private offices in a combination of small, mid-size, and executive configurations. A large executive suite includes a private restroom, coffee bar, and open-concept seating area, creating flexibility for medical or professional office users. This offering presents an exceptional opportunity for an owner/occupant to acquire a well-located, newer construction office asset in one of North Texas’s fastest-growing submarkets. With immediate availability, a buyer can control occupancy costs, build long-term equity, and operate within a professional and highly desirable business environment.
1 Unité disponible
Unité 701
| Taille de l’unité | 4 500 pi² | Utilisation du condo | Bureau |
| Prix | 2 515 075 $ CAD | Type de vente | Investissement ou propriétaire utilisateur |
| Prix par pi² | 558,91 $ CAD |
| Taille de l’unité | 4 500 pi² |
| Prix | 2 515 075 $ CAD |
| Prix par pi² | 558,91 $ CAD |
| Utilisation du condo | Bureau |
| Type de vente | Investissement ou propriétaire utilisateur |
Floor Plan
Faits sur la propriété
| Taille totale du bâtiment | 4 500 pi² | Superficie de plancher typique | 4 500 pi² |
| Type de propriété | Bureau (Condo) | Année de construction | 2018 |
| Sous-type de propriété | Médical | Taille du lot | 4,70 AC |
| Classe d’immeuble | B | Ratio de stationnement | 6/1 000 pi² |
| Planchers | 1 | ||
| Zonage | C - Commerciale | ||
| Taille totale du bâtiment | 4 500 pi² |
| Type de propriété | Bureau (Condo) |
| Sous-type de propriété | Médical |
| Classe d’immeuble | B |
| Planchers | 1 |
| Superficie de plancher typique | 4 500 pi² |
| Année de construction | 2018 |
| Taille du lot | 4,70 AC |
| Ratio de stationnement | 6/1 000 pi² |
| Zonage | C - Commerciale |
Commodités
- Accès 24 heures
- Affichage
- Planchers de bois franc
Présenté par
8751 Collin McKinney Pky - Southern Hills Office Park II Bldg 7
Hmm, il semble y avoir eu une erreur lors de l’envoi de votre message. Veuillez réessayer.
Merci! Votre message a été envoyé.

