Votre courriel a été envoyé.
GAMA Center 8801 Research Blvd 2 600–5 400 pi² d'espace disponible • Commerce de détail • Austin, TX 78758



Certaines informations ont été traduites automatiquement.
FAITS SAILLANTS
- GAMA Center is anchored by a heavily trafficked convenience store wholesaler and is home to a diverse tenant mix of distribution, retail, and office.
- Resolut is pleased to present second-generation retail and office with abundant parking with GAMA Center.
- Excellent location near residential neighborhoods, industrial, and retail off Highway 183 with 750 feet of direct frontage.
- Encircled by four apartment communities attracting a powerful consumer demand with a robust annual spending power.
DISPONIBILITÉ DES ESPACES (2)
Afficher les taux de location en
- ESPACE
- TAILLE
- TERME
- TAUX DE LOCATION
- TYPE DE LOYER
| Espace | Taille | Terme | Taux de location | Type de loyer | ||
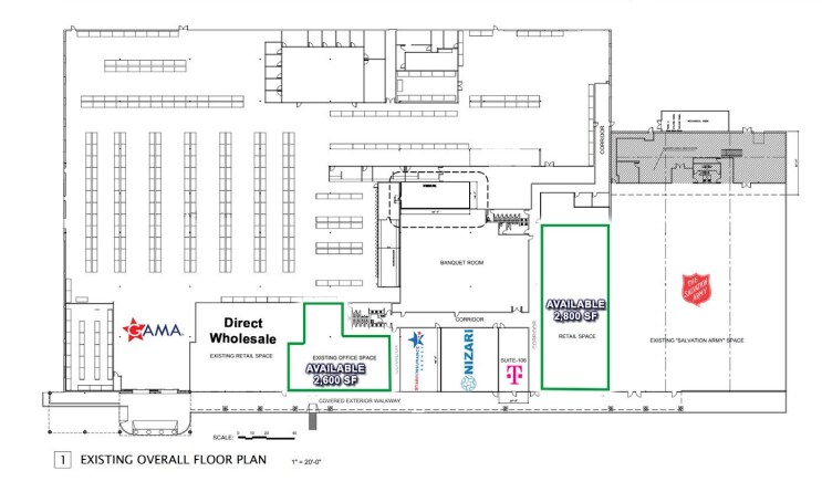
| 1er étage, ste 105 | 2 800 pi² | Négociable | 44,35 $ CAD/pi²/an 3,70 $ CAD/pi²/mois 124 168 $ CAD/an 10 347 $ CAD/mois | Loyer hypernet | ||
| 1er étage, ste 112 | 2 600 pi² | Négociable | 44,35 $ CAD/pi²/an 3,70 $ CAD/pi²/mois 115 299 $ CAD/an 9 608 $ CAD/mois | Loyer hypernet |
1er étage, ste 105
- Le taux de location ne comprend pas les services publics, les services de bâtiment ou les dépenses immobilières.
1er étage, ste 112
- Le taux de location ne comprend pas les services publics, les services de bâtiment ou les dépenses immobilières.
Types de loyers
Le type et le montant du loyer que le locataire (preneur) est tenu de payer au propriétaire (bailleur) sur la durée du bail sont négociés avant la signature du bail par les deux parties. Le type de loyer varie selon les services fournis. Par exemple, le prix d’un loyer hypernet est habituellement inférieur à celui d’un bail à service complet puisque le locataire est tenu d’assumer des dépenses additionnelles par rapport au loyer de base. Contactez le courtier inscripteur pour tout connaître sur les frais connexes et additionnels associés à chaque type de loyer.
1. Service complet: Un taux de location qui comprend des services standards liés à l’immeuble fournis par le propriétaire dans le cadre d’une location annuelle de base.
2. Loyer supernet: Le locataire paie seulement deux des frais de l’immeuble. Le propriétaire et le locataire déterminent ces frais spécifiques avant la signature du bail.
3. Loyer hypernet: Un bail en vertu duquel le locataire est responsable de tous les frais liés à sa part proportionnelle d’occupation de l’immeuble.
4. Brut modifié: Le loyer brut modifié désigne un type général de taux de location dans lequel le locataire est habituellement responsable de sa part proportionnelle d’un ou de plusieurs frais. C’est le propriétaire qui paie les frais restants. Considérez les structures tarifaires courantes suivantes applicables aux loyers bruts modifiés: 4. Plus les services: Un type de bail brut modifié suivant lequel le locataire est responsable de sa part proportionnelle des coûts des services publics, en plus du loyer. 4. Plus le nettoyage: Un type de bail brut modifié suivant lequel le locataire est responsable de sa part proportionnelle des coûts de nettoyage, en plus du loyer. 4. Plus l'électricité: Un type de bail brut modifié suivant lequel le locataire est responsable de sa part proportionnelle des coûts d’électricité, en plus du loyer. 4. Plus l’électricité et le nettoyage: Un type de bail brut modifié dans lequel le locataire est responsable de sa part proportionnelle des coûts d’électricité et de nettoyage, en plus du loyer. 4. Plus les services publics et le nettoyage: Un type de bail brut modifié dans lequel le locataire est responsable de sa part proportionnelle des coûts des services publics et de nettoyage, en plus du loyer. 4. Bail industriel brut: Un type de bail brut modifié dans lequel le locataire paie un ou plusieurs des frais, en plus du loyer. Le propriétaire et le locataire déterminent ces frais spécifiques avant la signature du bail.
5. L’électricité est à la charge du locataire: Le propriétaire paie pour tous les services et le locataire est responsable de sa propre utilisation de l’éclairage et des prises électriques dans l’espace qu’il occupe.
6. Négociable ou sur demande: Cette option est utilisée lorsque le contact de location ne précise pas le type de loyer ou de service.
7. À déterminer: À déterminer ; utilisé pour les immeubles dont le type de services ou de loyer n’est pas connu, souvent quand l’immeuble n’est pas encore construit.
PLAN DE SITE
SÉLECTIONNER DES LOCATAIRES À GAMA CENTER
- LOCATAIRE
- DESCRIPTION
- EMPLACEMENTS US
- PORTÉE
- Apex Tax Services
- Comptabilité / Préparation de l'impôt
- 1
- Local
- Greater Austin Merchants Cooperative Association
- Autres détaillants
- 1
- Local
- Metro By T-mobile
- Télécoms sans fil
- 10 957
- National
- Nizari Progressive Federal Credit Union
- Banque
- 5
- Local
- Starr Insurance Agency
- Assurance
- 1
- -
- The Salvation Army
- Autres services
- 2 841
- International
| LOCATAIRE | DESCRIPTION | EMPLACEMENTS US | PORTÉE |
| Apex Tax Services | Comptabilité / Préparation de l'impôt | 1 | Local |
| Greater Austin Merchants Cooperative Association | Autres détaillants | 1 | Local |
| Metro By T-mobile | Télécoms sans fil | 10 957 | National |
| Nizari Progressive Federal Credit Union | Banque | 5 | Local |
| Starr Insurance Agency | Assurance | 1 | - |
| The Salvation Army | Autres services | 2 841 | International |
FAITS SUR LA PROPRIÉTÉ
| Superficie totale disponible | 5 400 pi² | Superficie commerciale brute | 124 010 pi² |
| Type de propriété | Commerce de détail | Année de construction/rénovation | 1971/2009 |
| Sous-type de propriété | Boutique | Ratio de stationnement | 4/1 000 pi² |
| Superficie totale disponible | 5 400 pi² |
| Type de propriété | Commerce de détail |
| Sous-type de propriété | Boutique |
| Superficie commerciale brute | 124 010 pi² |
| Année de construction/rénovation | 1971/2009 |
| Ratio de stationnement | 4/1 000 pi² |
À PROPOS DE LA PROPRIÉTÉ
Resolut proudly presents in-line retail storefront suites with dedicated office space within Austin's GAMA Center off Highway 183. The center is anchored by Direct Wholesale and is also home to The Salvation Army, T-Mobile, Starr Insurance Agency, Nizari, and more. There are multiple points of ingress/ egress, enabling easy accessibility off the Highway. Prime exposure is built in, with direct frontage that exposes the center to more than 161,300 daily passing vehicles. Inquire today for more information about occupying in-line space.
- Affichage
PRINCIPAUX DÉTAILLANTS À PROXIMITÉ
Présenté par
GAMA Center | 8801 Research Blvd
Hmm, il semble y avoir eu une erreur lors de l’envoi de votre message. Veuillez réessayer.
Merci! Votre message a été envoyé.

