Se Connecter/S’inscrire
Votre courriel a été envoyé.
Inler Business Park 8807 County 6820 rd 10 800 pi² Vacant Local d'activités Immeuble Lubbock, TX 79407 1 642 410 $ CAD (152,08 $ CAD/pi²) 8% Taux de capitalisation



Certaines informations ont été traduites automatiquement.
FAITS SAILLANTS DE L'INVESTISSEMENT
- New 2024 construction
- 10’x14’ overhead door
- Efficient 1,800 SF layout
- Storefront office entry
- Shared truck well access
RÉSUMÉ DE L'ANNONCE
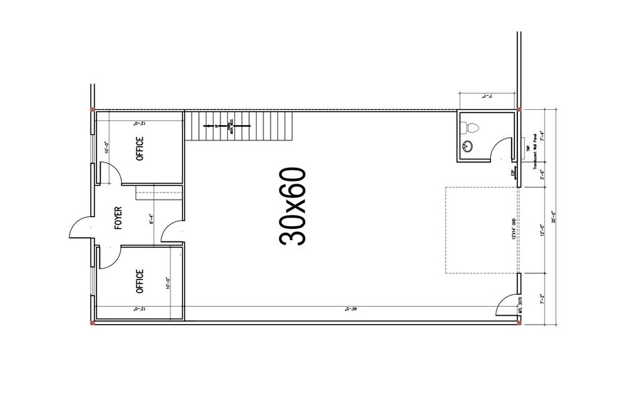
Newly built in 2024, this 1,800 SF storefront office warehouse offers a clean, professional façade with functional warehouse access. Each unit includes a 10’x14’ overhead door, private office area, and access to a shared truck well for convenient loading and deliveries. Ideal for light industrial, service, or supply businesses seeking modern construction with a professional image. Multiple units are available, offering flexibility for users and attractive lease-up potential for investors.
FAITS SUR LA PROPRIÉTÉ
| Prix | 1 642 410 $ CAD | Taille du lot | 1,25 AC |
| Prix par pi² | 152,08 $ CAD | Aire du bâtiment louable | 10 800 pi² |
| Type de vente | Investissement ou propriétaire utilisateur | Nombre d’étages | 1 |
| Taux de capitalisation | 8% | Année de construction | 2024 |
| Type de propriété | Local d'activités | Effacer hauteur du plafond | 16’ |
| Sous-type de propriété | Distribution légère | Nbre de quais à portes élevées/de chargement | 1 |
| Classe d’immeuble | C | Rues transversales | FM 179 & 34th |
| Zonage | Out side City Limits - À l'extérieur des limites de la ville | ||
| Prix | 1 642 410 $ CAD |
| Prix par pi² | 152,08 $ CAD |
| Type de vente | Investissement ou propriétaire utilisateur |
| Taux de capitalisation | 8% |
| Type de propriété | Local d'activités |
| Sous-type de propriété | Distribution légère |
| Classe d’immeuble | C |
| Taille du lot | 1,25 AC |
| Aire du bâtiment louable | 10 800 pi² |
| Nombre d’étages | 1 |
| Année de construction | 2024 |
| Effacer hauteur du plafond | 16’ |
| Nbre de quais à portes élevées/de chargement | 1 |
| Rues transversales | FM 179 & 34th |
| Zonage | Out side City Limits - À l'extérieur des limites de la ville |
SERVICES PUBLICS
- Eau - Puits
- Égout - Champ septique
- Chauffage - Électricité
DISPONIBILITÉ DES ESPACES
- ESPACE
- TAILLE
- UTILISATION DE L’ESPACE
- ÉTAT
- DISPONIBLE
Porte basculante 12x14 Accès au quai de chargement
Porte basculante 12x14 Accès au quai de chargement
2 bureaux Porte basculante 12x14 Accès au quai de chargement
| Espace | Taille | Utilisation de l’espace | État | Disponible |
| 1er Ét. - Unit 1 | 1 800 pi² | Flex | construction complète | Maintenant |
| 1er Ét. - Unit 3 | 1 800 pi² | Flex | construction complète | Maintenant |
| 1er Ét. - Unit 4 | 1 800 pi² | Industriel | - | Maintenant |
1er Ét. - Unit 1
| Taille |
| 1 800 pi² |
| Utilisation de l’espace |
| Flex |
| État |
| construction complète |
| Disponible |
| Maintenant |
1er Ét. - Unit 3
| Taille |
| 1 800 pi² |
| Utilisation de l’espace |
| Flex |
| État |
| construction complète |
| Disponible |
| Maintenant |
1er Ét. - Unit 4
| Taille |
| 1 800 pi² |
| Utilisation de l’espace |
| Industriel |
| État |
| - |
| Disponible |
| Maintenant |
1er Ét. - Unit 1
| Taille | 1 800 pi² |
| Utilisation de l’espace | Flex |
| État | construction complète |
| Disponible | Maintenant |
Porte basculante 12x14 Accès au quai de chargement
1er Ét. - Unit 3
| Taille | 1 800 pi² |
| Utilisation de l’espace | Flex |
| État | construction complète |
| Disponible | Maintenant |
Porte basculante 12x14 Accès au quai de chargement
1er Ét. - Unit 4
| Taille | 1 800 pi² |
| Utilisation de l’espace | Industriel |
| État | - |
| Disponible | Maintenant |
2 bureaux Porte basculante 12x14 Accès au quai de chargement
1 1
Impôts fonciers
| Numéro de lot | R333420 | Évaluation des bâtiments | 820 155 $ CAD |
| Évaluation du terrain | 79 479 $ CAD | Évaluation totale | 899 634 $ CAD |
Impôts fonciers
Numéro de lot
R333420
Évaluation du terrain
79 479 $ CAD
Évaluation des bâtiments
820 155 $ CAD
Évaluation totale
899 634 $ CAD
1 de 8
VIDÉOS
VISITE EXTÉRIEURE 3D MATTERPORT
VISITE 3D MATTERPORT
PHOTOS
VUE DEPUIS LA RUE
RUE
CARTE
1 de 1
Présenté par
Inler Business Park | 8807 County 6820 rd
Vous êtes déjà membre? Connectez-vous
Hmm, il semble y avoir eu une erreur lors de l’envoi de votre message. Veuillez réessayer.
Merci! Votre message a été envoyé.
