Se Connecter/S’inscrire
Votre courriel a été envoyé.
Certaines informations ont été traduites automatiquement.
Résumé de l'annonce
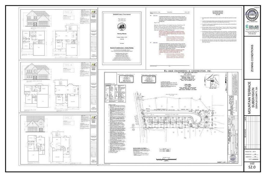
Imagine a secluded, wooded retreat where modern living meets the historic charm of Stone Mountain. This rare 2.71 acre development site in the transitioning Stone Mountain Terrace neighborhood offers a near-shovel-ready opportunity to create a premier gated community. With rezoning already secured from R75 to R60, the heavy lifting has been completed, paving the way for a refined nine home enclave that balances total privacy with neighborhood connectivity. The site is perfectly positioned for success, with high demand new construction in the immediate two mile radius consistently commanding prices between $450,000 and $500,000. Future residents will enjoy a lifestyle defined by both nature and accessibility, located just minutes from the boutique shops of Stone Mountain Village and the vast recreational trails of Stone Mountain Park. Everyday essentials are equally close, with a major retail hub featuring Publix, Walmart, and The Home Depot less than four miles away. Education is within easy reach as well, with the local elementary and middle schools situated just about a mile from the property. This offering is a meticulously prepared canvas, arriving with a comprehensive development package that includes a full survey, recorded sewer easements, and three distinct architectural home plans designed for contemporary tastes. All documentation is organized and ready for Land Disturbance Permit submission, ensuring a streamlined transition from vision to groundbreaking. In an area where buildable land is becoming a scarcity, this combined tract at 883 and 875 Mountain View Drive stands out as a strategic investment in a high growth pocket. Secure this site and lead the next wave of residential excellence in a community that perfectly blends tranquility with urban convenience.
Faits sur la propriété
| Prix | 506 042 $ CAD | Sous-type de propriété | Résidentiel |
| Type de vente | Investissement ou propriétaire utilisateur | Utilisation proposée | Développement familial unique |
| Nombre de lots | 1 | Taille totale du lot | 2,71 AC |
| Type de propriété | Terrain | ||
| Zonage | R60 - Résidences unifamiliales détachées | ||
| Prix | 506 042 $ CAD |
| Type de vente | Investissement ou propriétaire utilisateur |
| Nombre de lots | 1 |
| Type de propriété | Terrain |
| Sous-type de propriété | Résidentiel |
| Utilisation proposée | Développement familial unique |
| Taille totale du lot | 2,71 AC |
| Zonage | R60 - Résidences unifamiliales détachées |
1 Lot disponible
Lot
| Prix | 506 042 $ CAD | Taille du lot | 2,71 AC |
| Prix par AC | 186 731,21 $ CAD |
| Prix | 506 042 $ CAD |
| Prix par AC | 186 731,21 $ CAD |
| Taille du lot | 2,71 AC |
Imagine a secluded, wooded retreat where modern living meets the historic charm of Stone Mountain. This rare 2.71 acre development site in the transitioning Stone Mountain Terrace neighborhood offers a near-shovel-ready opportunity .
1 1
Assez praticable à pied
40/100
Exceptionnellement facile d’accès en voiture
100/100
Transports en commun limités
30/100
Assez praticable en vélo
30/100
Impôts fonciers
| Numéro de lot | 18-091-03-006 | Évaluation des bâtiments | 32 342 $ CAD |
| Évaluation du terrain | 108 811 $ CAD | Évaluation totale | 141 152 $ CAD |
Impôts fonciers
Numéro de lot
18-091-03-006
Évaluation du terrain
108 811 $ CAD
Évaluation des bâtiments
32 342 $ CAD
Évaluation totale
141 152 $ CAD
1 de 12
Vidéos
Visite extérieure 3D Matterport
Visite 3D Matterport
Photos
Vue depuis la rue
Rue
Carte
1 de 1
Présenté par
883 Mountain View Dr
Vous êtes déjà membre? Connectez-vous
Hmm, il semble y avoir eu une erreur lors de l’envoi de votre message. Veuillez réessayer.
Merci! Votre message a été envoyé.



