Votre courriel a été envoyé.
Certaines informations ont été traduites automatiquement.
Faits saillants de l'investissement
- Freestanding Commercial Condo
- Long-term Gross Lease In Place
- Convenient Access off Highway 41
Résumé de l'annonce
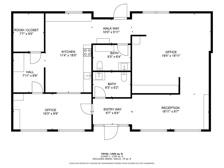
Condo commercial indépendant situé du côté ouest d’Atascadero! Construit en 2005, cette unité détachée offre plus de 1 400 pi² avec deux salles de bain conformes aux normes ADA, un bureau privé, une aire de réception, un espace de rangement, une salle de pause et un grand espace ouvert (voir le plan ci-dessous). La propriété bénéficie d’un accès pratique depuis l’autoroute 41 West et se trouve à proximité d’autres bureaux professionnels, du parc Atascadero Lake et du zoo de la Central Coast. Bail brut à long terme récemment renouvelé pour une période supplémentaire de trois ans avec le calendrier de paiement suivant : 2 275,56 $ par mois du 01/11/25 au 31/10/26 2 389,34 $ par mois du 01/11/26 au 31/10/27 2 508,80 $ par mois du 01/11/27 au 31/10/28 HOA Mark IV 300 $ par mois
1 Unité disponible
- Unité
- Taille de l’unité
- Utilisation du condo
- Prix
- Revenu net d’exploitation
| Type de vente | Investissement | ID/Numéro de lot | 031-291-037 |
| Nbre d’espaces de stationnement | 4 |
| Type de vente | Investissement |
| Nbre d’espaces de stationnement | 4 |
| ID/Numéro de lot | 031-291-037 |
$2,275.56 per month 11/01/25 - 10/31/26
$2,389.34 per month 11/01/26 - 10/31/27
$2,508.80 per month 11/01/27 - 10/31/28
| Unité | Taille de l’unité | Utilisation du condo | Prix | Revenu net d’exploitation |
| Unité NA | 1 464 pi² | Bureau | 756 470 $ CAD (516,71 $ CAD/pi²) | - |
Unité NA
| Taille de l’unité |
| 1 464 pi² |
| Utilisation du condo |
| Bureau |
| Prix |
| 756 470 $ CAD (516,71 $ CAD/pi²) |
| Revenu net d’exploitation |
| - |
Unité NA
| Taille de l’unité | 1 464 pi² |
| Utilisation du condo | Bureau |
| Prix | 756 470 $ CAD (516,71 $ CAD/pi²) |
| Revenu net d’exploitation | - |
| Type de vente | Investissement |
| Nbre d’espaces de stationnement | 4 |
| ID/Numéro de lot | 031-291-037 |
| Description | |
| Freestanding commercial condo on Atascadero’s westside! Built in 2005, this detached unit offers over 1,400 sq. ft. with two ADA-compliant restrooms, a private office, reception area, storage, break room, and a large open space (see attached floor plan). The property provides convenient access off Highway 41 West and is situated near other professional business offices, Atascadero Lake Park, and the Central Coast Zoo.</li></ul> | |
| Notes sur la vente | |
| Long-term gross lease just renewed for an additional three years with the following pay schedule: <br> <br> $2,275.56 per month 11/01/25 - 10/31/26<br> $2,389.34 per month 11/01/26 - 10/31/27<br> $2,508.80 per month 11/01/27 - 10/31/28</li></ul> |
Faits sur la propriété
| Taille totale du bâtiment | 1 464 pi² | Superficie de plancher typique | 1 464 pi² |
| Type de propriété | Commerce de détail (Condo) | Année de construction | 2005 |
| Sous-type de propriété | Immeuble de commerce | Location | Unique |
| Classe d’immeuble | C | Taille du lot | 0,15 AC |
| Planchers | 1 | ||
| Zonage | CR - Commerciale | ||
| Taille totale du bâtiment | 1 464 pi² |
| Type de propriété | Commerce de détail (Condo) |
| Sous-type de propriété | Immeuble de commerce |
| Classe d’immeuble | C |
| Planchers | 1 |
| Superficie de plancher typique | 1 464 pi² |
| Année de construction | 2005 |
| Location | Unique |
| Taille du lot | 0,15 AC |
| Zonage | CR - Commerciale |
Principaux détaillants à proximité
Présenté par
8840 Morro Rd
Hmm, il semble y avoir eu une erreur lors de l’envoi de votre message. Veuillez réessayer.
Merci! Votre message a été envoyé.



