Votre courriel a été envoyé.
Villa Siena 890 W Elliot Rd 5 125 pi² d'espace disponible • Bureau • Gilbert, AZ 85233



Certaines informations ont été traduites automatiquement.
Faits saillants
- Prime Gilbert location near Heritage District amenities
- Easy access to major East Valley arterials for smooth commutes
- Virtual tour available for convenient remote viewing
- Professional office layout with multiple private offices
- Dedicated conference room and collaborative bullpen space
Tous les espaces disponibles(1)
Afficher les taux de location en
- Espace
- Taille
- Terme
- Taux de location
- Utilisation de l’espace
- Aménagement
- Disponible
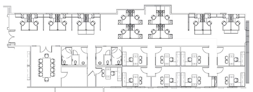
Position your business in one of Gilbert’s most desirable office environments at Villa Siena. Located at 890 W Elliot Road, this property offers exceptional connectivity to the East Valley’s thriving commercial and residential communities. Suite 103 provides a professional layout designed for productivity, featuring nine private offices, a dedicated conference room, and a spacious bullpen area ideal for collaborative teams. Additional conveniences include a breakroom, phone room, and two restrooms, ensuring comfort and functionality for your staff and clients. The property sits just one mile from the vibrant Gilbert Heritage District, offering access to dining, retail, and entertainment options that enhance work-life balance. With proximity to major thoroughfares such as Elliot Road, Warner Road, and Gilbert Road, commuting is seamless for employees and visitors alike. This strategic location combines visibility, accessibility, and a professional setting, making Villa Siena an outstanding choice for businesses seeking a premier East Valley address.
- Le taux comprend les services publics, les services de bâtiment et les dépenses immobilières.
- Convient pour 13 à 41 personnes
- 1 salle de conférence
- Salle de bains privée
- Disposition du plan d’étage ouverte
- 9 bureaux privés
- Espace en excellent état
| Espace | Taille | Terme | Taux de location | Utilisation de l’espace | Aménagement | Disponible |
| 1er étage, ste 103 | 5 125 pi² | Négociable | 35,35 $ CAD/pi²/an 2,95 $ CAD/pi²/mois 181 153 $ CAD/an 15 096 $ CAD/mois | Bureau | construction partielle | 2026-07-01 |
1er étage, ste 103
| Taille |
| 5 125 pi² |
| Terme |
| Négociable |
| Taux de location |
| 35,35 $ CAD/pi²/an 2,95 $ CAD/pi²/mois 181 153 $ CAD/an 15 096 $ CAD/mois |
| Utilisation de l’espace |
| Bureau |
| Aménagement |
| construction partielle |
| Disponible |
| 2026-07-01 |
1er étage, ste 103
| Taille | 5 125 pi² |
| Terme | Négociable |
| Taux de location | 35,35 $ CAD/pi²/an |
| Utilisation de l’espace | Bureau |
| Aménagement | construction partielle |
| Disponible | 2026-07-01 |
Position your business in one of Gilbert’s most desirable office environments at Villa Siena. Located at 890 W Elliot Road, this property offers exceptional connectivity to the East Valley’s thriving commercial and residential communities. Suite 103 provides a professional layout designed for productivity, featuring nine private offices, a dedicated conference room, and a spacious bullpen area ideal for collaborative teams. Additional conveniences include a breakroom, phone room, and two restrooms, ensuring comfort and functionality for your staff and clients. The property sits just one mile from the vibrant Gilbert Heritage District, offering access to dining, retail, and entertainment options that enhance work-life balance. With proximity to major thoroughfares such as Elliot Road, Warner Road, and Gilbert Road, commuting is seamless for employees and visitors alike. This strategic location combines visibility, accessibility, and a professional setting, making Villa Siena an outstanding choice for businesses seeking a premier East Valley address.
- Le taux comprend les services publics, les services de bâtiment et les dépenses immobilières.
- Disposition du plan d’étage ouverte
- Convient pour 13 à 41 personnes
- 9 bureaux privés
- 1 salle de conférence
- Espace en excellent état
- Salle de bains privée
Aperçu de la propriété
Villa Siena is a distinguished office property located at 890 W Elliot Road in the heart of Gilbert, Arizona. This well-positioned asset offers a professional environment designed to meet the needs of modern businesses. The building features a refined architectural style and a layout that supports both private and collaborative workspaces, making it ideal for companies seeking a balance of functionality and aesthetics. Its location provides exceptional connectivity to the East Valley’s major thoroughfares, including Elliot Road, Warner Road, and Gilbert Road, ensuring convenient access for employees and clients. Surrounding Villa Siena is a vibrant mix of retail, dining, and entertainment options, highlighted by the Gilbert Heritage District just one mile away. This proximity enhances the property’s appeal by offering amenities that support work-life balance and client engagement. The area benefits from strong demographics and a growing business community, creating an environment conducive to professional success. With its strategic location, quality construction, and access to nearby services, Villa Siena stands out as a premier choice for businesses looking to establish or expand their presence in one of Arizona’s most dynamic markets.
- Cour
- Sièges extérieurs
Faits sur la propriété
Sélectionner des locataires
- Étage
- Nom du locataire
- Secteur
- 1ᵉʳ
- Chicago Title Insurance Company
- Finance et assurances
- 1ᵉʳ
- Clear Minds Psychiatry Llc
- Soins de santé et assistance sociale
- 1ᵉʳ
- Crimson Agility
- Information
- 1ᵉʳ
- Fullscope It
- -
- 1ᵉʳ
- Guided Path Services Llc
- Services professionnels, scientifiques et techniques
- 1ᵉʳ
- IndustryPro
- Finance et assurances
- 1ᵉʳ
- Open Source Integrations
- Information
- 1ᵉʳ
- Phelps Estate Planning
- Services professionnels, scientifiques et techniques
- 1ᵉʳ
- RE/MAX Alliance Group
- Immobilier
- 1ᵉʳ
- Villa Siena
- Services
Présenté par
Villa Siena | 890 W Elliot Rd
Hmm, il semble y avoir eu une erreur lors de l’envoi de votre message. Veuillez réessayer.
Merci! Votre message a été envoyé.




