Votre courriel a été envoyé.
Certaines informations ont été traduites automatiquement.
Faits saillants
- Located in Charleston’s French Quarter, a historic district known for its cobblestone streets and cultural attractions.
- Features a landscaped courtyard with outdoor dining and gathering areas.
- Excellent pedestrian traffic and connectivity to public transit, including free DASH Trolley service.
- Steps from Charleston City Market and a short walk to King Street’s premier retail corridor.
- Surrounded by art galleries, boutique shops, and renowned restaurants.
- Within walking distance of Joe Riley Waterfront Park and Washington Square Park.
Disponibilité de l’espace (1)
Afficher les taux de location en
- Espace
- Taille
- Terme
- Taux de location
- Type de loyer
| Espace | Taille | Terme | Taux de location | Type de loyer | ||
| 1er étage | 2 700 pi² | Négociable | Sur demande Sur demande Sur demande Sur demande | À déterminer |
1er étage
Thirty Two Cumberland offers a rare opportunity to lease retail and restaurant space in Charleston’s historic French Quarter, one of the city’s most vibrant and walkable neighborhoods. This property blends modern design with the district’s architectural heritage, featuring a beautifully landscaped courtyard and inviting outdoor seating areas that create a unique destination for dining and shopping.
- Entièrement construit comme Espace de commerce de détail standard
Types de loyers
Le type et le montant du loyer que le locataire (preneur) est tenu de payer au propriétaire (bailleur) sur la durée du bail sont négociés avant la signature du bail par les deux parties. Le type de loyer varie selon les services fournis. Par exemple, le prix d’un loyer hypernet est habituellement inférieur à celui d’un bail à service complet puisque le locataire est tenu d’assumer des dépenses additionnelles par rapport au loyer de base. Contactez le courtier inscripteur pour tout connaître sur les frais connexes et additionnels associés à chaque type de loyer.
1. Service complet: Un taux de location qui comprend des services standards liés à l’immeuble fournis par le propriétaire dans le cadre d’une location annuelle de base.
2. Loyer supernet: Le locataire paie seulement deux des frais de l’immeuble. Le propriétaire et le locataire déterminent ces frais spécifiques avant la signature du bail.
3. Loyer hypernet: Un bail en vertu duquel le locataire est responsable de tous les frais liés à sa part proportionnelle d’occupation de l’immeuble.
4. Brut modifié: Le loyer brut modifié désigne un type général de taux de location dans lequel le locataire est habituellement responsable de sa part proportionnelle d’un ou de plusieurs frais. C’est le propriétaire qui paie les frais restants. Considérez les structures tarifaires courantes suivantes applicables aux loyers bruts modifiés: 4. Plus les services: Un type de bail brut modifié suivant lequel le locataire est responsable de sa part proportionnelle des coûts des services publics, en plus du loyer. 4. Plus le nettoyage: Un type de bail brut modifié suivant lequel le locataire est responsable de sa part proportionnelle des coûts de nettoyage, en plus du loyer. 4. Plus l'électricité: Un type de bail brut modifié suivant lequel le locataire est responsable de sa part proportionnelle des coûts d’électricité, en plus du loyer. 4. Plus l’électricité et le nettoyage: Un type de bail brut modifié dans lequel le locataire est responsable de sa part proportionnelle des coûts d’électricité et de nettoyage, en plus du loyer. 4. Plus les services publics et le nettoyage: Un type de bail brut modifié dans lequel le locataire est responsable de sa part proportionnelle des coûts des services publics et de nettoyage, en plus du loyer. 4. Bail industriel brut: Un type de bail brut modifié dans lequel le locataire paie un ou plusieurs des frais, en plus du loyer. Le propriétaire et le locataire déterminent ces frais spécifiques avant la signature du bail.
5. L’électricité est à la charge du locataire: Le propriétaire paie pour tous les services et le locataire est responsable de sa propre utilisation de l’éclairage et des prises électriques dans l’espace qu’il occupe.
6. Négociable ou sur demande: Cette option est utilisée lorsque le contact de location ne précise pas le type de loyer ou de service.
7. À déterminer: À déterminer ; utilisé pour les immeubles dont le type de services ou de loyer n’est pas connu, souvent quand l’immeuble n’est pas encore construit.
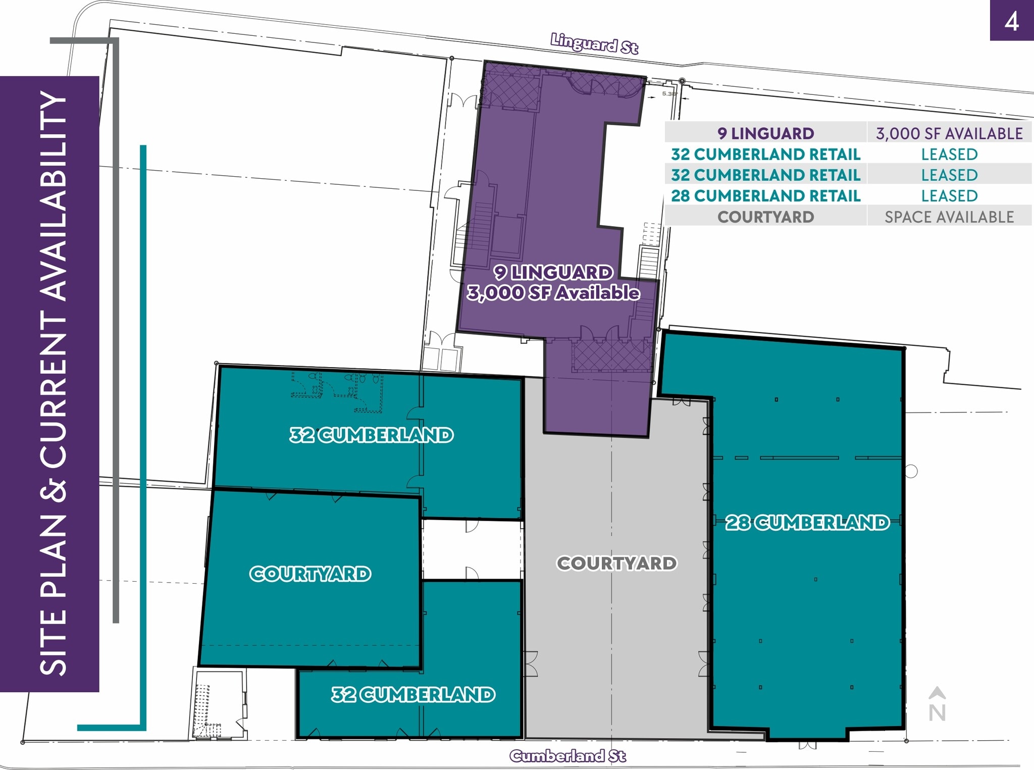
Plan de site
Faits sur la propriété
| Superficie totale disponible | 2 700 pi² | Année de construction | 2026 |
| Type de propriété | Commerce de détail | État de la construction | En construction |
| Superficie commerciale brute | 2 700 pi² |
| Superficie totale disponible | 2 700 pi² |
| Type de propriété | Commerce de détail |
| Superficie commerciale brute | 2 700 pi² |
| Année de construction | 2026 |
| État de la construction | En construction |
À propos de la propriété
Located steps from Charleston City Market and within walking distance of King Street, the property benefits from exceptional foot traffic and proximity to high-end boutiques, art galleries, and cultural landmarks. The surrounding area supports a live-work-play lifestyle, attracting both locals and visitors seeking an authentic Charleston experience. The site plan includes multiple retail spaces and a courtyard area, with one 3,000 SF space currently available at 9 Linguard Street. Tenants will enjoy strong visibility, easy access to major thoroughfares, and connectivity to public transportation, including the free DASH Trolley. This location is ideal for retailers and restaurateurs looking to establish a presence in one of Charleston’s most desirable districts.
Principaux détaillants à proximité
Présenté par
9 Linguard St
Hmm, il semble y avoir eu une erreur lors de l’envoi de votre message. Veuillez réessayer.
Merci! Votre message a été envoyé.





