Se Connecter/S’inscrire
Votre courriel a été envoyé.
9 Severn St 1 687 pi² 8% Loué Commerce de détail Immeuble Newtown SY16 2AQ 331 755 $ CAD (196,65 $ CAD/pi²) 8,67% Taux de capitalisation



Certaines informations ont été traduites automatiquement.
Faits saillants de l'investissement
- Prominent frontage
- Good connectivity
- Great location
Résumé de l'annonce
Investment Consideration:
Gross Initial Yield: 8.67%
Rental Income: £15,600 p.a.
VAT is NOT applicable to this property
Comprises takeaway shop with large residential flat at first and second floor
Benefits from storage outbuilding and basement
Future redevelopment potential to self-contain the flat, STTP
Located in the heart of the town centre with occupiers nearby include Costa Coffee, HSBC, Nationwide, Restaurants, Cafe and more.
Property Description:
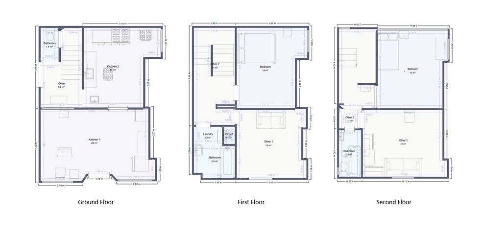
Comprises ground floor takeaway with additional storage outbuilding. The takeaway comes with fully equipped commercial kitchen and ready for occupation. The residential flat above comprises 4 rooms and 2 bathrooms, providing the following accommodation and dimensions:
Ground Floor: 34 sq m (366 sq ft)
Open plan takeaway, commercial kitchen
Storage: 31 sq m (333 sq ft)
Open plan storage
First Floor: 40 sq m (430 sq ft)
2 rooms, bathroom
Second Floor: 40 sq m (430 sq ft)
2 rooms, bathroom
Total GIA: 145 sq m (1,559 sq ft)
Redevelopment potential to self-contain the residential flat, STTP.
Tenancy:
The entire property is at present let to an Individual for a term of 10 Years from 20th February 2026 at a current rent of £15,600 p.a. and the lease contains full repairing and insuring covenants. Rent review 20.02.31 linked to RPI. Tenant option to determine on 20.02.31 with min 6 months notice. Deposit held of £3,900.
Location:
Newtown is the largest town in the county of Powys, located 13 miles south of Welshpool and 36 miles south-west of Shrewsbury. The town is situated on the River Severn at the junction of the A489 and the A483. Newtown (Powys) Rail Station provides frequent rail services to Birmingham International, Shrewsbury and Aberystwyth. The property is situated in the heart of the town centre with occupiers nearby include Costa Coffee, Nationwide and more.
Gross Initial Yield: 8.67%
Rental Income: £15,600 p.a.
VAT is NOT applicable to this property
Comprises takeaway shop with large residential flat at first and second floor
Benefits from storage outbuilding and basement
Future redevelopment potential to self-contain the flat, STTP
Located in the heart of the town centre with occupiers nearby include Costa Coffee, HSBC, Nationwide, Restaurants, Cafe and more.
Property Description:
Comprises ground floor takeaway with additional storage outbuilding. The takeaway comes with fully equipped commercial kitchen and ready for occupation. The residential flat above comprises 4 rooms and 2 bathrooms, providing the following accommodation and dimensions:
Ground Floor: 34 sq m (366 sq ft)
Open plan takeaway, commercial kitchen
Storage: 31 sq m (333 sq ft)
Open plan storage
First Floor: 40 sq m (430 sq ft)
2 rooms, bathroom
Second Floor: 40 sq m (430 sq ft)
2 rooms, bathroom
Total GIA: 145 sq m (1,559 sq ft)
Redevelopment potential to self-contain the residential flat, STTP.
Tenancy:
The entire property is at present let to an Individual for a term of 10 Years from 20th February 2026 at a current rent of £15,600 p.a. and the lease contains full repairing and insuring covenants. Rent review 20.02.31 linked to RPI. Tenant option to determine on 20.02.31 with min 6 months notice. Deposit held of £3,900.
Location:
Newtown is the largest town in the county of Powys, located 13 miles south of Welshpool and 36 miles south-west of Shrewsbury. The town is situated on the River Severn at the junction of the A489 and the A483. Newtown (Powys) Rail Station provides frequent rail services to Birmingham International, Shrewsbury and Aberystwyth. The property is situated in the heart of the town centre with occupiers nearby include Costa Coffee, Nationwide and more.
Faits sur la propriété
Type de vente
Investissement ou propriétaire utilisateur
Type de propriété
Commerce de détail
Ancienneté
Pleine propriété
Taille du bâtiment
1 687 pi²
Classe d’immeuble
C
Année de construction
1950
Prix
331 755 $ CAD
Prix par pi²
196,65 $ CAD
Taux de capitalisation
8,67%
Revenu net d’exploitation
28 752 $ CAD
Pourcentage loué
8%
Hauteur du bâtiment
3 étages
Coefficient d’occupation des sols de l’immeuble
1,94
Taille du lot
0,02 AC
1 1
Principaux détaillants à proximité
1 de 7
Vidéos
Visite extérieure 3D Matterport
Visite 3D Matterport
Photos
Vue depuis la rue
Rue
Carte
1 de 1
Présenté par
9 Severn St
Vous êtes déjà membre? Connectez-vous
Hmm, il semble y avoir eu une erreur lors de l’envoi de votre message. Veuillez réessayer.
Merci! Votre message a été envoyé.
