Votre courriel a été envoyé.
Certaines informations ont été traduites automatiquement.
Faits saillants
- Proven lab-configured space
- Utilities sized for lab equipment and operational loads
- Open layout supports bench work, equipment installation, and workflow
- 5 Private Offices, Reception, and Break Room
- Climate control system maintains lab environment standards
- Professional isolation from public-facing operations
Tous les espaces disponibles(1)
Afficher les taux de location en
- Espace
- Taille
- Terme
- Taux de location
- Utilisation de l’espace
- Aménagement
- Disponible
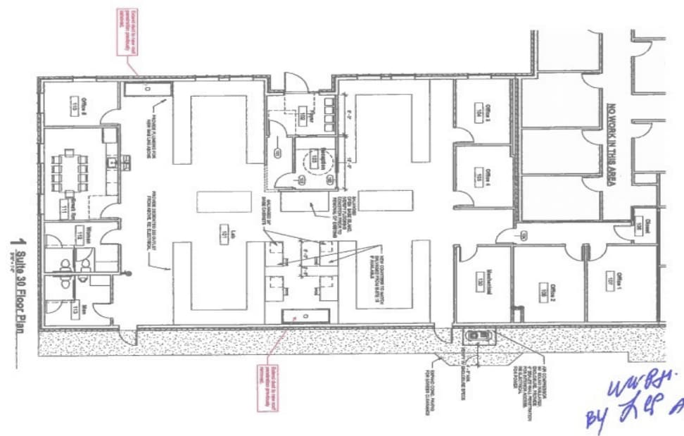
4,592 square feet of operational lab space in Asheville. This isn't generic office space, it's space built for lab operations. Currently occupied by Mountain Dental Lab, an established multi-location lab operator. The infrastructure is proven: utilities sized for equipment loads, climate control maintained for lab environment consistency, open layout configured for bench work and equipment setup. Ideal for labs seeking to expand capacity, open satellite operations, or relocate from undersized space. Professional visibility on Walden Ridge Drive with established commercial corridor surrounding. Available June 2026. Lease rate $24/SF annually on NNN basis.
- Le taux de location ne comprend pas les services publics, les services de bâtiment ou les dépenses immobilières.
- Convient pour 12 à 37 personnes
- Entièrement construit comme Espace de recherche et développement
- Espace en excellent état
| Espace | Taille | Terme | Taux de location | Utilisation de l’espace | Aménagement | Disponible |
| 1er étage, ste 30 | 4 592 pi² | Négociable | 33,00 $ CAD/pi²/an 2,75 $ CAD/pi²/mois 151 532 $ CAD/an 12 628 $ CAD/mois | Bureau | construction complète | 2026-06-01 |
1er étage, ste 30
| Taille |
| 4 592 pi² |
| Terme |
| Négociable |
| Taux de location |
| 33,00 $ CAD/pi²/an 2,75 $ CAD/pi²/mois 151 532 $ CAD/an 12 628 $ CAD/mois |
| Utilisation de l’espace |
| Bureau |
| Aménagement |
| construction complète |
| Disponible |
| 2026-06-01 |
1er étage, ste 30
| Taille | 4 592 pi² |
| Terme | Négociable |
| Taux de location | 33,00 $ CAD/pi²/an |
| Utilisation de l’espace | Bureau |
| Aménagement | construction complète |
| Disponible | 2026-06-01 |
4,592 square feet of operational lab space in Asheville. This isn't generic office space, it's space built for lab operations. Currently occupied by Mountain Dental Lab, an established multi-location lab operator. The infrastructure is proven: utilities sized for equipment loads, climate control maintained for lab environment consistency, open layout configured for bench work and equipment setup. Ideal for labs seeking to expand capacity, open satellite operations, or relocate from undersized space. Professional visibility on Walden Ridge Drive with established commercial corridor surrounding. Available June 2026. Lease rate $24/SF annually on NNN basis.
- Le taux de location ne comprend pas les services publics, les services de bâtiment ou les dépenses immobilières.
- Entièrement construit comme Espace de recherche et développement
- Convient pour 12 à 37 personnes
- Espace en excellent état
Faits sur la propriété
Sélectionner des locataires
- Étage
- Nom du locataire
- Secteur
- 1ᵉʳ
- Asheville Police Dept
- Administration publique
- Multiple
- Mountain Dental Lab Inc
- Soins de santé et assistance sociale
- 1ᵉʳ
- Premiere Pain Solutions
- Soins de santé et assistance sociale
Présenté par
9 Walden Ridge Dr
Hmm, il semble y avoir eu une erreur lors de l’envoi de votre message. Veuillez réessayer.
Merci! Votre message a été envoyé.





