Se Connecter/S’inscrire
Votre courriel a été envoyé.
N.W. Art Glass Bldg 1 9001-9003 151st Ave NE 26 830 pi² Industriel Immeuble Redmond, WA 98052 À vendre



Certaines informations ont été traduites automatiquement.
Faits saillants de l'investissement
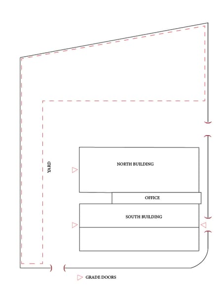
- Features sprinklers, a 20,000 SF Yard, and a fenced area.
- 4,030 SF Office
- 3,600 SF Mezzanine
Résumé de l'annonce
Well-located industrial building in Redmond’s Willows Road industrial corridor. Prominently positioned on a corner lot, the property benefits from excellent visibility along 90th St and 151st. Conveniently located with quick access to SR-520 and major Eastside employment centers, including Microsoft and downtown Redmond. Low Site Coverage with a fenced parking lot perfect for fleet parking or material storage. The property also features two 2-ton bridge cranes and heavy power.
Recent upgrades to the finishes as well as recent repaved with upgrades to stormwater system and paving. The yard is recently graveled and the entire site/buildings can be available to a user.
Recent upgrades to the finishes as well as recent repaved with upgrades to stormwater system and paving. The yard is recently graveled and the entire site/buildings can be available to a user.
Faits sur la propriété
| Type de vente | Propriétaire utilisateur | Aire du bâtiment louable | 26 830 pi² |
| Type de propriété | Industriel | Nombre d’étages | 2 |
| Sous-type de propriété | Entrepôt | Année de construction/rénovation | 1974/1990 |
| Classe d’immeuble | C | Effacer hauteur du plafond | 22’ |
| Taille du lot | 1,79 AC | Nbre d’entrées dans les portes/au niveau du sol | 3 |
| Zonage | MP | ||
| Type de vente | Propriétaire utilisateur |
| Type de propriété | Industriel |
| Sous-type de propriété | Entrepôt |
| Classe d’immeuble | C |
| Taille du lot | 1,79 AC |
| Aire du bâtiment louable | 26 830 pi² |
| Nombre d’étages | 2 |
| Année de construction/rénovation | 1974/1990 |
| Effacer hauteur du plafond | 22’ |
| Nbre d’entrées dans les portes/au niveau du sol | 3 |
| Zonage | MP |
Commodités
- Terrain clôturé
- Mezzanine
1 1
Assez praticable à pied
50/100
Exceptionnellement facile d’accès en voiture
100/100
Transports en commun relativement accessibles
50/100
Exceptionnellement praticable à vélo
90/100
Impôts fonciers
| Numéro de lot | 720170-0030 | Évaluation des bâtiments | 1 361 $ CAD |
| Évaluation du terrain | 8 511 351 $ CAD | Évaluation totale | 8 512 711 $ CAD |
Impôts fonciers
Numéro de lot
720170-0030
Évaluation du terrain
8 511 351 $ CAD
Évaluation des bâtiments
1 361 $ CAD
Évaluation totale
8 512 711 $ CAD
1 de 8
Vidéos
Visite extérieure 3D Matterport
Visite 3D Matterport
Photos
Vue depuis la rue
Rue
Carte
1 de 1
Présenté par
N.W. Art Glass Bldg 1 | 9001-9003 151st Ave NE
Vous êtes déjà membre? Connectez-vous
Hmm, il semble y avoir eu une erreur lors de l’envoi de votre message. Veuillez réessayer.
Merci! Votre message a été envoyé.
