Se Connecter/S’inscrire
Votre courriel a été envoyé.
9th Street Flex Space 901 9th St N 75 970 pi² 100% Loué Local d'activités Immeuble Great Falls, MT 59401 6 686 050 $ CAD (88,01 $ CAD/pi²)



Certaines informations ont été traduites automatiquement.
Faits saillants de l'investissement
- Industrial
- Lots of Parking
- Manufacturing
Résumé de l'annonce
Substantial industrial property located at 901 9th Street North in Great Falls, Montana, offering a total of approximately 75,970 square feet of functional space. The building includes 66,336 square feet on the main level and an additional 9,634 square feet of mezzanine area situated in the west warehouse. The property sits on a 118,606.68 square foot lot (approximately 2.72 acres) and is improved with two primary structures built in 1950 and 1966, with updates including a remodel recently and in 2018. Construction is primarily concrete block with clear-span interiors and ceiling heights up to 20 feet, and the building is fully equipped with fire sprinkler systems throughout, making this an excellent candidate for distribution, manufacturing, or multi-tenant investment.
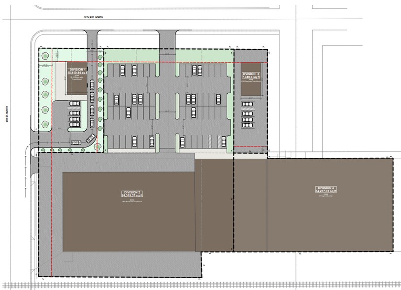
The building is partially leased, offering a mix of income and flexibility. A national food processing tenant occupies the rear 25,200 square feet of warehouse space under a lease that runs through December 31, 2026. Additionally, KaBoom, a recreational use tenant, occupies a portion of the building on a month-to-month basis following the expiration of their prior lease. They continue to pay rent and utilities and can be retained or replaced at the buyer’s discretion. The property owner also uses 7,384 square feet for personal storage and is open to a leaseback arrangement if that suits the needs of the buyer. Portions of the parking area, specifically those shown as Division 1 and Division 3 on the site diagram, will be retained by the seller and are not included in the sale.
This is a rare opportunity to acquire a large industrial facility with in-place income, long-term flexibility, and significant square footage in a central Great Falls location. Ideal for investors or owner-users seeking scale, functional space, and optionality in a market with limited comparable inventory. Contact the listing agent for additional documentation, tenant details, interior photos, and site plans.
The building is partially leased, offering a mix of income and flexibility. A national food processing tenant occupies the rear 25,200 square feet of warehouse space under a lease that runs through December 31, 2026. Additionally, KaBoom, a recreational use tenant, occupies a portion of the building on a month-to-month basis following the expiration of their prior lease. They continue to pay rent and utilities and can be retained or replaced at the buyer’s discretion. The property owner also uses 7,384 square feet for personal storage and is open to a leaseback arrangement if that suits the needs of the buyer. Portions of the parking area, specifically those shown as Division 1 and Division 3 on the site diagram, will be retained by the seller and are not included in the sale.
This is a rare opportunity to acquire a large industrial facility with in-place income, long-term flexibility, and significant square footage in a central Great Falls location. Ideal for investors or owner-users seeking scale, functional space, and optionality in a market with limited comparable inventory. Contact the listing agent for additional documentation, tenant details, interior photos, and site plans.
Faits sur la propriété
Commodités
- Système de sécurité
- Affichage
- Réception
Services publics
- Éclairage - Fluorescent
- Gaz - Naturel
- Eau - Ville
- Égout - Ville
- Chauffage - Gaz
Principaux locataires Cliquez ici pour accéder à
- Locataire
- Secteur
- pi² Occupé
- Loyer/pi²
- Type de bail
- Fin du bail
- KaBoom
- Arts, divertissement et loisirs
-
99,999 SF
- -
-
Lorem Ipsum
- -
- Owner Lease
- Gestion des sociétés et des entreprises
-
99,999 SF
- -
-
Lorem Ipsum
- -
- Pasta Montana
- Transport et entreposage
-
99,999 SF
- -
-
Lorem Ipsum
-
Jan 0000
| Locataire | Secteur | pi² Occupé | Loyer/pi² | Type de bail | Fin du bail | |
| KaBoom | Arts, divertissement et loisirs | 99,999 SF | - | Lorem Ipsum | - | |
| Owner Lease | Gestion des sociétés et des entreprises | 99,999 SF | - | Lorem Ipsum | - | |
| Pasta Montana | Transport et entreposage | 99,999 SF | - | Lorem Ipsum | Jan 0000 |
1 1
Bike Score®
Très cyclable (71)
Impôts fonciers
| Numéro de lot | 02-3015-01-4-45-01-0000 | Évaluation des bâtiments | 0 $ CAD |
| Évaluation du terrain | 0 $ CAD | Évaluation totale | 2 770 890 $ CAD |
Impôts fonciers
Numéro de lot
02-3015-01-4-45-01-0000
Évaluation du terrain
0 $ CAD
Évaluation des bâtiments
0 $ CAD
Évaluation totale
2 770 890 $ CAD
1 de 44
Vidéos
Visite extérieure 3D Matterport
Visite 3D Matterport
Photos
Vue depuis la rue
Rue
Carte
1 de 1
Présenté par
9th Street Flex Space | 901 9th St N
Vous êtes déjà membre? Connectez-vous
Hmm, il semble y avoir eu une erreur lors de l’envoi de votre message. Veuillez réessayer.
Merci! Votre message a été envoyé.
Votre message a été envoyé !
Activez votre compte LoopNet dès maintenant pour suivre les propriétés, recevoir des alertes en temps réel, gagner du temps sur vos demandes futures et bien plus encore.
