Votre courriel a été envoyé.
Flying Cloud Corporate Campus Eden Prairie, MN 55347 15 710–119 965 pi² d'espace disponible • Bureau



Certaines informations ont été traduites automatiquement.
Faits saillants du parc
- High ceilings, wrap around glass, central training room and individual meeting rooms.
Faits sur le parc
| Superficie totale disponible | 119 965 pi² | Type de parc | Parc de bureaux |
| Max. contigu | 58 143 pi² |
| Superficie totale disponible | 119 965 pi² |
| Max. contigu | 58 143 pi² |
| Type de parc | Parc de bureaux |
Tous les espaces disponibles(4)
Afficher les taux de location en
- Espace
- Taille
- Terme
- Taux de location
- Utilisation de l’espace
- Aménagement
- Disponible
Ideally positioned at the corner of Flying Cloud Drive and Anderson Lakes Blvd, tenants benefit from the campus’ convenient location, ample parking, modern, spacious office solutions with 10-foot ceilings, and state-of-the-art heating, and cooling systems. Plus, various restaurants, childcare, recreational parks and living communities are all available within a 5-minute drive from the campus.
- Le taux de location ne comprend pas les services publics, les services de bâtiment ou les dépenses immobilières.
- Disposition du plan d’étage ouverte
- 2 salles de conférence
- Espace en excellent état
- Air central et chauffage
- Complètement tapissé
- Entièrement construit comme Bureau standard
- 10 bureaux privés
- Plafonds finis: 10’
- Clé en main
- Aire de réception
- Plafond suspendu
| Espace | Taille | Terme | Taux de location | Utilisation de l’espace | Aménagement | Disponible |
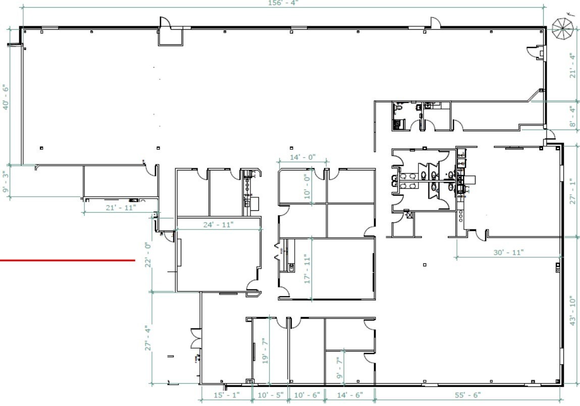
| 1er étage, ste 100 | 15 710 pi² | Négociable | Sur demande Sur demande Sur demande Sur demande | Bureau | construction complète | Maintenant |
8911 Columbine Rd - 1er étage - ste 100
- Espace
- Taille
- Terme
- Taux de location
- Utilisation de l’espace
- Aménagement
- Disponible
33-acre business park with professional corporate image. Walk-to restaurant options and Staring Lake Park trails. Proximate access to shopping, dining, hotels and fitness centers.
- Entièrement construit comme Bureau standard
- 16 bureaux privés
- Plafonds finis: 9’
- Peut être associé à un ou plusieurs espaces supplémentaires pour obtenir jusqu’à 58 143 pi² d’espace adjacent.
- Cuisine
- Hauts plafonds
- Disposition du plan d’étage ouverte
- 1 salle de conférence
- Espace en excellent état
- Air central et chauffage
- Salle de bains privée
- Plan ouvert
The Flying Cloud Corporate Campus in Eden Prairie is a 33-acre business park, home to forward-thinking enterprises looking for office space with strategic advantages to make work-life balance an attainable feat. Ideally positioned at the corner of Flying Cloud Drive and Anderson Lakes Blvd, tenants benefit from the campus’ convenient location, ample parking, modern, spacious office solutions with 10-foot ceilings, and state-of-the-art heating, and cooling systems. Plus, various restaurants, childcare, recreational parks and living communities are all available within a 5-minute drive from the campus.
- Le taux de location ne comprend pas les services publics, les services de bâtiment ou les dépenses immobilières.
- Disposition du plan d’étage ouverte
- Plafonds finis: 10’
- Peut être associé à un ou plusieurs espaces supplémentaires pour obtenir jusqu’à 58 143 pi² d’espace adjacent.
- Hauts plafonds
- Entièrement construit comme Bureau standard
- Salles de conférence
- Espace en excellent état
- Espace en coin
- Lumière naturelle
| Espace | Taille | Terme | Taux de location | Utilisation de l’espace | Aménagement | Disponible |
| 1er étage, ste 100 | 27 033 pi² | Négociable | Sur demande Sur demande Sur demande Sur demande | Bureau | construction complète | 30 jours |
| 1er étage, ste 150 | 31 110 pi² | Négociable | Sur demande Sur demande Sur demande Sur demande | Bureau | construction complète | 30 jours |
8855 Columbine Rd - 1er étage - ste 100
8855 Columbine Rd - 1er étage - ste 150
- Espace
- Taille
- Terme
- Taux de location
- Utilisation de l’espace
- Aménagement
- Disponible
Approximately 11,000 sf of raised floor data center space with supplemental cooling, backup power and advanced fire suppression system. 202 tons of cooling from 15 computer room air conditioning units. 138 tons of cooling from 3 Liebert units. Data center power from two different substations with an automatic switch. Backup power supplied by two 2,000KW diesel generators.
- Le taux de location ne comprend pas les services publics, les services de bâtiment ou les dépenses immobilières.
- Lumière naturelle
- Plancher surélevé
- Plan ouvert
| Espace | Taille | Terme | Taux de location | Utilisation de l’espace | Aménagement | Disponible |
| 1er étage, ste 100 | 46 112 pi² | Négociable | Sur demande Sur demande Sur demande Sur demande | Bureau | - | 2026-07-01 |
8995 Columbine Rd - 1er étage - ste 100
8911 Columbine Rd - 1er étage - ste 100
| Taille | 15 710 pi² |
| Terme | Négociable |
| Taux de location | Sur demande |
| Utilisation de l’espace | Bureau |
| Aménagement | construction complète |
| Disponible | Maintenant |
Ideally positioned at the corner of Flying Cloud Drive and Anderson Lakes Blvd, tenants benefit from the campus’ convenient location, ample parking, modern, spacious office solutions with 10-foot ceilings, and state-of-the-art heating, and cooling systems. Plus, various restaurants, childcare, recreational parks and living communities are all available within a 5-minute drive from the campus.
- Le taux de location ne comprend pas les services publics, les services de bâtiment ou les dépenses immobilières.
- Entièrement construit comme Bureau standard
- Disposition du plan d’étage ouverte
- 10 bureaux privés
- 2 salles de conférence
- Plafonds finis: 10’
- Espace en excellent état
- Clé en main
- Air central et chauffage
- Aire de réception
- Complètement tapissé
- Plafond suspendu
8855 Columbine Rd - 1er étage - ste 100
| Taille | 27 033 pi² |
| Terme | Négociable |
| Taux de location | Sur demande |
| Utilisation de l’espace | Bureau |
| Aménagement | construction complète |
| Disponible | 30 jours |
33-acre business park with professional corporate image. Walk-to restaurant options and Staring Lake Park trails. Proximate access to shopping, dining, hotels and fitness centers.
- Entièrement construit comme Bureau standard
- Disposition du plan d’étage ouverte
- 16 bureaux privés
- 1 salle de conférence
- Plafonds finis: 9’
- Espace en excellent état
- Peut être associé à un ou plusieurs espaces supplémentaires pour obtenir jusqu’à 58 143 pi² d’espace adjacent.
- Air central et chauffage
- Cuisine
- Salle de bains privée
- Hauts plafonds
- Plan ouvert
8855 Columbine Rd - 1er étage - ste 150
| Taille | 31 110 pi² |
| Terme | Négociable |
| Taux de location | Sur demande |
| Utilisation de l’espace | Bureau |
| Aménagement | construction complète |
| Disponible | 30 jours |
The Flying Cloud Corporate Campus in Eden Prairie is a 33-acre business park, home to forward-thinking enterprises looking for office space with strategic advantages to make work-life balance an attainable feat. Ideally positioned at the corner of Flying Cloud Drive and Anderson Lakes Blvd, tenants benefit from the campus’ convenient location, ample parking, modern, spacious office solutions with 10-foot ceilings, and state-of-the-art heating, and cooling systems. Plus, various restaurants, childcare, recreational parks and living communities are all available within a 5-minute drive from the campus.
- Le taux de location ne comprend pas les services publics, les services de bâtiment ou les dépenses immobilières.
- Entièrement construit comme Bureau standard
- Disposition du plan d’étage ouverte
- Salles de conférence
- Plafonds finis: 10’
- Espace en excellent état
- Peut être associé à un ou plusieurs espaces supplémentaires pour obtenir jusqu’à 58 143 pi² d’espace adjacent.
- Espace en coin
- Hauts plafonds
- Lumière naturelle
8995 Columbine Rd - 1er étage - ste 100
| Taille | 46 112 pi² |
| Terme | Négociable |
| Taux de location | Sur demande |
| Utilisation de l’espace | Bureau |
| Aménagement | - |
| Disponible | 2026-07-01 |
Approximately 11,000 sf of raised floor data center space with supplemental cooling, backup power and advanced fire suppression system. 202 tons of cooling from 15 computer room air conditioning units. 138 tons of cooling from 3 Liebert units. Data center power from two different substations with an automatic switch. Backup power supplied by two 2,000KW diesel generators.
- Le taux de location ne comprend pas les services publics, les services de bâtiment ou les dépenses immobilières.
- Plancher surélevé
- Lumière naturelle
- Plan ouvert
Aperçu du parc
Ample parking at 4.6/1,000 ratio 10 foot ceiling with the ability to open to ceiling deck State-of-the-art VAV heating & cooling systems 3 sides of glass, tons of natural light Contemporary stainless steel bathrooms. 33-acre business park with a professional corporate image Walk-to restaurant options SW Transit bus service to park 1,200 Amps | 480/277 Volts Centrally located at the corner of Hwy 212 and Anderson Lakes Blvd. Technology: CAT 6 cabling throughout, Level 3 Communications, & CenturyLink fiber.
Présenté par
Flying Cloud Corporate Campus | Eden Prairie, MN 55347
Hmm, il semble y avoir eu une erreur lors de l’envoi de votre message. Veuillez réessayer.
Merci! Votre message a été envoyé.









