Votre courriel a été envoyé.
Certaines informations ont été traduites automatiquement.
Faits sur le parc
Caractéristiques et commodités
- Climatisation
- Affichage
Tous les espaces disponibles(3)
Afficher les taux de location en
- Espace
- Taille
- Terme
- Taux de location
- Utilisation de l’espace
- Aménagement
- Disponible
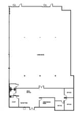
- Reception/lobby, (3) private offices, (2) restrooms, conference room, break room, balance warehouse, (2) grade level loading doors - 200 amps at 120/208V (can be upgraded to 400 amps at 120/208V) - Approximately 18' clear height - Can be combined with suite 101 for a total of 17,080 SF - NNN = $0.41 PSF
- Le taux de location ne comprend pas les services publics, les services de bâtiment ou les dépenses immobilières.
- Peut être associé à un ou plusieurs espaces supplémentaires pour obtenir jusqu’à 17 080 pi² d’espace adjacent.
- Aire de réception
- 2 accès plain-pied
- 1 quai de chargement
- Salle de bains privée
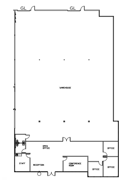
- Spec office improvements underway featuring reception/lobby, (3) private offices, (2) restrooms, conference room, break room, balance warehouse, (2) grade level loading doors - 200 amps at 120/208V (can be upgraded to 600 amps at 120/208V) - Approximately 18' clear height - Can be combined with suite 100 for a total of 17,080 SF - NNN = $0.41 PSF
- Le taux de location ne comprend pas les services publics, les services de bâtiment ou les dépenses immobilières.
- Peut être associé à un ou plusieurs espaces supplémentaires pour obtenir jusqu’à 17 080 pi² d’espace adjacent.
- Aire de réception
- 2 accès plain-pied
- 1 quai de chargement
- Salle de bains privée
| Espace | Taille | Terme | Taux de location | Utilisation de l’espace | Aménagement | Disponible |
| 1er étage - 100 | 5 734 pi² | Négociable | 28,93 $ CAD/pi²/an 2,41 $ CAD/pi²/mois 165 870 $ CAD/an 13 823 $ CAD/mois | Industriel | construction partielle | 2026-05-15 |
| 1er étage - 101 | 11 346 pi² | Négociable | 28,10 $ CAD/pi²/an 2,34 $ CAD/pi²/mois 318 834 $ CAD/an 26 569 $ CAD/mois | Industriel | construction partielle | 2026-05-15 |
9050 Kenamar Dr - 1er étage - 100
9050 Kenamar Dr - 1er étage - 101
- Espace
- Taille
- Terme
- Taux de location
- Utilisation de l’espace
- Aménagement
- Disponible
Reception/open office, (1) restroom, balance warehouse. (1) grade level door. NNN’s = $0.41.
- Le taux de location ne comprend pas les services publics, les services de bâtiment ou les dépenses immobilières.
- Aire de réception
- 1 accès plain-pied
- Natural Gas in the Project
| Espace | Taille | Terme | Taux de location | Utilisation de l’espace | Aménagement | Disponible |
| 1er étage - 315 | 1 680 pi² | Négociable | 28,10 $ CAD/pi²/an 2,34 $ CAD/pi²/mois 47 210 $ CAD/an 3 934 $ CAD/mois | Industriel | construction partielle | Maintenant |
9030 Kenamar Dr - 1er étage - 315
9050 Kenamar Dr - 1er étage - 100
| Taille | 5 734 pi² |
| Terme | Négociable |
| Taux de location | 28,93 $ CAD/pi²/an |
| Utilisation de l’espace | Industriel |
| Aménagement | construction partielle |
| Disponible | 2026-05-15 |
- Reception/lobby, (3) private offices, (2) restrooms, conference room, break room, balance warehouse, (2) grade level loading doors - 200 amps at 120/208V (can be upgraded to 400 amps at 120/208V) - Approximately 18' clear height - Can be combined with suite 101 for a total of 17,080 SF - NNN = $0.41 PSF
- Le taux de location ne comprend pas les services publics, les services de bâtiment ou les dépenses immobilières.
- 2 accès plain-pied
- Peut être associé à un ou plusieurs espaces supplémentaires pour obtenir jusqu’à 17 080 pi² d’espace adjacent.
- 1 quai de chargement
- Aire de réception
- Salle de bains privée
9050 Kenamar Dr - 1er étage - 101
| Taille | 11 346 pi² |
| Terme | Négociable |
| Taux de location | 28,10 $ CAD/pi²/an |
| Utilisation de l’espace | Industriel |
| Aménagement | construction partielle |
| Disponible | 2026-05-15 |
- Spec office improvements underway featuring reception/lobby, (3) private offices, (2) restrooms, conference room, break room, balance warehouse, (2) grade level loading doors - 200 amps at 120/208V (can be upgraded to 600 amps at 120/208V) - Approximately 18' clear height - Can be combined with suite 100 for a total of 17,080 SF - NNN = $0.41 PSF
- Le taux de location ne comprend pas les services publics, les services de bâtiment ou les dépenses immobilières.
- 2 accès plain-pied
- Peut être associé à un ou plusieurs espaces supplémentaires pour obtenir jusqu’à 17 080 pi² d’espace adjacent.
- 1 quai de chargement
- Aire de réception
- Salle de bains privée
9030 Kenamar Dr - 1er étage - 315
| Taille | 1 680 pi² |
| Terme | Négociable |
| Taux de location | 28,10 $ CAD/pi²/an |
| Utilisation de l’espace | Industriel |
| Aménagement | construction partielle |
| Disponible | Maintenant |
Reception/open office, (1) restroom, balance warehouse. (1) grade level door. NNN’s = $0.41.
- Le taux de location ne comprend pas les services publics, les services de bâtiment ou les dépenses immobilières.
- 1 accès plain-pied
- Aire de réception
- Natural Gas in the Project
Présenté par
Centerpointe Commerce Park | San Diego, CA 92121
Hmm, il semble y avoir eu une erreur lors de l’envoi de votre message. Veuillez réessayer.
Merci! Votre message a été envoyé.










