Votre courriel a été envoyé.
Sun Plaza 9116-9126 W Bowles Ave 2 004–6 813 pi² d'espace disponible • Commerce de détail • Littleton, CO 80123



Certaines informations ont été traduites automatiquement.
Faits saillants
- Signalisation du monument
- Forte numération quotidienne de la circulation
- De l'autre côté de Target et du centre commercial Southwest Plaza
- Beaucoup de places de stationnement
- Unités de vente au détail/bureau disponibles
Disponibilité des espaces (3)
Afficher les taux de location en
- Espace
- Taille
- Terme
- Taux de location
- Type de loyer
| Espace | Taille | Terme | Taux de location | Type de loyer | ||
| 1er étage, ste 9116-12 | 2 219 pi² | 3-5 ans | 13,67 $ CAD/pi²/an 1,14 $ CAD/pi²/mois 30 339 $ CAD/an 2 528 $ CAD/mois | Loyer hypernet | ||
| 1er étage, ste 9116-15 | 2 004 pi² | Négociable | 16,41 $ CAD/pi²/an 1,37 $ CAD/pi²/mois 32 879 $ CAD/an 2 740 $ CAD/mois | Loyer hypernet | ||
| 1er étage, ste 9116-17 | 2 590 pi² | 3-5 ans | 16,41 $ CAD/pi²/an 1,37 $ CAD/pi²/mois 42 494 $ CAD/an 3 541 $ CAD/mois | Loyer hypernet |
9116 W Bowles Ave - 1er étage - ste 9116-12
2,219 square feet available for lease.
- Le taux de location ne comprend pas les services publics, les services de bâtiment ou les dépenses immobilières.
- Entièrement construit comme Espace de commerce de détail standard
- Situé en ligne avec d’autres commerces de détail
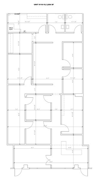
9116 W Bowles Ave - 1er étage - ste 9116-15
Nicely furnished multi-purpose office features reception area, 4-6 offices, bull pen area, conference, break and storage rooms, two restrooms and, covered terrace in front
- Le taux de location ne comprend pas les services publics, les services de bâtiment ou les dépenses immobilières.
9116 W Bowles Ave - 1er étage - ste 9116-17
Nicely finished multi-purpose office features reception area, 4-6 offices, bull pen area, conference, break and storage rooms, two restrooms and, covered terrace in front
- Le taux de location ne comprend pas les services publics, les services de bâtiment ou les dépenses immobilières.
- Entièrement construit comme Espace de commerce de détail standard
- Situé en ligne avec d’autres commerces de détail
Types de loyers
Le type et le montant du loyer que le locataire (preneur) est tenu de payer au propriétaire (bailleur) sur la durée du bail sont négociés avant la signature du bail par les deux parties. Le type de loyer varie selon les services fournis. Par exemple, le prix d’un loyer hypernet est habituellement inférieur à celui d’un bail à service complet puisque le locataire est tenu d’assumer des dépenses additionnelles par rapport au loyer de base. Contactez le courtier inscripteur pour tout connaître sur les frais connexes et additionnels associés à chaque type de loyer.
1. Service complet: Un taux de location qui comprend des services standards liés à l’immeuble fournis par le propriétaire dans le cadre d’une location annuelle de base.
2. Loyer supernet: Le locataire paie seulement deux des frais de l’immeuble. Le propriétaire et le locataire déterminent ces frais spécifiques avant la signature du bail.
3. Loyer hypernet: Un bail en vertu duquel le locataire est responsable de tous les frais liés à sa part proportionnelle d’occupation de l’immeuble.
4. Brut modifié: Le loyer brut modifié désigne un type général de taux de location dans lequel le locataire est habituellement responsable de sa part proportionnelle d’un ou de plusieurs frais. C’est le propriétaire qui paie les frais restants. Considérez les structures tarifaires courantes suivantes applicables aux loyers bruts modifiés: 4. Plus les services: Un type de bail brut modifié suivant lequel le locataire est responsable de sa part proportionnelle des coûts des services publics, en plus du loyer. 4. Plus le nettoyage: Un type de bail brut modifié suivant lequel le locataire est responsable de sa part proportionnelle des coûts de nettoyage, en plus du loyer. 4. Plus l'électricité: Un type de bail brut modifié suivant lequel le locataire est responsable de sa part proportionnelle des coûts d’électricité, en plus du loyer. 4. Plus l’électricité et le nettoyage: Un type de bail brut modifié dans lequel le locataire est responsable de sa part proportionnelle des coûts d’électricité et de nettoyage, en plus du loyer. 4. Plus les services publics et le nettoyage: Un type de bail brut modifié dans lequel le locataire est responsable de sa part proportionnelle des coûts des services publics et de nettoyage, en plus du loyer. 4. Bail industriel brut: Un type de bail brut modifié dans lequel le locataire paie un ou plusieurs des frais, en plus du loyer. Le propriétaire et le locataire déterminent ces frais spécifiques avant la signature du bail.
5. L’électricité est à la charge du locataire: Le propriétaire paie pour tous les services et le locataire est responsable de sa propre utilisation de l’éclairage et des prises électriques dans l’espace qu’il occupe.
6. Négociable ou sur demande: Cette option est utilisée lorsque le contact de location ne précise pas le type de loyer ou de service.
7. À déterminer: À déterminer ; utilisé pour les immeubles dont le type de services ou de loyer n’est pas connu, souvent quand l’immeuble n’est pas encore construit.
Plan de site
Sélectionner des locataires à Sun Plaza
- Bradford Physical Therapy
- Cotter Family Chiropractic
- Genesis Homes
- Peak Center of Excellence
- Rakhika & Tek Bishwakarma
- Urgent Care of Colorado, PC
Faits sur la propriété
| Superficie totale disponible | 6 813 pi² | Façade | W Bowles Ave |
| Type de centre | Centre de voisinage | Superficie commerciale brute | 65 713 pi² |
| Stationnement | 323 places | Superficie totale du terrain | 8,61 AC |
| Magasins | 10 | Année de construction | 1987 |
| Propriétés du centre | 2 |
| Superficie totale disponible | 6 813 pi² |
| Type de centre | Centre de voisinage |
| Stationnement | 323 places |
| Magasins | 10 |
| Propriétés du centre | 2 |
| Façade | W Bowles Ave |
| Superficie commerciale brute | 65 713 pi² |
| Superficie totale du terrain | 8,61 AC |
| Année de construction | 1987 |
À propos de la propriété
NIVEAU SUPÉRIEUR - ENTIÈREMENT LOUÉ. Niveau inférieur - 10,00$ -12,00 SF/AN NNN (soit 7,59$ SF/AN) Excellent mélange de locataires, y compris Urgent Care of Colorado, Brow Bar, HearingLife USA, India's Clay Oven, CrossFit, Body Art, Memory Wise, Pole Studio, Alar Bridal et Physiothérapie. Unités de vente au détail et à bureaux disponibles - SF de 2 219 à 2 590. En face de Super Target et du centre commercial Southwest Plaza. Un grand nombre de places de stationnement, des panneaux de signalisation sur les monuments et un grand nombre de véhicules quotidiens.
- Balcon
- Restaurant
Principaux détaillants à proximité
Présenté par
Sun Plaza | 9116-9126 W Bowles Ave
Hmm, il semble y avoir eu une erreur lors de l’envoi de votre message. Veuillez réessayer.
Merci! Votre message a été envoyé.



