Se Connecter/S’inscrire
Votre courriel a été envoyé.
Certaines informations ont été traduites automatiquement.
Faits saillants
- Full floor availability
- Surrounded by an array of restaurants, retail shops, and cultural attractions
- Located just two blocks from Metro Center
- Situated in the heart of the vibrant Penn Quarter neighborhood
Tous les espaces disponibles(3)
Afficher les taux de location en
- Espace
- Taille
- Terme
- Taux de location
- Utilisation de l’espace
- Aménagement
- Disponible
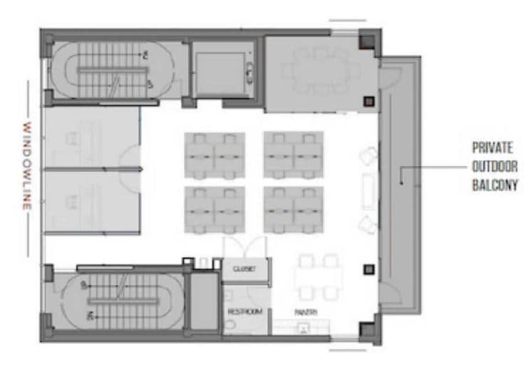
Available immediately. Ready to go suite.
- Entièrement construit comme Bureau standard
- 2 bureaux privés
- 16 postes de travail
- Disposition du plan d’étage ouverte en général
- 1 salle de conférence
- Peut être associé à un ou plusieurs espaces supplémentaires pour obtenir jusqu’à 4 785 pi² d’espace adjacent.
Available immediately. Ready to go suite.
- Entièrement construit comme Bureau standard
- 2 bureaux privés
- 16 postes de travail
- Disposition du plan d’étage ouverte en général
- 1 salle de conférence
- Peut être associé à un ou plusieurs espaces supplémentaires pour obtenir jusqu’à 4 785 pi² d’espace adjacent.
Available immediately. Ready to go suite.
- Entièrement construit comme Bureau standard
- 1 bureau privé
- 12 postes de travail
- Disposition du plan d’étage ouverte en général
- 1 salle de conférence
- Peut être associé à un ou plusieurs espaces supplémentaires pour obtenir jusqu’à 4 785 pi² d’espace adjacent.
| Espace | Taille | Terme | Taux de location | Utilisation de l’espace | Aménagement | Disponible |
| 5e étage | 1 575 pi² | Négociable | Sur demande Sur demande Sur demande Sur demande | Bureau | construction complète | Maintenant |
| 6e étage | 1 635 pi² | Négociable | Sur demande Sur demande Sur demande Sur demande | Bureau | construction complète | Maintenant |
| 7e étage | 1 575 pi² | Négociable | Sur demande Sur demande Sur demande Sur demande | Bureau | construction complète | Maintenant |
5e étage
| Taille |
| 1 575 pi² |
| Terme |
| Négociable |
| Taux de location |
| Sur demande Sur demande Sur demande Sur demande |
| Utilisation de l’espace |
| Bureau |
| Aménagement |
| construction complète |
| Disponible |
| Maintenant |
6e étage
| Taille |
| 1 635 pi² |
| Terme |
| Négociable |
| Taux de location |
| Sur demande Sur demande Sur demande Sur demande |
| Utilisation de l’espace |
| Bureau |
| Aménagement |
| construction complète |
| Disponible |
| Maintenant |
7e étage
| Taille |
| 1 575 pi² |
| Terme |
| Négociable |
| Taux de location |
| Sur demande Sur demande Sur demande Sur demande |
| Utilisation de l’espace |
| Bureau |
| Aménagement |
| construction complète |
| Disponible |
| Maintenant |
1 de 1
Vidéos
Visite extérieure 3D Matterport
Visite 3D Matterport
Photos
Vue depuis la rue
Rue
Carte
5e étage
| Taille | 1 575 pi² |
| Terme | Négociable |
| Taux de location | Sur demande |
| Utilisation de l’espace | Bureau |
| Aménagement | construction complète |
| Disponible | Maintenant |
Available immediately. Ready to go suite.
- Entièrement construit comme Bureau standard
- Disposition du plan d’étage ouverte en général
- 2 bureaux privés
- 1 salle de conférence
- 16 postes de travail
- Peut être associé à un ou plusieurs espaces supplémentaires pour obtenir jusqu’à 4 785 pi² d’espace adjacent.
1 de 1
Vidéos
Visite extérieure 3D Matterport
Visite 3D Matterport
Photos
Vue depuis la rue
Rue
Carte
6e étage
| Taille | 1 635 pi² |
| Terme | Négociable |
| Taux de location | Sur demande |
| Utilisation de l’espace | Bureau |
| Aménagement | construction complète |
| Disponible | Maintenant |
Available immediately. Ready to go suite.
- Entièrement construit comme Bureau standard
- Disposition du plan d’étage ouverte en général
- 2 bureaux privés
- 1 salle de conférence
- 16 postes de travail
- Peut être associé à un ou plusieurs espaces supplémentaires pour obtenir jusqu’à 4 785 pi² d’espace adjacent.
1 de 1
Vidéos
Visite extérieure 3D Matterport
Visite 3D Matterport
Photos
Vue depuis la rue
Rue
Carte
7e étage
| Taille | 1 575 pi² |
| Terme | Négociable |
| Taux de location | Sur demande |
| Utilisation de l’espace | Bureau |
| Aménagement | construction complète |
| Disponible | Maintenant |
Available immediately. Ready to go suite.
- Entièrement construit comme Bureau standard
- Disposition du plan d’étage ouverte en général
- 1 bureau privé
- 1 salle de conférence
- 12 postes de travail
- Peut être associé à un ou plusieurs espaces supplémentaires pour obtenir jusqu’à 4 785 pi² d’espace adjacent.
Aperçu de la propriété
Espace de bureau alliant charme historique et fonctionnalité moderne.
- Accès contrôlé
- Chauffage central
- Lumière naturelle
- Plan ouvert
- Climatisation
Faits sur la propriété
Type de bâtiment
Bureau
Année de construction
2017
Hauteur du bâtiment
7 étages
Taille du bâtiment
10 668 pi²
Classe d’immeuble
B
Superficie de plancher typique
1 128 pi²
Sélectionner des locataires
- Étage
- Nom du locataire
- Secteur
- 3ᵉ
- Breather
- Immobilier
1 1
Exceptionnellement praticable à pied
100/100
Moyennement facile d’accès en voiture
60/100
Transports en commun exceptionnels
100/100
Très praticable en vélo
80/100
1 de 5
Vidéos
Visite extérieure 3D Matterport
Visite 3D Matterport
Photos
Vue depuis la rue
Rue
Carte
1 de 1
Présenté par
915 F St NW
Vous êtes déjà membre? Connectez-vous
Hmm, il semble y avoir eu une erreur lors de l’envoi de votre message. Veuillez réessayer.
Merci! Votre message a été envoyé.









