Votre courriel a été envoyé.
915 N Milwaukee Ave Unité de condo • Bureau • 1 650 pi² • À vendre 1 027 635 $ CAD • Libertyville, IL 60048



Certaines informations ont été traduites automatiquement.
FAITS SAILLANTS DE L'INVESTISSEMENT
- Turn-Key Orthodontic Office
- Affluent Community
- Abundant Parking
- High-Traffic Area
- 6 Operatories
RÉSUMÉ DE L'ANNONCE
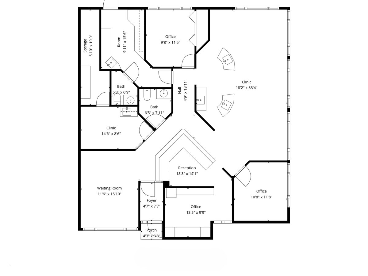
Turnkey orthodontic office opportunity at 915 Milwaukee Avenue in Libertyville, featuring an existing, well-designed buildout with six (6) operatories. The property offers excellent visibility along Milwaukee Avenue, strong daily traffic exposure, and ample on-site parking for both staff and patients. Ideal for orthodontic, dental, or related medical users seeking a second-generation space in a strong Lake County submarket, the location provides convenient access to affluent surrounding communities and a well-established patient base.
FAITS SUR LA PROPRIÉTÉ
| Taille totale du bâtiment | 3 300 pi² | Superficie de plancher typique | 3 300 pi² |
| Type de propriété | Bureau (Condo) | Année de construction | 1984 |
| Classe d’immeuble | B | Taille du lot | 0,08 AC |
| Planchers | 2 | Ratio de stationnement | 12,12/1 000 pi² |
| Zonage | C-2 - Zonage de bureaux | ||
| Taille totale du bâtiment | 3 300 pi² |
| Type de propriété | Bureau (Condo) |
| Classe d’immeuble | B |
| Planchers | 2 |
| Superficie de plancher typique | 3 300 pi² |
| Année de construction | 1984 |
| Taille du lot | 0,08 AC |
| Ratio de stationnement | 12,12/1 000 pi² |
| Zonage | C-2 - Zonage de bureaux |
COMMODITÉS
- Système de sécurité
- Puits de lumière
- Climatisation
- Détecteur de fumée
1 UNITÉ DISPONIBLE
Unité D
| Taille de l’unité | 1 650 pi² | Type de vente | Investissement ou propriétaire utilisateur |
| Prix | 1 027 635 $ CAD | Nbre d’espaces de stationnement | 40 |
| Prix par pi² | 622,81 $ CAD | Conditions de vente | Construction sur mesure |
| Utilisation du condo | Bureau | ID/Numéro de lot | 11-16-100-059 |
| Taille de l’unité | 1 650 pi² |
| Prix | 1 027 635 $ CAD |
| Prix par pi² | 622,81 $ CAD |
| Utilisation du condo | Bureau |
| Type de vente | Investissement ou propriétaire utilisateur |
| Nbre d’espaces de stationnement | 40 |
| Conditions de vente | Construction sur mesure |
| ID/Numéro de lot | 11-16-100-059 |
DESCRIPTION
Turnkey orthodontic office opportunity at 915 Milwaukee Avenue in Libertyville, featuring an existing, well-designed buildout with six (6) operatories. The property offers excellent visibility along Milwaukee Avenue, strong daily traffic exposure, and ample on-site parking for both staff and patients.
Ideal for orthodontic, dental, or related medical users seeking a second-generation space in a strong Lake County submarket, the location provides convenient access to affluent surrounding communities and a well-established patient base.
Floor Plan
untitled-6
untitled-9
untitled-12
untitled-14
untitled-15
untitled-7
untitled-17
untitled-18
untitled-20
untitled-21
Présenté par
915 N Milwaukee Ave
Hmm, il semble y avoir eu une erreur lors de l’envoi de votre message. Veuillez réessayer.
Merci! Votre message a été envoyé.

