Se Connecter/S’inscrire
Votre courriel a été envoyé.
Certaines informations ont été traduites automatiquement.
FAITS SAILLANTS DE L'INVESTISSEMENT
- Located near signalized intersection.
- Great location near shopping center
RÉSUMÉ DE L'ANNONCE
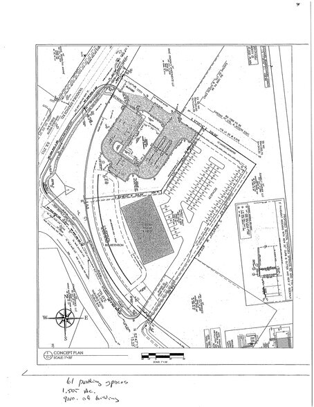
9100 sf proposed building
sell or build to suit
61 parking spaces
sell or build to suit
61 parking spaces
FAITS SUR LA PROPRIÉTÉ
| Prix | 1 661 400 $ CAD | Sous-type de propriété | Terrain commercial |
| Type de vente | Investissement ou propriétaire utilisateur | Utilisation proposée | Bureau |
| Nombre de lots | 1 | Taille totale du lot | 1,55 AC |
| Type de propriété | Terrain | ||
| Zonage | OI - Bureaux et Institutions | ||
| Prix | 1 661 400 $ CAD |
| Type de vente | Investissement ou propriétaire utilisateur |
| Nombre de lots | 1 |
| Type de propriété | Terrain |
| Sous-type de propriété | Terrain commercial |
| Utilisation proposée | Bureau |
| Taille totale du lot | 1,55 AC |
| Zonage | OI - Bureaux et Institutions |
1 LOT DISPONIBLE
Lot
| Prix | 1 661 400 $ CAD | Taille du lot | 1,55 AC |
| Prix par AC | 1 071 870,99 $ CAD |
| Prix | 1 661 400 $ CAD |
| Prix par AC | 1 071 870,99 $ CAD |
| Taille du lot | 1,55 AC |
Land for sale
DESCRIPTION
Located near Bank of Kenley.
1 1
1 de 3
VIDÉOS
VISITE EXTÉRIEURE 3D MATTERPORT
VISITE 3D MATTERPORT
PHOTOS
VUE DEPUIS LA RUE
RUE
CARTE
1 de 1
Présenté par
920 7th Ave - K S site
Vous êtes déjà membre? Connectez-vous
Hmm, il semble y avoir eu une erreur lors de l’envoi de votre message. Veuillez réessayer.
Merci! Votre message a été envoyé.


